Hi There! Is this Your First Time?
Did you know if you Register you have access to free search tools including the ability to save listings and property searches? Did you know that you can bypass the search altogether and have listings sent directly to your email address? Check out our how-to page for more info.
- Price$799,900
- Beds3
- Baths4
- SQ. Feet3,237
- Acres0.71
- Built2003
189 Scarlet Oak Lane, Dawsonville
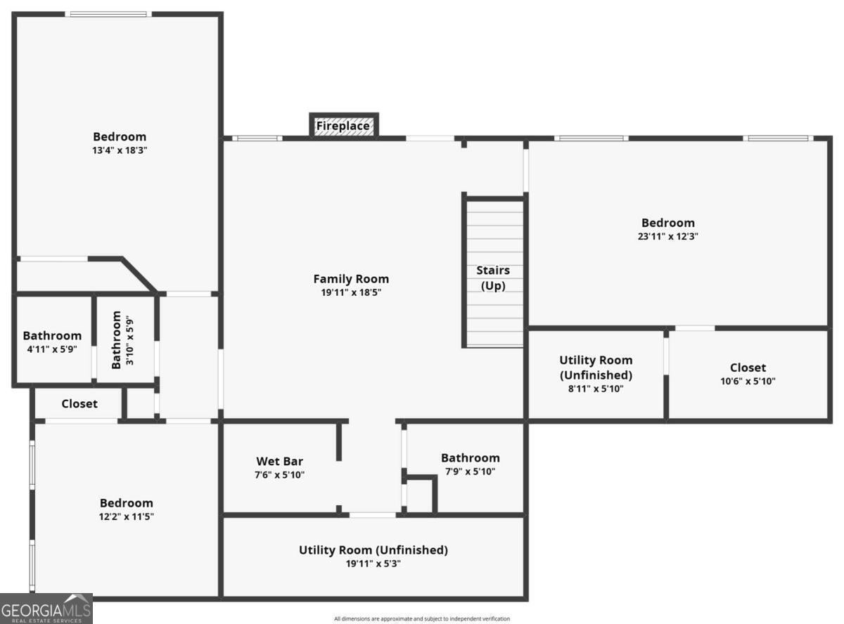
Located in the Sought-After Chestatee Lake & Golf Community Welcome to 189 Scarlet Oak Lane - a beautifully maintained, designer-finished home situated on one of the largest and most private corner lots in the highly desirable Northeast Cove section of the Chestatee Lake and Golf Community. This stunning Craftsman Cottage is a ranch-style home with a finished terrace level offering the ideal blend of comfort, style, and functionality - perfect for everyday living or entertaining guests. Key Features: Like-new cedar shake roof, only 6 years old with a 30-year lifespan- Two HVAC systems: One brand new, the other well-maintained and only 10 years old- Open-concept floor plan with soaring high ceilings throughout- Fully remodeled chef's kitchen featuring a large center island, gas range with custom hood, high-end stainless appliances, and elegant quartzite countertops and large island- Designer finishes throughout the home- Spacious screened-in porch overlooking a private backyard oasis- Expansive outdoor living space complete with a firepit area - perfect for relaxing or entertaining- Desirable ranch layout with additional living and guest space on the finished terrace level- Community Amenities: Great social atmosphere in resort style neighborhood w/ clubs, events, and social committees- Enjoy the resort-like lifestyle offered by the Chestatee Lake and Golf Community, which includes: Award-winning 18-hole golf course- Private marina with boat slips on Lake Lanier- Clubhouse with restaurant/dining and social events- Swimming pool & tennis/pickle ball courts- Bocce Ball Courts- Walking trails, parks, and playground- Regularly planned community events and clubs for all ages- Location & Convenience: Nestled in the scenic beauty of Dawsonville, this home offers quick access to all modern conveniences: Just minutes from North Georgia Premium Outlets, Publix, Kroger, and a wide variety of shopping and dining options Easy access to GA-400, making commuting a breeze Close proximity to Northside Hospital Forsyth, Northeast Georgia Medical Center, and other healthcare providers. Enjoy nearby attractions including Lake Lanier, Amicalola Falls, and the Dahlonega Wine Country Top-Rated Schools: Families will appreciate being zoned for some of the area's top-rated schools in the Dawson County School District, known for strong academics, athletics, and a supportive community environment. Don't Miss This Opportunity! Whether you're looking for your forever home, a serene lake/golf retreat, or the perfect place to entertain family and friends, 189 Scarlet Oak Lane checks all the boxes. This is a rare opportunity to own a thoughtfully designed, move-in-ready home in one of North Georgia's most beloved lake and golf communities. Schedule your private showing and golf cart tour today and experience the Chestatee resort lifestyle!
Essential Information
- MLS® #10623251
- Price$799,900
- Bedrooms3
- Bathrooms4.00
- Full Baths2
- Half Baths2
- Square Footage3,237
- Acres0.71
- Year Built2003
- TypeResidential
- Sub-TypeSingle Family Residence
- StyleCraftsman, Bungalow/Cottage
- StatusUnder Contract
Amenities
- UtilitiesCable Available, Electricity Available, High Speed Internet, Natural Gas Available, Phone Available, Sewer Available, Sewer Connected, Underground Utilities, Water Available
- Parking Spaces2
- ParkingGarage, Garage Door Opener, Kitchen Level, Side/Rear Entrance
- WaterfrontCreek, Deep Water Access, Lake Access
Exterior
- Exterior FeaturesSprinkler System
- Lot DescriptionCorner Lot, Level, Private
- WindowsDouble Pane Windows
- RoofMetal, Wood
- ConstructionOther, Stone, Wood Siding
Additional Information
- Days on Market52
Community Information
- Address189 Scarlet Oak Lane
- SubdivisionChestatee
- CityDawsonville
- CountyDawson
- StateGA
- Zip Code30534
Interior
- Interior FeaturesBookcases, High Ceilings, Master On Main Level, Separate Shower, Two Story Foyer, Walk-In Closet(s), Wet Bar
- AppliancesDishwasher, Double Oven, Gas Water Heater, Microwave
- HeatingNatural Gas, Zoned
- CoolingCentral Air, Zoned
- FireplaceYes
- # of Fireplaces2
- FireplacesBasement, Gas Log, Gas Starter, Living Room
- StoriesTwo
School Information
- ElementaryKilough
- MiddleDawson County
- HighDawson County
Listing Details
- Listing Provided Courtesy Of Keller Williams Community Partners
- Office Info4044321058
Price Change History for 189 Scarlet Oak Lane, Dawsonville, GA (MLS® #10623251)
| Date | Details | Price | Change |
|---|---|---|---|
| Under Contract | – | – | |
| Active | – | – | |
| Price Change | – | – | |
| Price Reduced (from $825,000) | $799,900 | $25,100 (3.04%) | |
| Active (from New) | – | – |
The data relating to real estate for sale on this web site comes in part from the Broker Reciprocity Program of Georgia MLS. Real estate listings held by brokerage firms other than Go Realty Of Georgia & Alabam are marked with the Broker Reciprocity logo and detailed information about them includes the name of the listing brokers.
The information being provided is for consumers' personal, non-commercial use and may not be used for any purpose other than to identify prospective properties consumers may be interested in purchasing. Information Deemed Reliable But Not Guaranteed.
The broker providing this data believes it to be correct, but advises interested parties to confirm them before relying on them in a purchase decision.
Copyright 2025 Georgia MLS. All rights reserved.
Listing information last updated on December 21st, 2025 at 11:45pm CST.










































































