Hi There! Is this Your First Time?
Did you know if you Register you have access to free search tools including the ability to save listings and property searches? Did you know that you can bypass the search altogether and have listings sent directly to your email address? Check out our how-to page for more info.
- Price$219,900
- Beds3
- Baths2
- SQ. Feet1,456
- Acres0.59
- Built2024
69 Cheyenne Trail, Martin
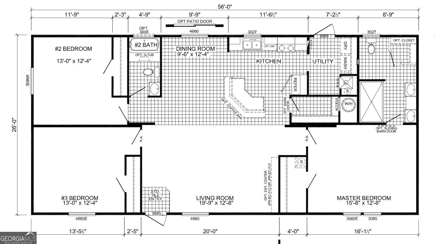
Must see! Brand new manufactured home in Lake Harbor Shores, a Lake Hartwell community. This home is USDA, VA, FHA and Conventional lendable. All appliances are included in the sale of this home. It also comes with a one year warranty. Come see this perfectly located, 3 bed and 2 bath home that has so much to offer. The Lake Harbor Shores subdivision has optional access to its own community lake area; with a boat dock and ramp, along with play area and pavilion. This home has 2 sizable decks on the front and rear of home. A large master bedroom and bath on one end gives privacy, while boasting an open concept kitchen, dining, and living room with electric fireplace. The 2nd and 3rd bedrooms have generous closets in both. Ceiling fans are included for each bedroom, as well as the living room. Bring your boat and enjoy lake living.
Essential Information
- MLS® #10624864
- Price$219,900
- Bedrooms3
- Bathrooms2.00
- Full Baths2
- Square Footage1,456
- Acres0.59
- Year Built2024
- TypeResidential
- Sub-TypeSingle Family Residence
- StyleRanch
- StatusActive
Amenities
- UtilitiesOther, Underground Utilities
- Parking Spaces3
- ParkingNone
Exterior
- Lot DescriptionOther
- WindowsDouble Pane Windows
- RoofComposition
- ConstructionBrick, Other, Vinyl Siding
- FoundationBlock
Additional Information
- Days on Market14
Community Information
- Address69 Cheyenne Trail
- SubdivisionLake Harbor Shores
- CityMartin
- CountyStephens
- StateGA
- Zip Code30557
Interior
- Interior FeaturesDouble Vanity, Master On Main Level, Other, Walk-In Closet(s)
- AppliancesDishwasher, Electric Water Heater, Oven/Range (Combo), Refrigerator, Stainless Steel Appliance(s)
- HeatingCentral
- CoolingCeiling Fan(s), Central Air
- StoriesOne
School Information
- ElementaryOther
- MiddleStephens County
- HighStephens County
Listing Details
- Listing Provided Courtesy Of Headwaters Realty
Price Change History for 69 Cheyenne Trail, Martin, GA (MLS® #10624864)
| Date | Details | Price | Change |
|---|---|---|---|
| Active (from New) | – | – |
The data relating to real estate for sale on this web site comes in part from the Broker Reciprocity Program of Georgia MLS. Real estate listings held by brokerage firms other than Go Realty Of Georgia & Alabam are marked with the Broker Reciprocity logo and detailed information about them includes the name of the listing brokers.
The information being provided is for consumers' personal, non-commercial use and may not be used for any purpose other than to identify prospective properties consumers may be interested in purchasing. Information Deemed Reliable But Not Guaranteed.
The broker providing this data believes it to be correct, but advises interested parties to confirm them before relying on them in a purchase decision.
Copyright 2025 Georgia MLS. All rights reserved.
Listing information last updated on October 29th, 2025 at 11:47am CDT.


































































