Hi There! Is this Your First Time?
Did you know if you Register you have access to free search tools including the ability to save listings and property searches? Did you know that you can bypass the search altogether and have listings sent directly to your email address? Check out our how-to page for more info.
- Price$575,000
- Beds5
- Baths3
- SQ. Feet3,180
- Acres0.41
- Built2014
2607 Restoration Drive, Powder Springs
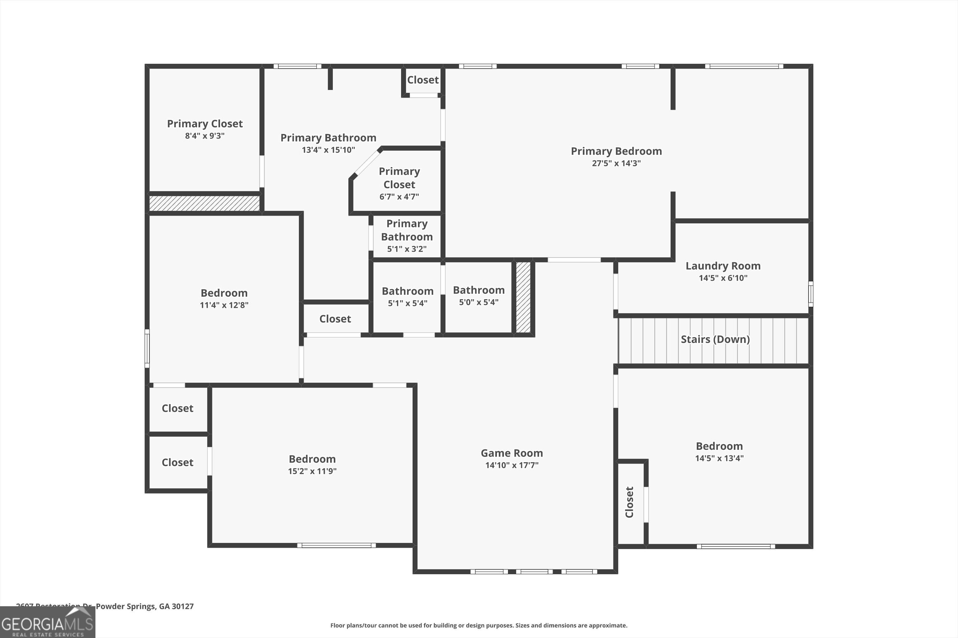
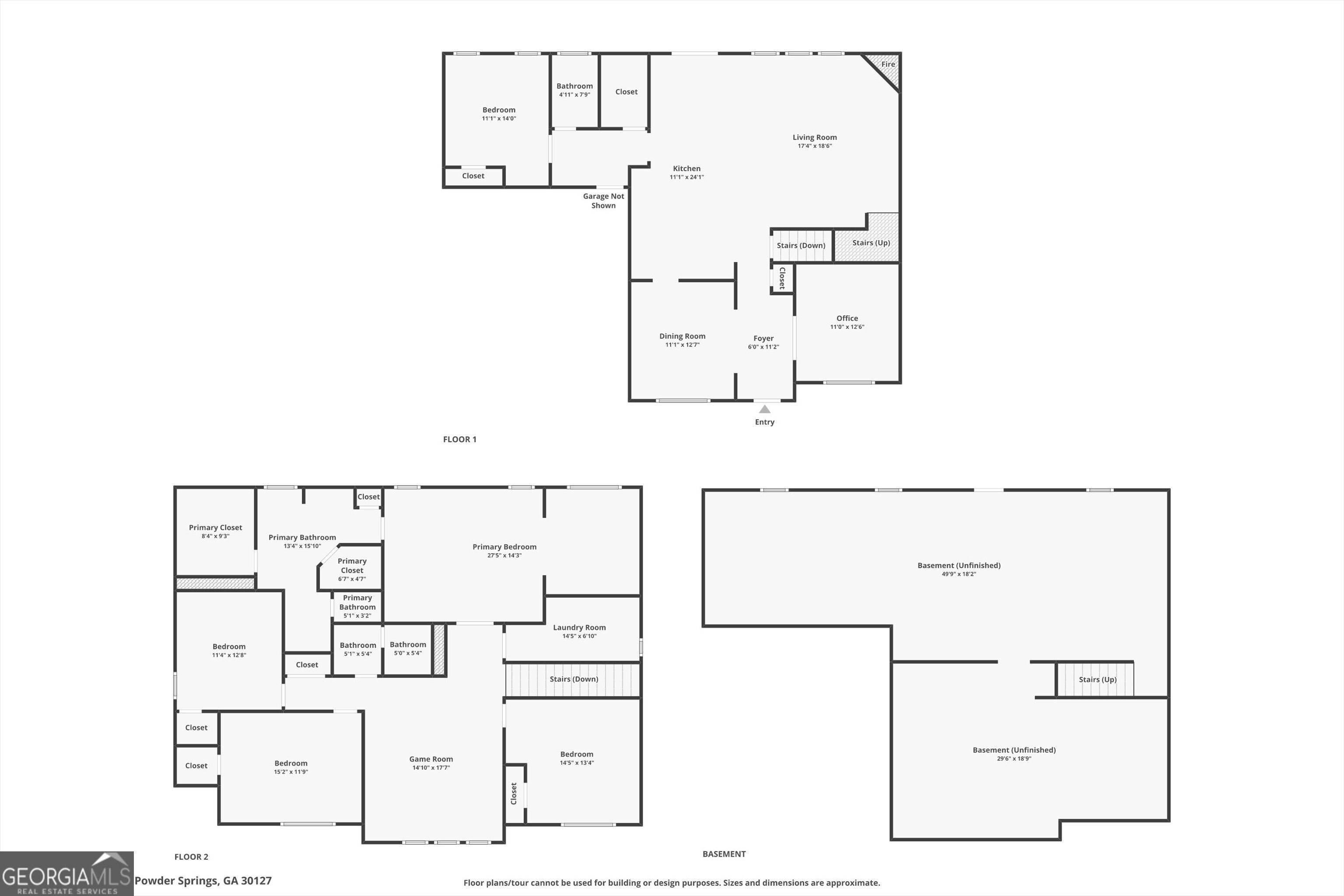
RARE OPPORTUNITY FOR GORGEOUS LAKE VIEWS - This elegant brick-front home offers 5 bedrooms and 3 full baths, with over 3,100 square feet of thoughtfully designed living space, plus an unfinished basement - all overlooking beautiful Lake Lucille from the backyard. The main level showcases refined details, including a formal dining room with coffered ceiling and a private office framed by French doors. At the heart of the home, the gourmet kitchen provides a welcoming gathering space, complete with a large walk-in pantry and seamless flow into the spacious great room with a cozy fireplace. A guest bedroom and full bath on the main level add convenience and flexibility for family or visitors. Upstairs, a large loft-style gathering area is perfect for a media room, playroom, or extra living space. 3 secondary bedrooms and a shared full bath provide plenty of room for family or guests, while the spacious primary bedroom and bathroom offer a relaxing retreat. The unfinished daylight basement presents endless possibilities for storage, a home gym, or future expansion. Outside, the large, partially fenced backyard offers stunning lake views, ideal for relaxing or entertaining, whether from inside the home, the back deck, or right at the water's edge. You're just minutes from parks, shopping, and dining, combining comfort, space, and convenience in one beautiful package. Don't miss this rare opportunity to enjoy lakeside living in a home designed for both family life and entertaining. **NOTE: Lake maintenance is currently underway, so the lake is low.
Essential Information
- MLS® #10625736
- Price$575,000
- Bedrooms5
- Bathrooms3.00
- Full Baths3
- Square Footage3,180
- Acres0.41
- Year Built2014
- TypeResidential
- Sub-TypeSingle Family Residence
- StyleBrick Front, Traditional
- StatusActive
Amenities
- UtilitiesElectricity Available, Natural Gas Available, Sewer Connected, Water Available
- ParkingAttached, Garage, Garage Door Opener, Kitchen Level
- ViewLake
- Is WaterfrontYes
- WaterfrontLake, Lake Access
Exterior
- Lot DescriptionOther, Private
- RoofComposition
- ConstructionOther
Additional Information
- Days on Market50
Community Information
- Address2607 Restoration Drive
- SubdivisionCovenant Place
- CityPowder Springs
- CountyCobb
- StateGA
- Zip Code30127
Interior
- Interior FeaturesBeamed Ceilings, Double Vanity, High Ceilings, Pulldown Attic Stairs, Separate Shower, Soaking Tub, Walk-In Closet(s), Attic Expandable
- AppliancesDishwasher, Disposal, Gas Water Heater, Microwave, Oven/Range (Combo), Refrigerator, Stainless Steel Appliance(s)
- HeatingCentral, Zoned
- CoolingCeiling Fan(s), Central Air, Zoned
- FireplaceYes
- # of Fireplaces1
- FireplacesFamily Room
- StoriesThree Or More
School Information
- ElementaryVarner
- MiddleTapp
- HighMceachern
Listing Details
- Listing Provided Courtesy Of Coldwell Banker Bullard Realty
Price Change History for 2607 Restoration Drive, Powder Springs, GA (MLS® #10625736)
| Date | Details | Price | Change |
|---|---|---|---|
| Active (from New) | – | – |
The data relating to real estate for sale on this web site comes in part from the Broker Reciprocity Program of Georgia MLS. Real estate listings held by brokerage firms other than Go Realty Of Georgia & Alabam are marked with the Broker Reciprocity logo and detailed information about them includes the name of the listing brokers.
The information being provided is for consumers' personal, non-commercial use and may not be used for any purpose other than to identify prospective properties consumers may be interested in purchasing. Information Deemed Reliable But Not Guaranteed.
The broker providing this data believes it to be correct, but advises interested parties to confirm them before relying on them in a purchase decision.
Copyright 2025 Georgia MLS. All rights reserved.
Listing information last updated on December 27th, 2025 at 8:30am CST.






















































































