Hi There! Is this Your First Time?
Did you know if you Register you have access to free search tools including the ability to save listings and property searches? Did you know that you can bypass the search altogether and have listings sent directly to your email address? Check out our how-to page for more info.
- Price$2,000
- Acres3.52
- Built2025
2127 Chanabby Court, Statesboro
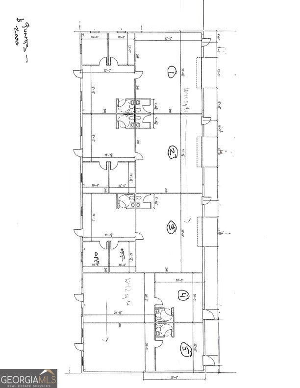
MOVE IN READY - Brand New Light Industrial Units on Veterans Memorial Parkway - Now leasing! This new development offers high-visibility light industrial units designed to accommodate a variety of commercial needs. Located on Veterans Memorial Parkway, the property provides excellent road frontage and convenient access in one of the area's most active business corridors. The project will feature five units, each offering 1,641 square feet of space. These larger units will include a welcoming reception area, two private offices, one ADA-compliant restroom, one standard restroom, and a rear warehouse space with a roll-up door. Additionally, there will be four smaller units, each offering 1,042 square feet. These units will feature a spacious reception area, warehouse space, an ADA-compliant restroom, and an oversized access door at the rear. Water will be included in the lease, adding extra value and convenience for tenants. For added security, there will be a fenced area behind the buildings with a manual gate-ideal for additional storage or controlled access to warehouse areas. These flexible spaces are ideal for service-based businesses, contractors, light manufacturing, or warehouse operations. With modern layouts and a prime location, this is a great opportunity to position your business in a brand-new facility tailored to your operational needs. Contact us today for more information or to reserve your unit in advance. Rental Features Air conditioningHeating Property Features PowerParkingDock high-doors / loading available Included in Rent Water Lease Terms $2,000.00 security deposit Power and Internet are not included in the rent. $2,000 deposit is due at the time of signing the lease. Tenants must meet High Point's application criteria in order to be approved. Please contact us for more information about this criteria along with any other questions. This property will be managed by the owner.
Essential Information
- MLS® #10627795
- Price$2,000
- Bathrooms0.00
- Acres3.52
- Year Built2025
- TypeCommercial Lease
- StatusActive
Amenities
- UtilitiesElectricity Available, High Speed Internet
- ParkingOn Street, Paved, Parking Lot
Exterior
- Lot DescriptionLevel, Business Park, Industrial Park, Semi Turning Available
- RoofMetal
- ConstructionAluminum Siding
Listing Details
- Listing Provided Courtesy Of Cumberland Nine Realty
- Office Info912.259.9986
Community Information
- Address2127 Chanabby Court
- SubdivisionPearce
- CityStatesboro
- CountyBulloch
- StateGA
- Zip Code30461
Interior
- HeatingCentral, Electric
- CoolingCentral Air, Electric
Additional Information
- Days on Market135
- ZoningHC
Price Change History for 2127 Chanabby Court, Statesboro, GA (MLS® #10627795)
| Date | Details | Price | Change |
|---|---|---|---|
| Active (from New) | – | – |
The data relating to real estate for sale on this web site comes in part from the Broker Reciprocity Program of Georgia MLS. Real estate listings held by brokerage firms other than Go Realty Of Georgia & Alabam are marked with the Broker Reciprocity logo and detailed information about them includes the name of the listing brokers.
The information being provided is for consumers' personal, non-commercial use and may not be used for any purpose other than to identify prospective properties consumers may be interested in purchasing. Information Deemed Reliable But Not Guaranteed.
The broker providing this data believes it to be correct, but advises interested parties to confirm them before relying on them in a purchase decision.
Copyright 2026 Georgia MLS. All rights reserved.
Listing information last updated on March 16th, 2026 at 5:00am CDT.





























