Hi There! Is this Your First Time?
Did you know if you Register you have access to free search tools including the ability to save listings and property searches? Did you know that you can bypass the search altogether and have listings sent directly to your email address? Check out our how-to page for more info.
- Price$45,000
- Acres0.69
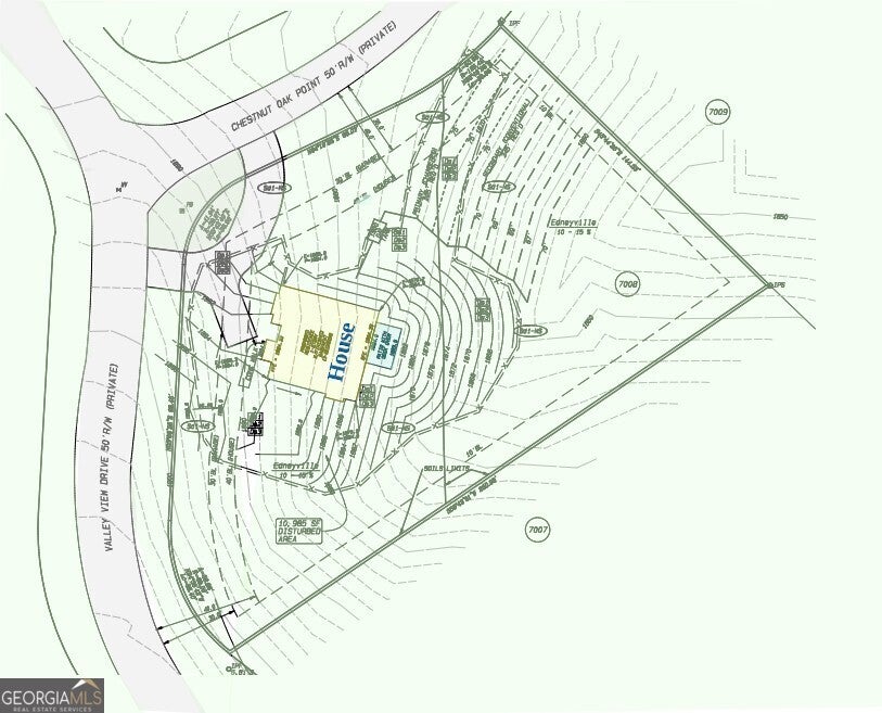
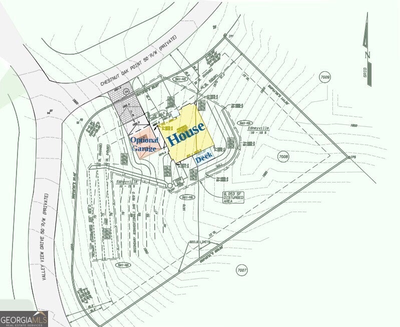
26 Chestnut Oak Point, Jasper
Ready To Build. Level 3 Soil Tests complete. Site Plan and 3-Bedroom 2.5 Bathroom 2-Story 2,440 Square Feet Home Plan available, or Sellers can built for you (see alternative Single Family Home Listing for details) or bring your own plan and/or builder. Easy build lot within minutes of the main gate and all amenities. There are zero new construction homes in Big Canoe priced under $795K. Our floorplan maximizes space utilization and lot orientation with a view down a valley with seasonal spring. Big Canoe is located just 90 minutes north of Atlanta and nestled in the foothills of the Appalachian Mountain Range, and is teaming with amenities including a 27-Hole Golf Course and Clubhouse, three Lakes and a Marina, a Beach Club, Swimming Pools, a Sandy Beach, Fishing, numerous Parks & Trails, and more. The Marina rents electric pontoon boats and the lake is stocked with fresh trout. The community also provides numerous court sports options, including tennis, pickleball, and bocce, ensuring ample opportunities for recreation and social interaction, while the wellness center provides state-of-the-art fitness equipment and a spa. The newly renovated multimillion-dollar clubhouse serves as a central hub for dining and events. Nearby places to visit of note: Historic Downtown Jasper, Gibbs Gardens, Cairn View Winery, Fainting Goat Vineyards & Winery, B.J. Reece Orchards, and Amicalola Falls. This is a great opportunity to build and own a home in Big Canoe. Ideal for permanent or 2nd home and/or recreational investment property. Listing Agent related to Seller.
Essential Information
- MLS® #10627922
- Price$45,000
- Bathrooms0.00
- Acres0.69
- TypeLand
- Sub-TypeResidential Lot
- StatusActive
Amenities
- UtilitiesCable Available, Electricity Available, Phone Available, Water Available
- ViewValley
- WaterfrontCreek
School Information
- ElementaryTate
- MiddleJasper
- HighPickens County
Listing Details
- Listing Provided Courtesy Of Markcorp Worldwide, Inc.
- Office Info4045630731
Community Information
- Address26 Chestnut Oak Point
- SubdivisionBig Canoe
- CityJasper
- CountyPickens
- StateGA
- Zip Code30143
Exterior
- Lot DescriptionCorner Lot
Additional Information
- Days on Market155
Price Change History for 26 Chestnut Oak Point, Jasper, GA (MLS® #10627922)
| Date | Details | Price | Change |
|---|---|---|---|
| Active | – | – | |
| Price Change | – | – | |
| Price Reduced (from $50,000) | $45,000 | $5,000 (10.00%) | |
| Active (from New) | – | – |
The data relating to real estate for sale on this web site comes in part from the Broker Reciprocity Program of Georgia MLS. Real estate listings held by brokerage firms other than Go Realty Of Georgia & Alabam are marked with the Broker Reciprocity logo and detailed information about them includes the name of the listing brokers.
The information being provided is for consumers' personal, non-commercial use and may not be used for any purpose other than to identify prospective properties consumers may be interested in purchasing. Information Deemed Reliable But Not Guaranteed.
The broker providing this data believes it to be correct, but advises interested parties to confirm them before relying on them in a purchase decision.
Copyright 2026 Georgia MLS. All rights reserved.
Listing information last updated on April 8th, 2026 at 6:15am CDT.


































