Hi There! Is this Your First Time?
Did you know if you Register you have access to free search tools including the ability to save listings and property searches? Did you know that you can bypass the search altogether and have listings sent directly to your email address? Check out our how-to page for more info.
- Price$565,000
- Beds3
- Baths4
- SQ. Feet2,895
- Acres0.03
- Built2016
3465 Fenton Drive Se, Smyrna
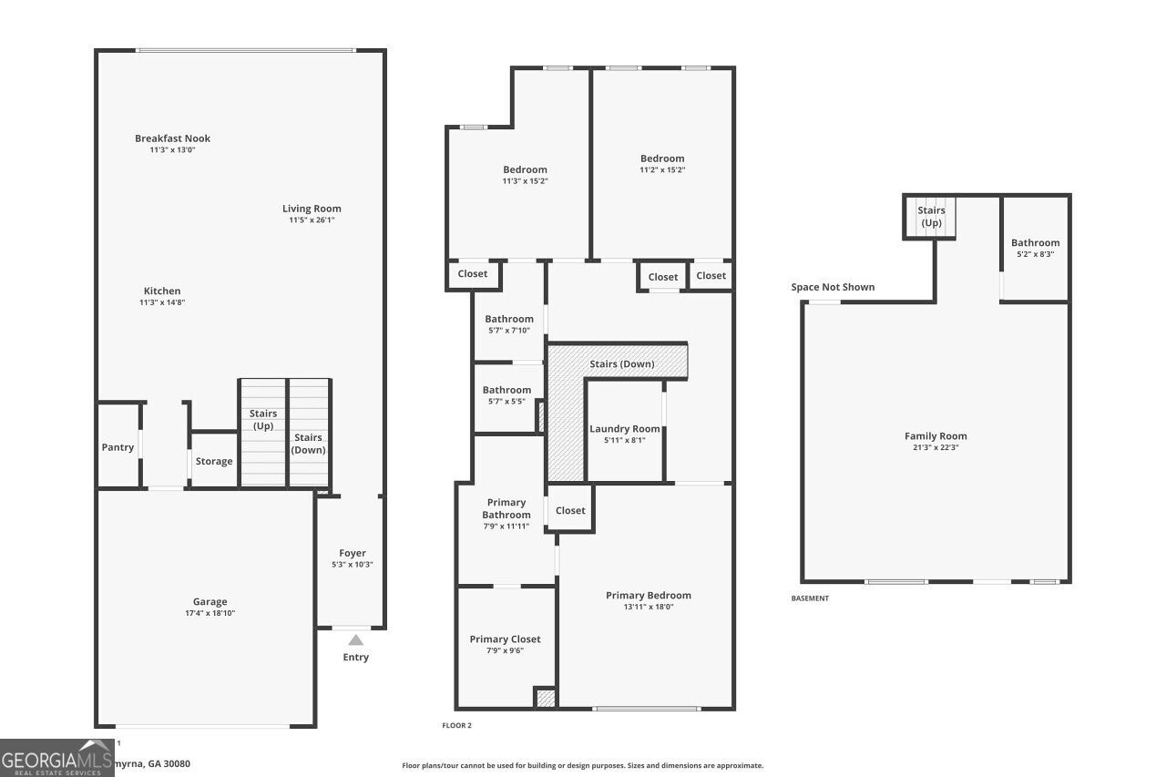
Welcome to upscale living at Lylebrooke! This gated community is convenient to Smyrna, Vinings, I-285, the Battery, and more! This luxury townhome offers 3 bedrooms and 3.5-baths with upgraded hardwood floors and a full finished basement level. This entertaining townhome offers comfort and style as you enjoy the open-concept that offers a light filled living area for welcoming guests and family! The family room offers an ambiance for staying in for a movie night, and gorgeous enough for providing space for a friends event. a beautiful chandelier enhances the formal dining area, that can make you the host of the year at any dinner. The spacious open kitchen is extremely updated and welcoming while enjoying your guests. The kitchen features an island, stainless appliances, gas range and the updated farmhouse sink! Enjoy watching the stars on your large track decking back deck that overlooks a relaxing wooded area. The primary suite is on the upper level offering an en-suite bath, dual vanities and walk in closet. The two additional bedrooms each have access to a full bathroom providing convenience and privacy. The full finished basement makes for additional family space or even a man cave or 4th bedroom. There is a full bath and also a generously sized outside deck! This home features a two-car garage and is located just minutes from shopping, Smyrna Market Village, dining, and entertainment! If you are looking for luxury living, convenience, and a great community that is priced right, this home checks all the boxes! Schedule your showing now! ** Up to $5,700 Lender Credit with our Preferred Lender! Use these incentives toward closing costs or to buy down your interest rate. **
Essential Information
- MLS® #10628394
- Price$565,000
- Bedrooms3
- Bathrooms4.00
- Full Baths3
- Half Baths1
- Square Footage2,895
- Acres0.03
- Year Built2016
- TypeResidential
- Sub-TypeTownhouse
- StyleBrick Front, Traditional
- StatusActive
Amenities
- UtilitiesCable Available, Electricity Available, High Speed Internet, Natural Gas Available, Phone Available, Sewer Available, Underground Utilities, Water Available
- ParkingAttached, Garage, Garage Door Opener
- WaterfrontNo Dock Or Boathouse
Exterior
- Lot DescriptionLevel
- WindowsDouble Pane Windows
- RoofComposition
- ConstructionOther
Additional Information
- Days on Market78
Community Information
- Address3465 Fenton Drive Se
- SubdivisionLylebrooke
- CitySmyrna
- CountyCobb
- StateGA
- Zip Code30080
Interior
- Interior FeaturesDouble Vanity, High Ceilings, Walk-In Closet(s)
- AppliancesDishwasher, Disposal, Microwave
- HeatingCentral, Heat Pump, Zoned
- CoolingCeiling Fan(s), Central Air, Zoned
- FireplaceYes
- # of Fireplaces1
- FireplacesFamily Room, Gas Log, Gas Starter
- StoriesTwo
School Information
- ElementaryTeasley Primary/Elementary
- MiddleCampbell
- HighCampbell
Listing Details
- Listing Provided Courtesy Of Method Real Estate Advisors
Price Change History for 3465 Fenton Drive Se, Smyrna, GA (MLS® #10628394)
| Date | Details | Price | Change |
|---|---|---|---|
| Active | – | – | |
| Price Change | – | – | |
| Price Reduced (from $570,000) | $565,000 | $5,000 (0.88%) | |
| Active (from New) | – | – |
The data relating to real estate for sale on this web site comes in part from the Broker Reciprocity Program of Georgia MLS. Real estate listings held by brokerage firms other than Go Realty Of Georgia & Alabam are marked with the Broker Reciprocity logo and detailed information about them includes the name of the listing brokers.
The information being provided is for consumers' personal, non-commercial use and may not be used for any purpose other than to identify prospective properties consumers may be interested in purchasing. Information Deemed Reliable But Not Guaranteed.
The broker providing this data believes it to be correct, but advises interested parties to confirm them before relying on them in a purchase decision.
Copyright 2026 Georgia MLS. All rights reserved.
Listing information last updated on January 11th, 2026 at 6:45pm CST.











































