Hi There! Is this Your First Time?
Did you know if you Register you have access to free search tools including the ability to save listings and property searches? Did you know that you can bypass the search altogether and have listings sent directly to your email address? Check out our how-to page for more info.
- Price$499,900
- Beds4
- Baths3
- SQ. Feet2,633
- Acres0.17
- Built2025
5662 Evelyn Lane, Flowery Branch
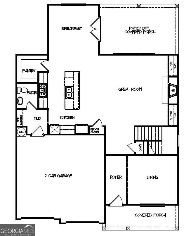
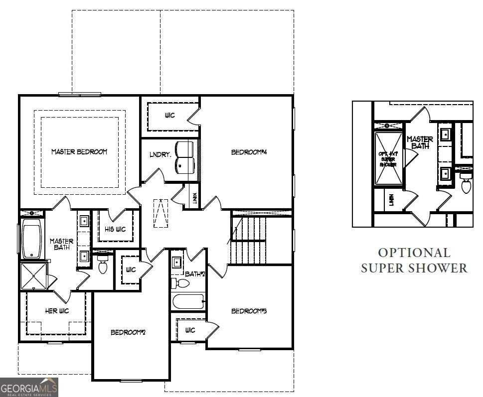
The Miller Plan built by Walker Anderson Homes is a Beautiful Home on a Quiet Culdesac Street in the Charming Hemingway Community in Downtown Flowery Branch and within walking distance to Lake Lanier's Marinas, Restaurants, and Recreational Offerings. The Home features a Luxurious Brick & Siding Exterior and Expansive 9-Foot Ceilings on both the Main and Upper Levels. When you enter through the front door from the Covered Front Porch, you are greeted by a Formal Dining Room which can also be used as an office. The Kitchen is open to the Family Room & Breakfast Room, has Painted Cabinets with Soft-Close Cabinet Doors & Drawers and includes a 36" Gas Cooktop with Cabinet Vent Hood, Wall Oven, Wall Microwave, all complimented by a Large Island. The Primary Bedroom Suite Upstairs is Spacious and complete with a Tray Ceiling, Two Walk-In Closets, Double Vanity, and a Large Shower with Separate Soaking Tub. A Super Shower Option is also available. There are Three Additional Bedrooms Upstairs, each with a Walk-In Closet, and and an additional Full Bath. Home is under construction with a projected completion in Early Fall of 2025. Ask about our UP TO $30K Incentive (dependent per homesite) with use of preferred lender.
Essential Information
- MLS® #10628831
- Price$499,900
- Bedrooms4
- Bathrooms3.00
- Full Baths2
- Half Baths1
- Square Footage2,633
- Acres0.17
- Year Built2025
- TypeResidential
- Sub-TypeSingle Family Residence
- StyleBrick/Frame, Brick Front, Craftsman, Traditional
- StatusActive
Amenities
- UtilitiesCable Available, Electricity Available, High Speed Internet, Natural Gas Available, Phone Available, Sewer Connected, Underground Utilities, Water Available
- ParkingGarage, Garage Door Opener, Kitchen Level, Storage
- WaterfrontCreek
Exterior
- Lot DescriptionLevel
- WindowsDouble Pane Windows
- RoofComposition
- ConstructionOther
- FoundationSlab
Additional Information
- Days on Market17
Community Information
- Address5662 Evelyn Lane
- SubdivisionHemingway
- CityFlowery Branch
- CountyHall
- StateGA
- Zip Code30542
Interior
- Interior FeaturesDouble Vanity, High Ceilings, Separate Shower, Soaking Tub, Tray Ceiling(s), Walk-In Closet(s)
- AppliancesCooktop, Dishwasher, Disposal, Gas Water Heater, Microwave, Oven (Wall), Stainless Steel Appliance(s)
- HeatingNatural Gas
- CoolingCeiling Fan(s), Central Air, Electric
- FireplaceYes
- # of Fireplaces1
- FireplacesFactory Built, Family Room, Gas Log
- StoriesTwo
School Information
- ElementaryFlowery Branch
- MiddleWest Hall
- HighWest Hall
Listing Details
- Listing Provided Courtesy Of Re/max Tru, Inc.
Price Change History for 5662 Evelyn Lane, Flowery Branch, GA (MLS® #10628831)
| Date | Details | Price | Change |
|---|---|---|---|
| Active (from New) | – | – |
The data relating to real estate for sale on this web site comes in part from the Broker Reciprocity Program of Georgia MLS. Real estate listings held by brokerage firms other than Go Realty Of Georgia & Alabam are marked with the Broker Reciprocity logo and detailed information about them includes the name of the listing brokers.
The information being provided is for consumers' personal, non-commercial use and may not be used for any purpose other than to identify prospective properties consumers may be interested in purchasing. Information Deemed Reliable But Not Guaranteed.
The broker providing this data believes it to be correct, but advises interested parties to confirm them before relying on them in a purchase decision.
Copyright 2025 Georgia MLS. All rights reserved.
Listing information last updated on December 17th, 2025 at 7:45pm CST.






















