Hi There! Is this Your First Time?
Did you know if you Register you have access to free search tools including the ability to save listings and property searches? Did you know that you can bypass the search altogether and have listings sent directly to your email address? Check out our how-to page for more info.
- Price$581,200
- Beds5
- Baths4
- SQ. Feet3,498
- Acres0.20
- Built1995
1391 Brentwood Lane, Marietta
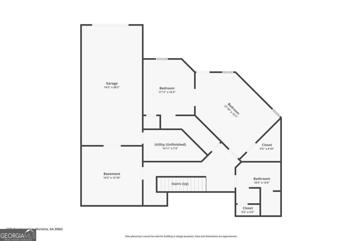
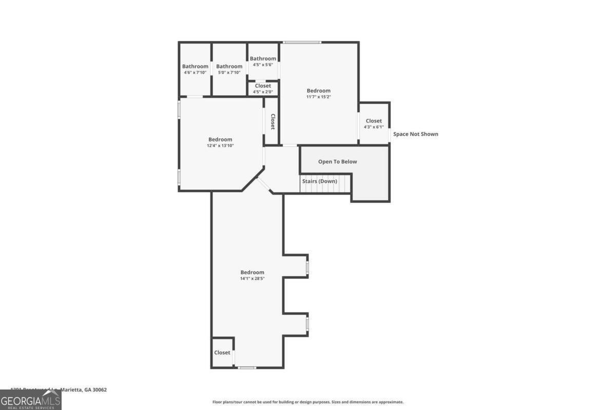
Updated 5 Bedroom, 3.5 Bath home located in the Brentwood Park Community in Marietta High School District. Enter the home into the two-story foyer with the Dining Room located on your immediate right and spacious fireside Family Room in the back right of home. Kitchen features White Cabinets, Quartz Countertops a full suite of Stainless Steel Appliances, large walk-in pantry with view of Family room. Breakfast Room off of Kitchen leads to Deck. Primary Suite is located on the Main Level and features a jetted tub, separate shower, walk-in closet and direct access to the rear deck overlooking the backyard. Laundry Room and Half Bath are located to the left as you enter the home near the Two Car Garage Entry and Basement Stairs. The Upper Level features Two Secondary Bedrooms with Jack-N-Jill style Bathroom and a huge additional Bedroom / Office / Flex Space above the Garage. Fully Finished Basement adds a ton of additional space with a Bedroom, Full Bath, Bonus Room, and a Third Garage ideal for a workshop, craft room, storage or additional parking. Community Amenities includes a Clubhouse, Swimming Pool, Playground, Tennis and Basketball Courts. Home is conveniently located with easy access to I-75, I-575, Marietta Square, The Battery, restaurants and shopping.
Essential Information
- MLS® #10629435
- Price$581,200
- Bedrooms5
- Bathrooms4.00
- Full Baths3
- Half Baths1
- Square Footage3,498
- Acres0.20
- Year Built1995
- TypeResidential
- Sub-TypeSingle Family Residence
- StyleTraditional
- StatusActive
Amenities
- UtilitiesNone
- Parking Spaces2
- ParkingAttached, Garage, Side/Rear Entrance
- WaterfrontNo Dock Or Boathouse
Exterior
- Lot DescriptionCorner Lot, Private
- RoofComposition
- ConstructionStucco, Synthetic Stucco
- FoundationBlock, Slab
Additional Information
- Days on Market28
Community Information
- Address1391 Brentwood Lane
- SubdivisionBrentwood Park
- CityMarietta
- CountyCobb
- StateGA
- Zip Code30062
Interior
- Interior FeaturesDouble Vanity, High Ceilings, Master On Main Level, Tray Ceiling(s), Vaulted Ceiling(s), Walk-In Closet(s)
- AppliancesDishwasher, Gas Water Heater, Microwave
- HeatingCentral, Natural Gas, Floor Furnace
- CoolingCeiling Fan(s), Central Air, Electric
- FireplaceYes
- # of Fireplaces1
- FireplacesFactory Built, Family Room
- StoriesThree Or More
School Information
- ElementarySawyer Road
- MiddleMarietta
- HighMarietta
Listing Details
- Listing Provided Courtesy Of Exp Realty
Price Change History for 1391 Brentwood Lane, Marietta, GA (MLS® #10629435)
| Date | Details | Price | Change |
|---|---|---|---|
| Active | – | – | |
| Price Change | – | – | |
| Price Reduced (from $589,900) | $581,200 | $8,700 (1.47%) | |
| Active (from New) | – | – |
The data relating to real estate for sale on this web site comes in part from the Broker Reciprocity Program of Georgia MLS. Real estate listings held by brokerage firms other than Go Realty Of Georgia & Alabam are marked with the Broker Reciprocity logo and detailed information about them includes the name of the listing brokers.
The information being provided is for consumers' personal, non-commercial use and may not be used for any purpose other than to identify prospective properties consumers may be interested in purchasing. Information Deemed Reliable But Not Guaranteed.
The broker providing this data believes it to be correct, but advises interested parties to confirm them before relying on them in a purchase decision.
Copyright 2026 Georgia MLS. All rights reserved.
Listing information last updated on January 2nd, 2026 at 2:46pm CST.

































