Hi There! Is this Your First Time?
Did you know if you Register you have access to free search tools including the ability to save listings and property searches? Did you know that you can bypass the search altogether and have listings sent directly to your email address? Check out our how-to page for more info.
- Price$287,060
- Beds3
- Baths2
- SQ. Feet1,323
- Acres0.60
- Built2025
Lot 23 Clemit Harris Road Lot 23, Newnan
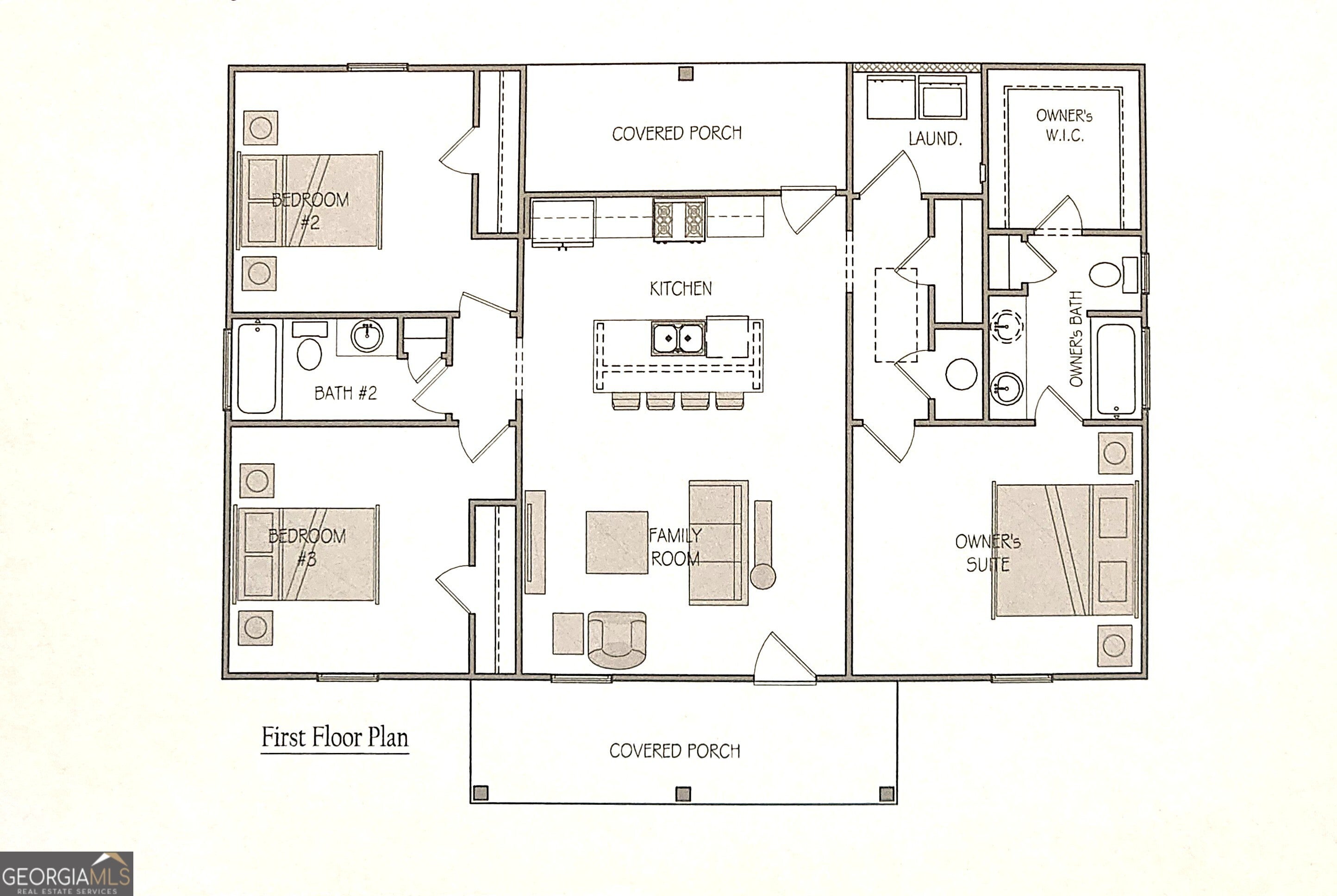
100% FINANCE USDA APPROVED! ALL CLOSING COST PAID WITH APPROVED LENDER UP TO $12,000 The Elmsworth plan by Piedmont Residential. Welcome to Clemit Harris Place in Newnan. New Construction RANCH PLAN for a Great Price on more than Half Acre of land! 3 Bedroom 2 Full Bath Split Bedroom style Ranch! Features Large Covered Front Porch AND Large Covered Back Porch! Beautiful Fossil Grey cabinets in kitchen and bath. Huge kitchen island with seating open to family room. Spacious bedrooms and baths. Separate laundry room for convenience. This delightful new home will be ready for move in End December 2025.
Essential Information
- MLS® #10632505
- Price$287,060
- Bedrooms3
- Bathrooms2.00
- Full Baths2
- Square Footage1,323
- Acres0.60
- Year Built2025
- TypeResidential
- Sub-TypeSingle Family Residence
- StyleRanch
- StatusNew
Amenities
- UtilitiesCable Available, Electricity Available, High Speed Internet, Phone Available, Water Available
- ParkingNone
Exterior
- Lot DescriptionPrivate
- WindowsDouble Pane Windows
- RoofComposition
- ConstructionConcrete
- FoundationSlab
Additional Information
- Days on Market8
Community Information
- AddressLot 23 Clemit Harris Road Lot 23
- SubdivisionClemit Harris Place
- CityNewnan
- CountyCoweta
- StateGA
- Zip Code30263
Interior
- Interior FeaturesDouble Vanity, Master On Main Level, Pulldown Attic Stairs, Roommate Plan, Split Bedroom Plan, Tray Ceiling(s), Walk-In Closet(s)
- AppliancesDishwasher, Electric Water Heater
- HeatingCentral, Electric, Heat Pump
- CoolingCentral Air, Electric, Heat Pump
- StoriesOne
School Information
- ElementaryArnco Sargent
- MiddleEvans
- HighNewnan
Listing Details
- Listing Provided Courtesy Of Piedmont Residential Realty
- Office Info404-673-1572
The data relating to real estate for sale on this web site comes in part from the Broker Reciprocity Program of Georgia MLS. Real estate listings held by brokerage firms other than Go Realty Of Georgia & Alabam are marked with the Broker Reciprocity logo and detailed information about them includes the name of the listing brokers.
The information being provided is for consumers' personal, non-commercial use and may not be used for any purpose other than to identify prospective properties consumers may be interested in purchasing. Information Deemed Reliable But Not Guaranteed.
The broker providing this data believes it to be correct, but advises interested parties to confirm them before relying on them in a purchase decision.
Copyright 2025 Georgia MLS. All rights reserved.
Listing information last updated on November 5th, 2025 at 1:31pm CST.




