Hi There! Is this Your First Time?
Did you know if you Register you have access to free search tools including the ability to save listings and property searches? Did you know that you can bypass the search altogether and have listings sent directly to your email address? Check out our how-to page for more info.
- Price$324,900
- Beds4
- Baths2
- SQ. Feet1,768
- Acres0.95
- Built1984
699 Old Highway 41 699, Adairsville
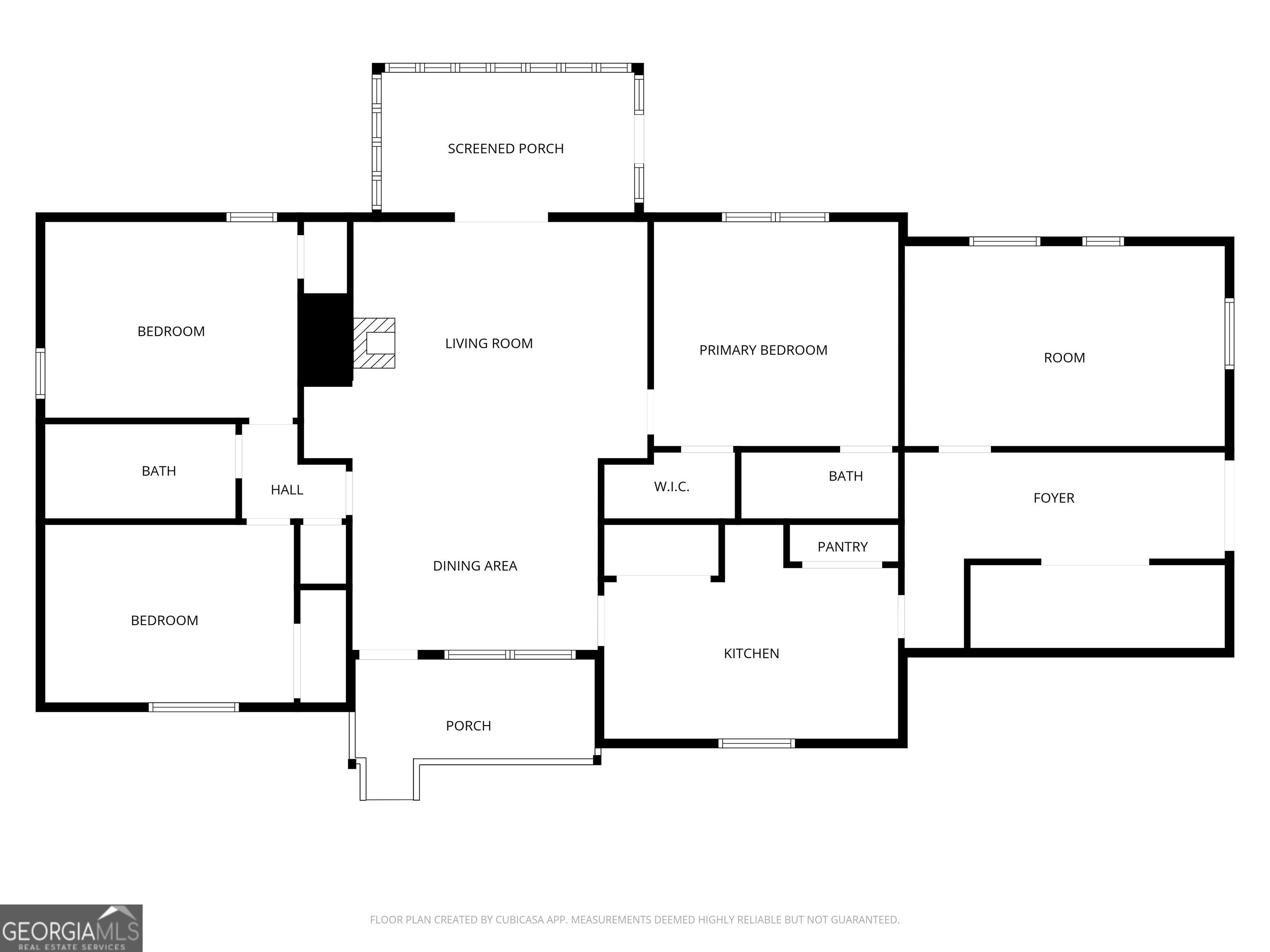
Looking for a spacious home with an inground pool and detached garage/workshop? This property might be for you! Check out the rustic interior featuring one level that includes hardwood floors, tongue and groove throughout, cedar lined walk-in closet, an extra storage space and a flex room. The wood-burning stove completes the rustic interior. The exterior features a screened porch, in-ground pool, and is hottub ready with slab and electrical in place. The 30x24 detached garage has two roll up doors, electricity, water, a bar to compliment the pool and a porch area overlooking the pool complete with ceiling fans. This home is wired with a Generac generator that takes the worry away if power is down at the property. The property has a wooded space that provides privacy or expansion. You are just minutes from downtown Adairsville with this home having a little bit of everything for peaceful living.
Essential Information
- MLS® #10633669
- Price$324,900
- Bedrooms4
- Bathrooms2.00
- Full Baths2
- Square Footage1,768
- Acres0.95
- Year Built1984
- TypeResidential
- Sub-TypeSingle Family Residence
- StyleRanch
- StatusActive
Amenities
- UtilitiesElectricity Available, Natural Gas Available
- Parking Spaces2
- ParkingDetached, Parking Pad, Storage
Exterior
- Lot DescriptionSloped
- RoofMetal
- ConstructionOther
- FoundationBlock
Additional Information
- Days on Market14
Community Information
- Address699 Old Highway 41 699
- SubdivisionNone
- CityAdairsville
- CountyBartow
- StateGA
- Zip Code30103
Interior
- Interior FeaturesBeamed Ceilings, Bookcases, Master On Main Level, Walk-In Closet(s)
- AppliancesDishwasher, Oven/Range (Combo), Refrigerator
- HeatingCentral
- CoolingCentral Air
- FireplaceYes
- # of Fireplaces1
- FireplacesWood Burning Stove
- StoriesOne
School Information
- ElementaryAdairsville
- MiddleAdairsville
- HighAdairsville
Listing Details
- Listing Provided Courtesy Of Legacy Properties
Price Change History for 699 Old Highway 41 699, Adairsville, GA (MLS® #10633669)
| Date | Details | Price | Change |
|---|---|---|---|
| Active (from New) | – | – |
The data relating to real estate for sale on this web site comes in part from the Broker Reciprocity Program of Georgia MLS. Real estate listings held by brokerage firms other than Go Realty Of Georgia & Alabam are marked with the Broker Reciprocity logo and detailed information about them includes the name of the listing brokers.
The information being provided is for consumers' personal, non-commercial use and may not be used for any purpose other than to identify prospective properties consumers may be interested in purchasing. Information Deemed Reliable But Not Guaranteed.
The broker providing this data believes it to be correct, but advises interested parties to confirm them before relying on them in a purchase decision.
Copyright 2025 Georgia MLS. All rights reserved.
Listing information last updated on November 12th, 2025 at 9:01pm CST.















































