Hi There! Is this Your First Time?
Did you know if you Register you have access to free search tools including the ability to save listings and property searches? Did you know that you can bypass the search altogether and have listings sent directly to your email address? Check out our how-to page for more info.
- Price$14,650
- Acres2.60
- Built1960
5 Haynie Street, Newnan
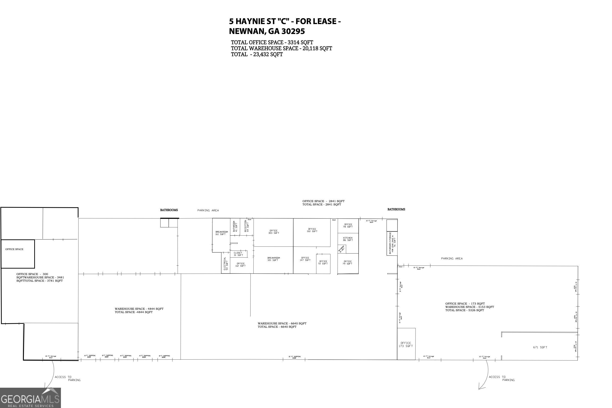
FOR LEASE in City of Newnan: 23,443 sqft +/- warehouse, zoned for INDUSTRIAL COMMERCIAL. Located 2.5 miles from I-85, Poplar Road exit. Offering a versatile space for a variety of business needs. Warehouse is located on 2.6 acres +/-, which includes 1 acre +/- of truck parking on both newly paved and gravel lots. TWO newly installed gates with keypad access. Warehouse has 6 dock doors and 8 drive up doors, 9 office spaces, 6 bathrooms, kitchen, and breakroom. Upgrades include: new paint inside and out, LED lighting, granite countertops, sheetrock in the office spaces, new awnings, grading, parking, and asphalt. The warehouse has ceiling heights ranging from 15.5 to 11 feet. The site is fully fenced and equipped with potential rail access, new gutters, exterior cameras, outdoor lighting, and new gates. An additional 8,000 sqft +/- of warehouse/office space will be available on June 1, 2025 for a total of 31,443 sqft +/-. Landlord would consider leasing an additional .5 acre +/- of parking if needed, for a total of 1.5 acres +/- of parking. The landlord will also consider subdividing warehouse space.
Essential Information
- MLS® #10633892
- Price$14,650
- Bathrooms0.00
- Acres2.60
- Year Built1960
- TypeCommercial Lease
- StatusActive
Amenities
- UtilitiesCable Available, Electricity Available, High Speed Internet, Natural Gas Available, Phone Available, Sewer Available, Water Available
- ParkingSecured, Paved, Parking Lot
Exterior
- Lot DescriptionLevel, Rail, Semi Turning Available
- RoofMetal
- ConstructionAluminum Siding, Steel Siding
Listing Details
- Listing Provided Courtesy Of 57 East Realty
Community Information
- Address5 Haynie Street
- Subdivisionnone
- CityNewnan
- CountyCoweta
- StateGA
- Zip Code30263
Interior
- HeatingCentral, Electric, Office Only
- CoolingCentral Air, Electric, Office Area Only
Additional Information
- Days on Market138
- ZoningM
Price Change History for 5 Haynie Street, Newnan, GA (MLS® #10633892)
| Date | Details | Price | Change |
|---|---|---|---|
| Active | – | – | |
| Price Change | – | – | |
| Price Reduced | $14,650 | $9,350 (38.96%) | |
| Active | – | – | |
| Price Change | – | – | |
| Show More (2) | |||
| Price Reduced (from $27,500) | $24,000 | $3,500 (12.73%) | |
| Active (from New) | – | – | |
The data relating to real estate for sale on this web site comes in part from the Broker Reciprocity Program of Georgia MLS. Real estate listings held by brokerage firms other than Go Realty Of Georgia & Alabam are marked with the Broker Reciprocity logo and detailed information about them includes the name of the listing brokers.
The information being provided is for consumers' personal, non-commercial use and may not be used for any purpose other than to identify prospective properties consumers may be interested in purchasing. Information Deemed Reliable But Not Guaranteed.
The broker providing this data believes it to be correct, but advises interested parties to confirm them before relying on them in a purchase decision.
Copyright 2026 Georgia MLS. All rights reserved.
Listing information last updated on March 28th, 2026 at 9:45am CDT.


























