Hi There! Is this Your First Time?
Did you know if you Register you have access to free search tools including the ability to save listings and property searches? Did you know that you can bypass the search altogether and have listings sent directly to your email address? Check out our how-to page for more info.
- Price$389,380
- Beds4
- Baths3
- Acres0.16
- Built2025
1005 Kingsley Way Lot 7, Lithonia
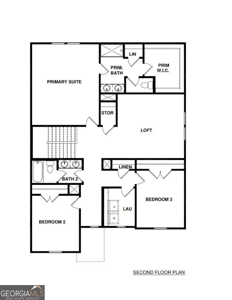
Welcome to The Atlas at Kingsley Creek, a stunning two-story home designed for both comfort and style. The open floorplan flows seamlessly, with a spacious kitchen and dining area featuring a walk-in pantry, and a bright great room highlighted by a sleek linear fireplace-perfect for cozy evenings. The main level also offers an optional bedroom with a convenient full hall bathroom. Upstairs, discover a peaceful retreat in the expansive primary suite, complete with a private bath and a spacious walk-in closet. The second floor also includes roomy secondary bedrooms and a well-placed laundry room for added convenience. With its thoughtful design and inviting spaces, The Atlas is the perfect place to make lasting memories.
Essential Information
- MLS® #10635498
- Price$389,380
- Bedrooms4
- Bathrooms3.00
- Full Baths3
- Acres0.16
- Year Built2025
- TypeResidential
- Sub-TypeSingle Family Residence
- StyleTraditional
- StatusActive
Amenities
- UtilitiesCable Available, Electricity Available, Phone Available, Sewer Available, Underground Utilities, Water Available
- Parking Spaces2
- ParkingAttached, Garage, Garage Door Opener
- WaterfrontNo Dock Or Boathouse
Exterior
- Lot DescriptionPrivate
- WindowsDouble Pane Windows
- RoofComposition
- ConstructionConcrete
- FoundationSlab
Additional Information
- Days on Market56
Community Information
- Address1005 Kingsley Way Lot 7
- SubdivisionKingsley Way
- CityLithonia
- CountyDeKalb
- StateGA
- Zip Code30058
Interior
- Interior FeaturesHigh Ceilings, Walk-In Closet(s)
- AppliancesDishwasher, Disposal, Electric Water Heater, Microwave
- HeatingCentral
- CoolingCentral Air
- FireplaceYes
- # of Fireplaces1
- StoriesTwo
School Information
- ElementaryPrinceton
- MiddleStephenson
- HighStephenson
Listing Details
- Listing Provided Courtesy Of Ccg Realty Group Llc
Price Change History for 1005 Kingsley Way Lot 7, Lithonia, GA (MLS® #10635498)
| Date | Details | Price | Change |
|---|---|---|---|
| Active | – | – | |
| Price Change (from New) | – | – | |
| Price Increased (from $388,380) | $389,380 | $1,000 (0.26%) |
The data relating to real estate for sale on this web site comes in part from the Broker Reciprocity Program of Georgia MLS. Real estate listings held by brokerage firms other than Go Realty Of Georgia & Alabam are marked with the Broker Reciprocity logo and detailed information about them includes the name of the listing brokers.
The information being provided is for consumers' personal, non-commercial use and may not be used for any purpose other than to identify prospective properties consumers may be interested in purchasing. Information Deemed Reliable But Not Guaranteed.
The broker providing this data believes it to be correct, but advises interested parties to confirm them before relying on them in a purchase decision.
Copyright 2025 Georgia MLS. All rights reserved.
Listing information last updated on December 29th, 2025 at 3:46pm CST.


