Hi There! Is this Your First Time?
Did you know if you Register you have access to free search tools including the ability to save listings and property searches? Did you know that you can bypass the search altogether and have listings sent directly to your email address? Check out our how-to page for more info.
- Price$664,900
- Beds5
- Baths4
- SQ. Feet3,540
- Acres0.34
- Built2001
5995 Lake Windsor Parkway, Buford
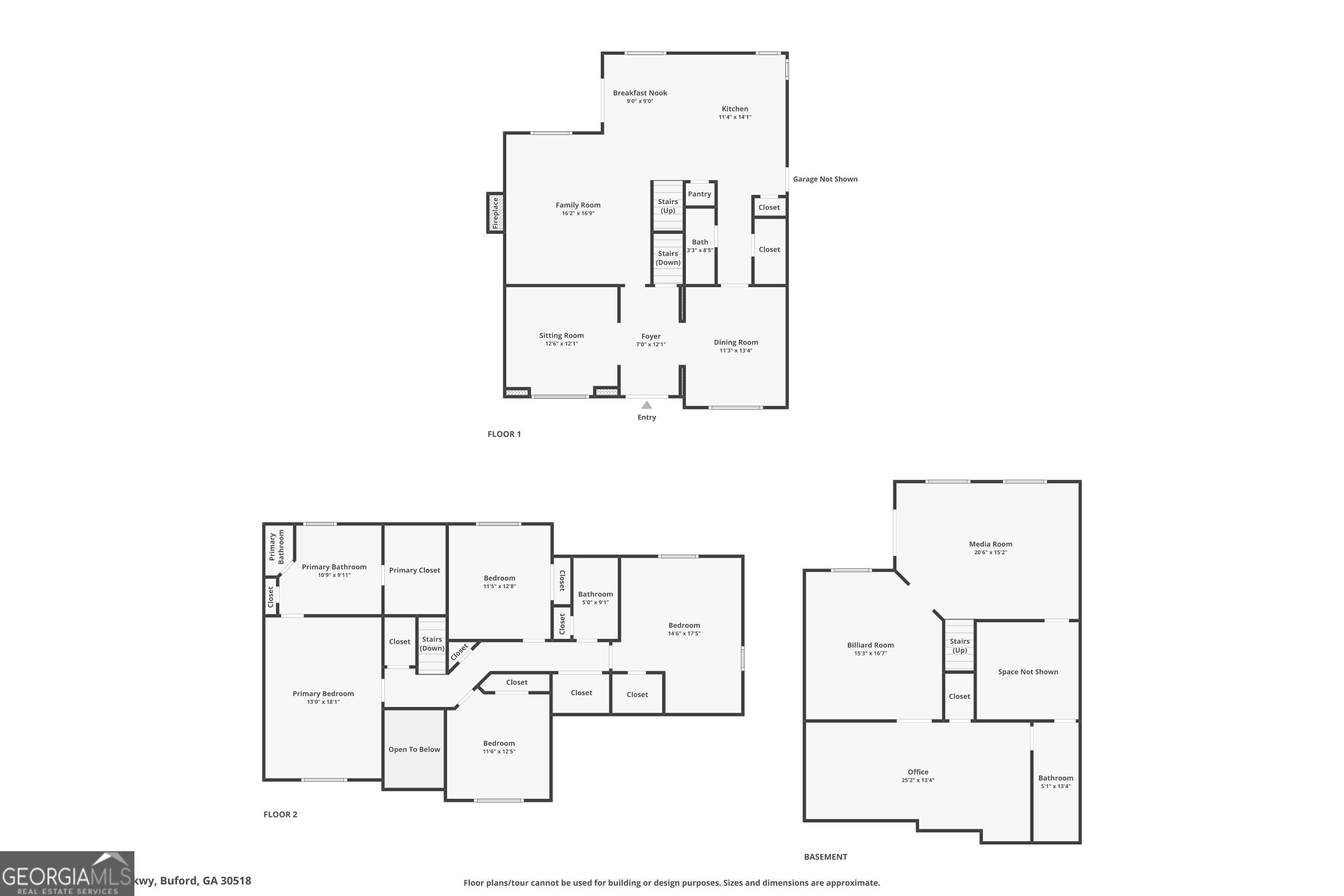
Welcome to this beautifully maintained brick home offering over 3,500 square feet of living space, a full finished basement, and an unbeatable location just minutes from Lake Lanier. From the manicured lawn and fenced backyard to the elegant double entry doors, every detail of this home radiates pride of ownership. A stunning palladium window in the two-story foyer fills the entryway with natural light, highlighting the detailed craftsmanship. The foyer is flanked by a formal living room and dining room, leading into the cozy family room featuring a fireplace with unique twisted column detailing. The adjoining eat-in kitchen is the heart of the home, full of charm and style with antique style farmhouse chandeliers, subway tile backsplash, a large island with breakfast bar, stainless steel appliances, and elegant lighting that makes the space both functional and beautiful. Step from the kitchen onto the screened-in deck that creates the perfect spot to enjoy quiet mornings or relaxing evenings outdoors. Upstairs, the primary suite is a true retreat with a claw-foot tub, stained glass window, frame-less glass shower, dual vanity, and even a mounted TV, designed for complete relaxation. Three additional bedrooms and an additional full bath complete the upper level. The finished basement expands the home's versatility with multiple bonus rooms, a billiards area (pool table included), built-in workspace, possible exercise area, and a full bath. Ideal for guests, recreation, or multi-generational living. Enjoy private wooded views and a spacious open deck overlooking the fenced backyard that backs up to a peaceful creek. Community amenities include a pool, tennis courts, and playground. Ideally located near top-rated schools, healthcare, shopping, dining, and lakefront restaurants. This home offers the best of comfort, convenience, and Lake Lanier living!
Essential Information
- MLS® #10638663
- Price$664,900
- Bedrooms5
- Bathrooms4.00
- Full Baths3
- Half Baths1
- Square Footage3,540
- Acres0.34
- Year Built2001
- TypeResidential
- Sub-TypeSingle Family Residence
- StyleBrick Front, Traditional
- StatusActive
Amenities
- UtilitiesElectricity Available, Natural Gas Available, Sewer Available, Water Available
- Parking Spaces2
- ParkingAttached, Garage, Garage Door Opener, Kitchen Level
- WaterfrontCreek
Exterior
- Lot DescriptionPrivate
- WindowsDouble Pane Windows
- RoofComposition
- ConstructionBrick, Wood Siding
Additional Information
- Days on Market20
Community Information
- Address5995 Lake Windsor Parkway
- SubdivisionWindsor at Lanier
- CityBuford
- CountyGwinnett
- StateGA
- Zip Code30518
Interior
- Interior FeaturesDouble Vanity, Other, Separate Shower, Soaking Tub, Tray Ceiling(s), Vaulted Ceiling(s), Walk-In Closet(s)
- AppliancesDishwasher, Disposal, Microwave, Oven/Range (Combo), Stainless Steel Appliance(s)
- HeatingNatural Gas, Zoned
- CoolingCeiling Fan(s), Central Air, Zoned
- FireplaceYes
- # of Fireplaces1
- FireplacesFamily Room, Gas Log
- StoriesTwo
School Information
- ElementaryWhite Oak
- MiddleLanier
- HighLanier
Listing Details
- Listing Provided Courtesy Of Century 21 Results
Price Change History for 5995 Lake Windsor Parkway, Buford, GA (MLS® #10638663)
| Date | Details | Price | Change |
|---|---|---|---|
| Active (from New) | – | – |
The data relating to real estate for sale on this web site comes in part from the Broker Reciprocity Program of Georgia MLS. Real estate listings held by brokerage firms other than Go Realty Of Georgia & Alabam are marked with the Broker Reciprocity logo and detailed information about them includes the name of the listing brokers.
The information being provided is for consumers' personal, non-commercial use and may not be used for any purpose other than to identify prospective properties consumers may be interested in purchasing. Information Deemed Reliable But Not Guaranteed.
The broker providing this data believes it to be correct, but advises interested parties to confirm them before relying on them in a purchase decision.
Copyright 2025 Georgia MLS. All rights reserved.
Listing information last updated on December 16th, 2025 at 8:30pm CST.
















































