Hi There! Is this Your First Time?
Did you know if you Register you have access to free search tools including the ability to save listings and property searches? Did you know that you can bypass the search altogether and have listings sent directly to your email address? Check out our how-to page for more info.
- Price$230,000
- Beds3
- Baths2
- SQ. Feet1,524
- Acres0.52
- Built1978
3165 Goode Road, Conyers
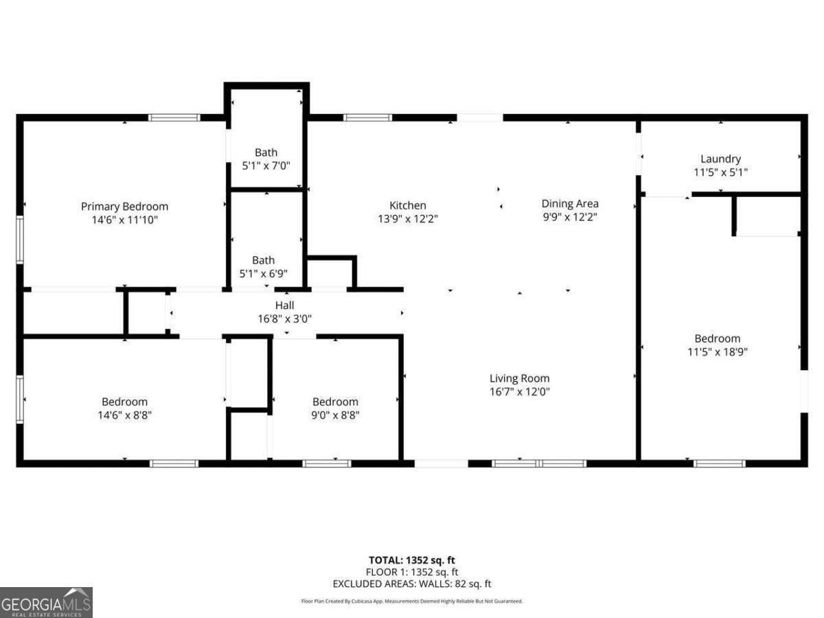
Charming ranch on nearly an acre in Rockdale County-now priced at $230,000. This well-kept home offers peaceful country living just minutes from I-20 and downtown Conyers. Featuring a spacious fenced backyard, it's perfect for pets, entertaining, or enjoying quiet evenings under the covered pergola. The converted garage adds valuable flex space-ideal for a home office, gym, guest room, or creative studio. Previously used as a homeschool room and craft area, it offers versatility to meet your needs. The property includes a front porch, rear deck, oversized pantry/storage room, and a welcoming layout that blends functionality with comfort. Don't miss this opportunity to own a move-in ready home with ample outdoor space, no HOA, and easy access to schools, shopping, and more.
Essential Information
- MLS® #10641275
- Price$230,000
- Bedrooms3
- Bathrooms2.00
- Full Baths2
- Square Footage1,524
- Acres0.52
- Year Built1978
- TypeResidential
- Sub-TypeSingle Family Residence
- StyleRanch, Brick Front
- StatusActive
Amenities
- UtilitiesCable Available, Electricity Available, Natural Gas Available, Water Available
- Parking Spaces4
- ParkingAttached, Carport
Exterior
- Exterior FeaturesGarden
- Lot DescriptionCorner Lot, Level, Private
- RoofOther
- ConstructionWood Siding
- FoundationBlock
Additional Information
- Days on Market30
Community Information
- Address3165 Goode Road
- SubdivisionPinewood Shores
- CityConyers
- CountyRockdale
- StateGA
- Zip Code30094
Interior
- Interior FeaturesPulldown Attic Stairs, Roommate Plan
- AppliancesDishwasher, Gas Water Heater, Microwave
- HeatingCentral, Natural Gas
- CoolingAttic Fan, Ceiling Fan(s)
- StoriesOne
School Information
- ElementaryHoney Creek
- MiddleEdwards
- HighHeritage
Listing Details
- Listing Provided Courtesy Of Coldwell Banker Realty
Price Change History for 3165 Goode Road, Conyers, GA (MLS® #10641275)
| Date | Details | Price | Change |
|---|---|---|---|
| Active | – | – | |
| Price Change (from New) | – | – | |
| Price Reduced (from $250,000) | $230,000 | $20,000 (8.00%) |
The data relating to real estate for sale on this web site comes in part from the Broker Reciprocity Program of Georgia MLS. Real estate listings held by brokerage firms other than Go Realty Of Georgia & Alabam are marked with the Broker Reciprocity logo and detailed information about them includes the name of the listing brokers.
The information being provided is for consumers' personal, non-commercial use and may not be used for any purpose other than to identify prospective properties consumers may be interested in purchasing. Information Deemed Reliable But Not Guaranteed.
The broker providing this data believes it to be correct, but advises interested parties to confirm them before relying on them in a purchase decision.
Copyright 2025 Georgia MLS. All rights reserved.
Listing information last updated on December 18th, 2025 at 5:16pm CST.








































