Hi There! Is this Your First Time?
Did you know if you Register you have access to free search tools including the ability to save listings and property searches? Did you know that you can bypass the search altogether and have listings sent directly to your email address? Check out our how-to page for more info.
- Price$339,990
- Beds4
- Baths3
- SQ. Feet2,203
- Acres0.17
- Built2025
313 Flax Street, Statesboro
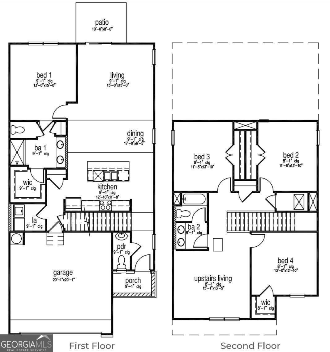
Welcome to Holly Oak. Enjoy the nearby walking path around the school. Holly Oaks is just a short drive from Georgia Southern, the Hyundai plant, and numerous top-notch schools. The Manning is a perfect home for families, with a primary suite on the main level. The open floorplan includes a spacious chefs kitchen with a large central granite island, surrounded by stainless steel appliances, and opens to the dining area and a generous family room with sliding door access to the back patio. The primary suite features a double vanity bath, a large walk-in shower, and a huge walk-in closet. Theres also a convenient laundry room located off the 2-car garage. Upstairs, an amazing family room serves as an ideal retreat, with 3 spacious secondary bedrooms and a double vanity hall bath. The pictures, photographs, colors, features, and sizes are for illustration purposes only and may vary. More information on programs and options are available for this home.
Essential Information
- MLS® #10641863
- Price$339,990
- Bedrooms4
- Bathrooms3.00
- Full Baths2
- Half Baths1
- Square Footage2,203
- Acres0.17
- Year Built2025
- TypeResidential
- Sub-TypeSingle Family Residence
- StyleTraditional
- StatusUnder Contract
Amenities
- UtilitiesUnderground Utilities
- ParkingAttached, Garage
Exterior
- Lot DescriptionNone
- RoofOther
- ConstructionVinyl Siding
Additional Information
- Days on Market2
Community Information
- Address313 Flax Street
- SubdivisionHolly Oaks
- CityStatesboro
- CountyBulloch
- StateGA
- Zip Code30461
Interior
- Interior FeaturesDouble Vanity, Pulldown Attic Stairs, Walk-In Closet(s)
- AppliancesDishwasher, Disposal, Electric Water Heater, Oven/Range (Combo), Refrigerator
- HeatingCentral, Electric
- CoolingCentral Air, Electric
- StoriesTwo
School Information
- ElementarySallie Zetterower
- MiddleLangston Chapel
- HighStatesboro
Listing Details
- Listing Provided Courtesy Of D.r. Horton Realty Of Georgia, Inc.
The data relating to real estate for sale on this web site comes in part from the Broker Reciprocity Program of Georgia MLS. Real estate listings held by brokerage firms other than Go Realty Of Georgia & Alabam are marked with the Broker Reciprocity logo and detailed information about them includes the name of the listing brokers.
The information being provided is for consumers' personal, non-commercial use and may not be used for any purpose other than to identify prospective properties consumers may be interested in purchasing. Information Deemed Reliable But Not Guaranteed.
The broker providing this data believes it to be correct, but advises interested parties to confirm them before relying on them in a purchase decision.
Copyright 2025 Georgia MLS. All rights reserved.
Listing information last updated on November 15th, 2025 at 2:15am CST.









































































