Hi There! Is this Your First Time?
Did you know if you Register you have access to free search tools including the ability to save listings and property searches? Did you know that you can bypass the search altogether and have listings sent directly to your email address? Check out our how-to page for more info.
- Price$595,000
- Beds5
- Baths3
- SQ. Feet2,594
- Acres14.62
- Built2025
151 Nancy Lane, Forsyth
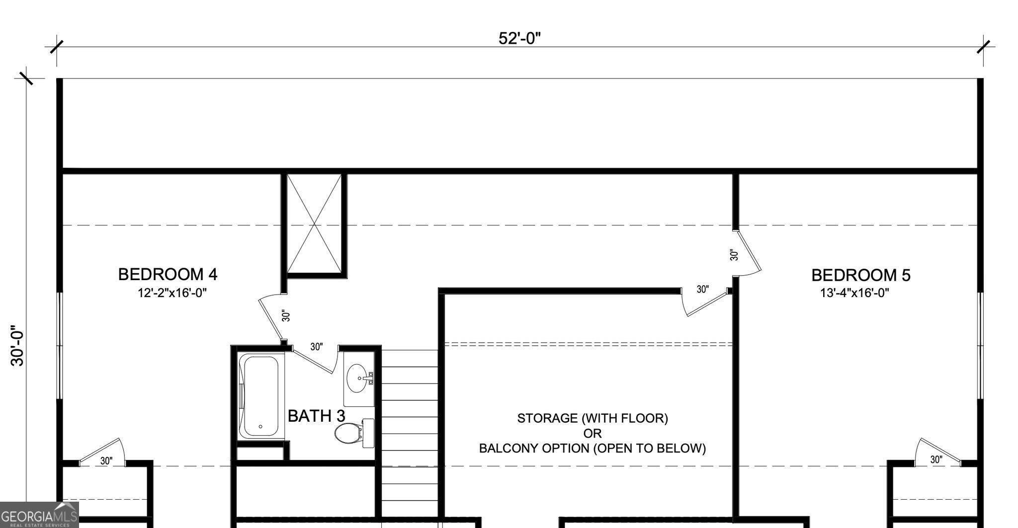
Welcome to 151 Nancy Lane in Forsyth, GA. Located just 12 miles from downtown Forsyth, this property offers privacy, space, and the comfort of 14.62 acres of land. This brand-new home features the popular White Oak Plus plan on an unfinished basement, giving you room to grow or customize as needed. Inside, you'll find 5 bedrooms, 3 bathrooms, and 2,594 heated sq ft. The unfinished basement is 1,560 sq ft, which includes two garage spaces and plenty of room for future expansion, storage, or a workshop. Enjoy the peace of country living with the convenience of being close to town. Seller is licensed RE Broker is GA. *proceed with caution at your own risk, under construction*
Essential Information
- MLS® #10644246
- Price$595,000
- Bedrooms5
- Bathrooms3.00
- Full Baths3
- Square Footage2,594
- Acres14.62
- Year Built2025
- TypeResidential
- Sub-TypeSingle Family Residence
- StyleCraftsman
- StatusUnder Contract
Amenities
- UtilitiesElectricity Available, High Speed Internet, Water Available
- ParkingOver 1 Space per Unit
Exterior
- Lot DescriptionLevel, Other
- RoofComposition
- ConstructionOther
Additional Information
- Days on Market27
Community Information
- Address151 Nancy Lane
- Subdivisionnone
- CityForsyth
- CountyMonroe
- StateGA
- Zip Code31029
Interior
- Interior FeaturesMaster On Main Level
- AppliancesDishwasher, Oven/Range (Combo), Stainless Steel Appliance(s)
- HeatingCentral
- CoolingCentral Air
- StoriesTwo
School Information
- ElementaryKB Sutton
- MiddleMonroe County
- HighMary Persons
Listing Details
- Listing Provided Courtesy Of Primepoint Ventures
- Office Info4783944545
Price Change History for 151 Nancy Lane, Forsyth, GA (MLS® #10644246)
| Date | Details | Price | Change |
|---|---|---|---|
| Under Contract | – | – | |
| Active (from New) | – | – |
The data relating to real estate for sale on this web site comes in part from the Broker Reciprocity Program of Georgia MLS. Real estate listings held by brokerage firms other than Go Realty Of Georgia & Alabam are marked with the Broker Reciprocity logo and detailed information about them includes the name of the listing brokers.
The information being provided is for consumers' personal, non-commercial use and may not be used for any purpose other than to identify prospective properties consumers may be interested in purchasing. Information Deemed Reliable But Not Guaranteed.
The broker providing this data believes it to be correct, but advises interested parties to confirm them before relying on them in a purchase decision.
Copyright 2025 Georgia MLS. All rights reserved.
Listing information last updated on December 24th, 2025 at 9:15pm CST.












