Hi There! Is this Your First Time?
Did you know if you Register you have access to free search tools including the ability to save listings and property searches? Did you know that you can bypass the search altogether and have listings sent directly to your email address? Check out our how-to page for more info.
- Price$750,000
- Acres0.79
- Built1995
905 Hillcrest Parkway, Dublin
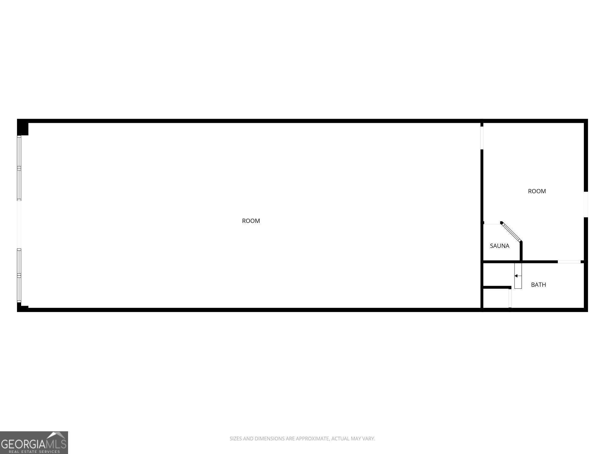
GREAT OPPORTUNITY TO OWN AN INCOME PRODUCING COMMERCIAL SHOPPING CENTER!! 7,500 square feet of commercial rental space. Two of the units are currently rented with one double unit still available for lease. The double unit would make an amazing location for a GAS STATION. The double unit has open front space great for countertops and shelving, multiple offices, storage rooms, shop/garage are with roll up door, and two bathrooms. The current owner already had a feasibility study done on the property for a gas station and can be provided to buyer upon request. FANTASTIC LOCATION on Hillcrest Pkwy close to other businesses, shopping, medical, churches, grocery stores, restaurants, and schools. Call for additional information or for appointment to view property! Owner Financing Option Available!
Essential Information
- MLS® #10644579
- Price$750,000
- Bathrooms0.00
- Acres0.79
- Year Built1995
- TypeCommercial Sale
- StatusActive
Amenities
- UtilitiesElectricity Available, High Speed Internet, Phone Available, Sewer Available, Water Available
- ParkingParking Lot, Paved
Exterior
- Lot DescriptionLevel
- ConstructionConcrete, Block
Listing Details
- Listing Provided Courtesy Of Premier Properties Of Dublin, Llc
Community Information
- Address905 Hillcrest Parkway
- SubdivisionNone
- CityDublin
- CountyLaurens
- StateGA
- Zip Code31021
Interior
- HeatingElectric
- CoolingElectric
Additional Information
- Days on Market123
- ZoningCommercial
Price Change History for 905 Hillcrest Parkway, Dublin, GA (MLS® #10644579)
| Date | Details | Price | Change |
|---|---|---|---|
| Active | – | – | |
| Price Change | – | – | |
| Price Reduced (from $1,000,000) | $750,000 | $250,000 (25.00%) | |
| Active (from New) | – | – |
The data relating to real estate for sale on this web site comes in part from the Broker Reciprocity Program of Georgia MLS. Real estate listings held by brokerage firms other than Go Realty Of Georgia & Alabam are marked with the Broker Reciprocity logo and detailed information about them includes the name of the listing brokers.
The information being provided is for consumers' personal, non-commercial use and may not be used for any purpose other than to identify prospective properties consumers may be interested in purchasing. Information Deemed Reliable But Not Guaranteed.
The broker providing this data believes it to be correct, but advises interested parties to confirm them before relying on them in a purchase decision.
Copyright 2026 Georgia MLS. All rights reserved.
Listing information last updated on April 7th, 2026 at 3:31pm CDT.
















































