Hi There! Is this Your First Time?
Did you know if you Register you have access to free search tools including the ability to save listings and property searches? Did you know that you can bypass the search altogether and have listings sent directly to your email address? Check out our how-to page for more info.
- Price$7,700,000
- Acres38.94
- Built1701
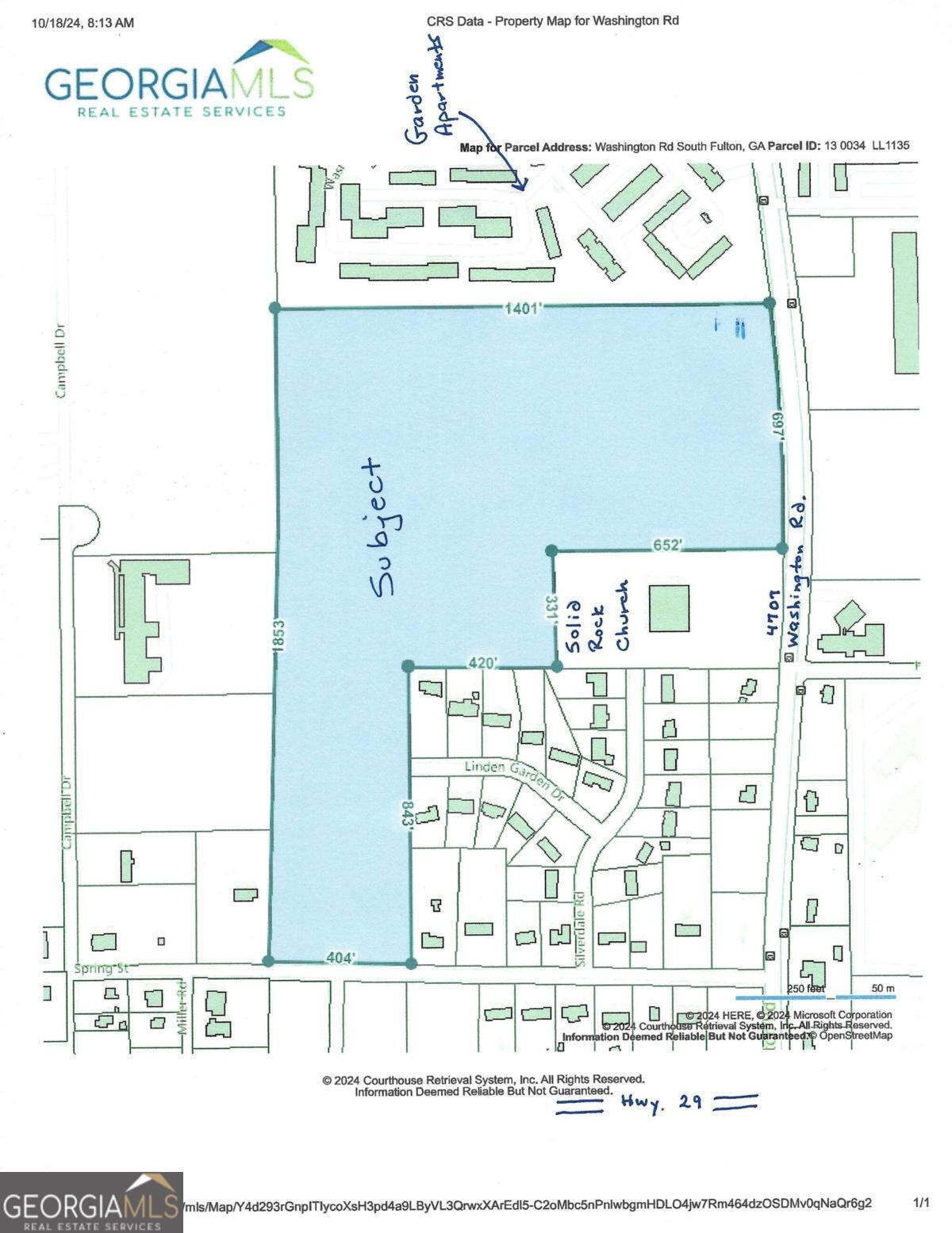
Washington Road, South Fulton
RARE FIND! 38.94 Vacant Acres perfectly situated between Hwy 29 and I-285, just minutes from Hartsfield-Jackson and Camp Creek Parkway Shopping District! Suitable for a variety of uses including Commercial, Apartments. and Churches. Golden opportunity! Owner would consider owner financing.
Essential Information
- MLS® #10644981
- Price$7,700,000
- Bathrooms0.00
- Acres38.94
- Year Built1701
- TypeCommercial Sale
- StatusActive
Amenities
- UtilitiesCable Available, Electricity Available, High Speed Internet, Natural Gas Available, Sewer Available, Water Available
- ParkingOther
Exterior
- Lot DescriptionLevel
- RoofOther
- ConstructionOther
Listing Details
- Listing Provided Courtesy Of Barfield Realty Llc
Community Information
- AddressWashington Road
- Subdivisionnone
- CitySouth Fulton
- CountyFulton
- StateGA
- Zip Code30349
Interior
- HeatingNone
- CoolingNone
Additional Information
- Days on Market65
- Zoningagricultural
Price Change History for Washington Road, South Fulton, GA (MLS® #10644981)
| Date | Details | Price | Change |
|---|---|---|---|
| Active (from New) | – | – |
The data relating to real estate for sale on this web site comes in part from the Broker Reciprocity Program of Georgia MLS. Real estate listings held by brokerage firms other than Go Realty Of Georgia & Alabam are marked with the Broker Reciprocity logo and detailed information about them includes the name of the listing brokers.
The information being provided is for consumers' personal, non-commercial use and may not be used for any purpose other than to identify prospective properties consumers may be interested in purchasing. Information Deemed Reliable But Not Guaranteed.
The broker providing this data believes it to be correct, but advises interested parties to confirm them before relying on them in a purchase decision.
Copyright 2026 Georgia MLS. All rights reserved.
Listing information last updated on March 17th, 2026 at 4:30am CDT.
