Hi There! Is this Your First Time?
Did you know if you Register you have access to free search tools including the ability to save listings and property searches? Did you know that you can bypass the search altogether and have listings sent directly to your email address? Check out our how-to page for more info.
- Price$525,000
- Acres0.48
- Built1967
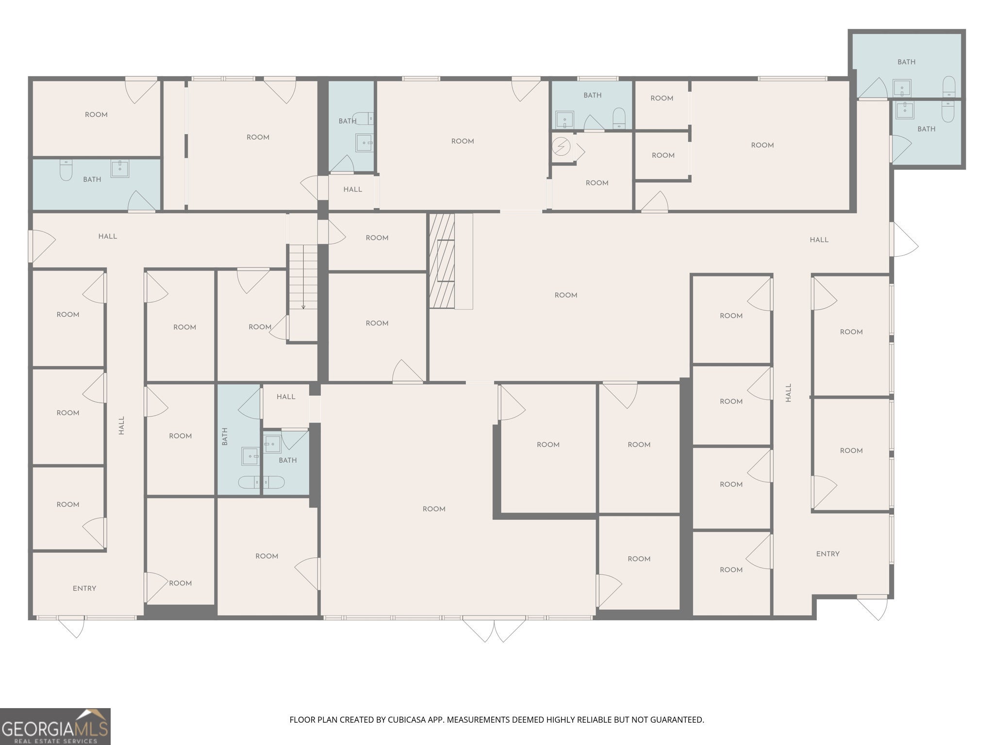
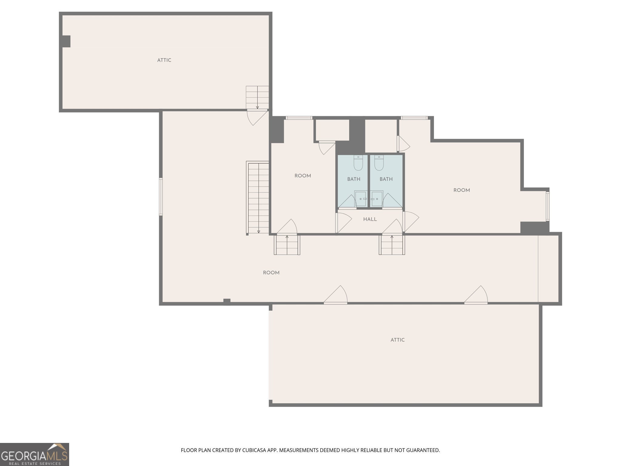
3 Dillard Sky Lane, Dillard
Completely renovated commercial building located in downtown Dillard, GA. Perfect for office suites with high visibility and great access. Price to sell, you won't find a better deal on commercial property in the North Georgia mountains!
Essential Information
- MLS® #10645345
- Price$525,000
- Bathrooms0.00
- Acres0.48
- Year Built1967
- TypeCommercial Sale
- StatusActive
Amenities
- UtilitiesElectricity Available, High Speed Internet, Natural Gas Available, Phone Available, Sewer Available, Water Available
- ParkingPaved, Parking Lot
Exterior
- Lot DescriptionCorner Lot, City Lot
- RoofComposition
- ConstructionFrame
Listing Details
- Listing Provided Courtesy Of Re/max Town & Country
Community Information
- Address3 Dillard Sky Lane
- SubdivisionSkye at Dillard
- CityDillard
- CountyRabun
- StateGA
- Zip Code30537
Interior
- HeatingCentral
- CoolingCentral Air
Additional Information
- Days on Market128
- ZoningCommercial
Price Change History for 3 Dillard Sky Lane, Dillard, GA (MLS® #10645345)
| Date | Details | Price | Change |
|---|---|---|---|
| Active | – | – | |
| Price Change | – | – | |
| Price Reduced | $525,000 | $24,000 (4.37%) | |
| Active | – | – | |
| Price Change | – | – | |
| Show More (2) | |||
| Price Reduced (from $599,000) | $549,000 | $50,000 (8.35%) | |
| Active (from New) | – | – | |
The data relating to real estate for sale on this web site comes in part from the Broker Reciprocity Program of Georgia MLS. Real estate listings held by brokerage firms other than Go Realty Of Georgia & Alabam are marked with the Broker Reciprocity logo and detailed information about them includes the name of the listing brokers.
The information being provided is for consumers' personal, non-commercial use and may not be used for any purpose other than to identify prospective properties consumers may be interested in purchasing. Information Deemed Reliable But Not Guaranteed.
The broker providing this data believes it to be correct, but advises interested parties to confirm them before relying on them in a purchase decision.
Copyright 2026 Georgia MLS. All rights reserved.
Listing information last updated on April 3rd, 2026 at 11:17am CDT.






























































