Hi There! Is this Your First Time?
Did you know if you Register you have access to free search tools including the ability to save listings and property searches? Did you know that you can bypass the search altogether and have listings sent directly to your email address? Check out our how-to page for more info.
- Price$170,000
- Beds1
- Baths1
- Acres0.10
- Built1973
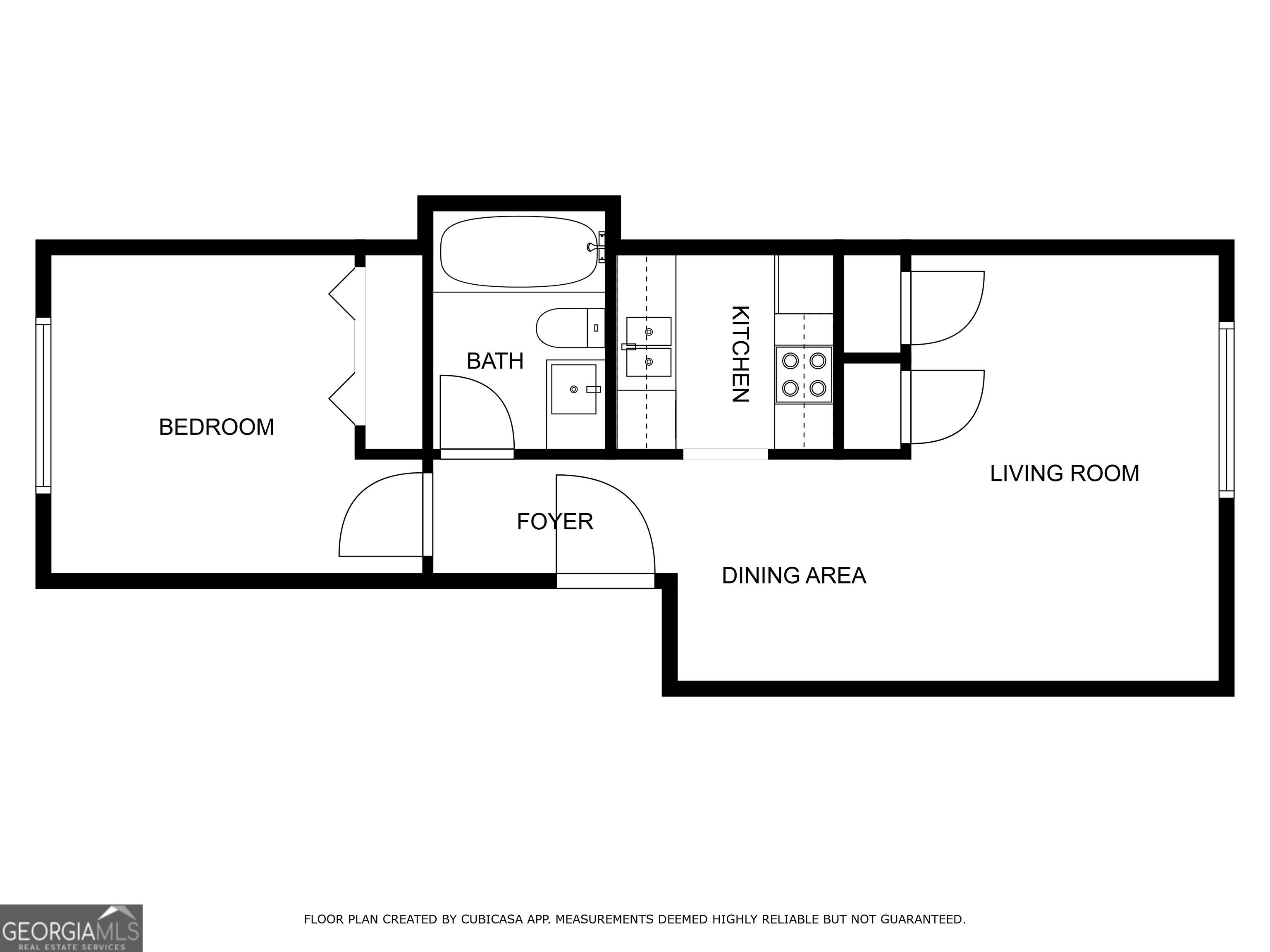
1133 Clairemont Avenue D, Decatur
The best location around! Just steps away from shopping, restaurants, downtown Decatur, and Emory/VA/CDC. Welcome to Emory Garden and a beautiful walk-in level condo that has everything you need. The living area is bright and airy, featuring large windows that fill the space with natural light. Recently installed recessed lighting enhances the open feel. The kitchen is efficiently designed and fully equipped with modern stainless-steel appliances, including a beautiful range, over-the-range microwave, large refrigerator, garbage disposal, dishwasher, and all-in-one washer/dryer unit. With generous counter space and crisp white cabinets, you'll have plenty of room for both cooking and storage. The bedroom offers a serene retreat with blackout shades and ample space for a queen-size bed and furnishings. A closet with built-in shelving keeps everything organized. The bath features stylish penny tile flooring along with shelving for additional storage and convenience. This condo is move-in ready with thoughtful upgrades, including a tankless water heater, a recently serviced HVAC system (still under warranty), one assigned parking space right at the building, and a private storage closet in the building next door. Located at parking level, you'll enjoy step-free access-no stairs required. Stop paying your landlord's mortgage and start building your own equity today! Community does not allow rentals at the tie of listing. Owner occupant only.
Essential Information
- MLS® #10645655
- Price$170,000
- Bedrooms1
- Bathrooms1.00
- Full Baths1
- Acres0.10
- Year Built1973
- TypeResidential
- Sub-TypeCondominium
- StyleBrick 4 Side
- StatusActive
Amenities
- UtilitiesCable Available
- Parking Spaces1
- ParkingAssigned
- ViewCity
- WaterfrontNo Dock Or Boathouse
- Has PoolYes
- PoolIn Ground
Exterior
- Lot DescriptionOther
- RoofComposition
- ConstructionBrick
- FoundationBlock
Additional Information
- Days on Market23
Community Information
- Address1133 Clairemont Avenue D
- SubdivisionEmory Garden
- CityDecatur
- CountyDeKalb
- StateGA
- Zip Code30030
Interior
- Interior FeaturesMaster On Main Level, Other
- AppliancesDishwasher, Disposal, Microwave, Refrigerator, Tankless Water Heater, Washer
- HeatingCentral
- CoolingCentral Air
- StoriesOne
School Information
- ElementaryFernbank
- MiddleDruid Hills
- HighDruid Hills
Listing Details
- Listing Provided Courtesy Of Bolst, Inc.
Price Change History for 1133 Clairemont Avenue D, Decatur, GA (MLS® #10645655)
| Date | Details | Price | Change |
|---|---|---|---|
| Active | – | – | |
| Price Change | – | – | |
| Price Reduced (from $174,000) | $170,000 | $4,000 (2.30%) | |
| Active (from New) | – | – |
The data relating to real estate for sale on this web site comes in part from the Broker Reciprocity Program of Georgia MLS. Real estate listings held by brokerage firms other than Go Realty Of Georgia & Alabam are marked with the Broker Reciprocity logo and detailed information about them includes the name of the listing brokers.
The information being provided is for consumers' personal, non-commercial use and may not be used for any purpose other than to identify prospective properties consumers may be interested in purchasing. Information Deemed Reliable But Not Guaranteed.
The broker providing this data believes it to be correct, but advises interested parties to confirm them before relying on them in a purchase decision.
Copyright 2025 Georgia MLS. All rights reserved.
Listing information last updated on December 21st, 2025 at 6:30am CST.




















