Hi There! Is this Your First Time?
Did you know if you Register you have access to free search tools including the ability to save listings and property searches? Did you know that you can bypass the search altogether and have listings sent directly to your email address? Check out our how-to page for more info.
- Price$370,000
- Acres2.71
883 Mountain View Drive, Stone Mountain
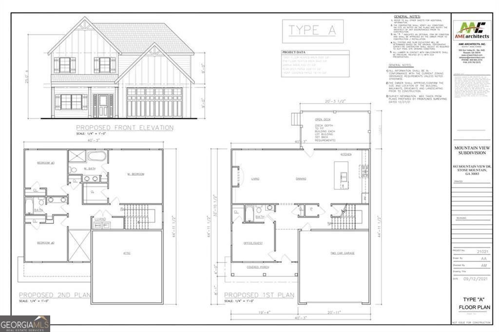
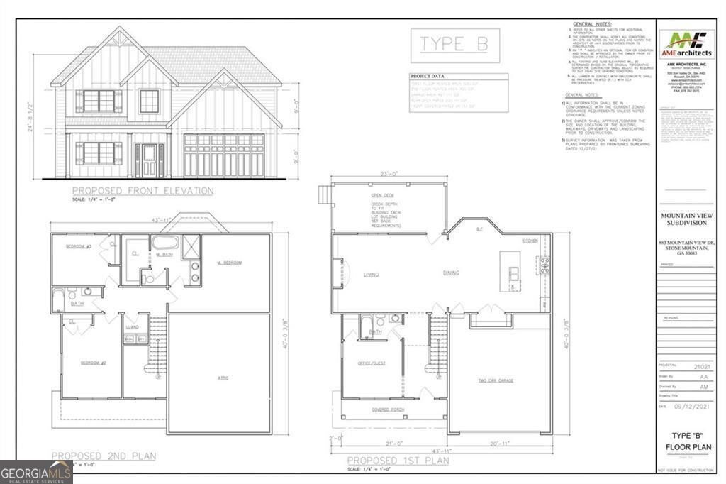
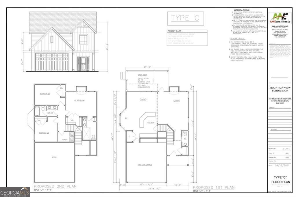
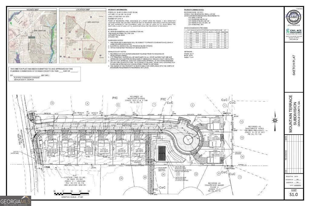
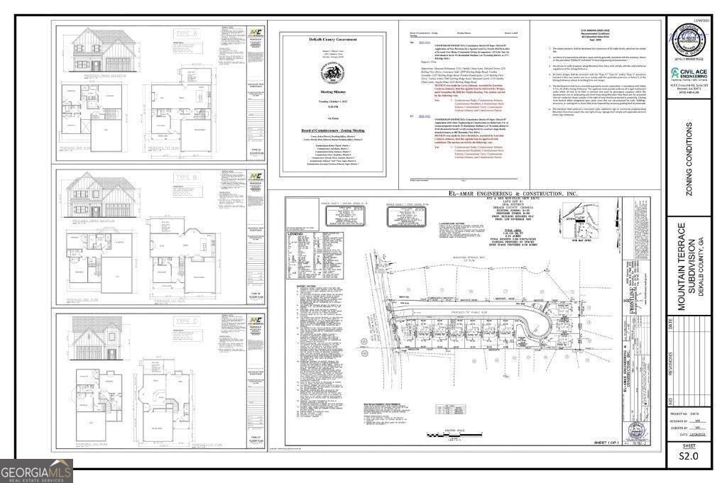
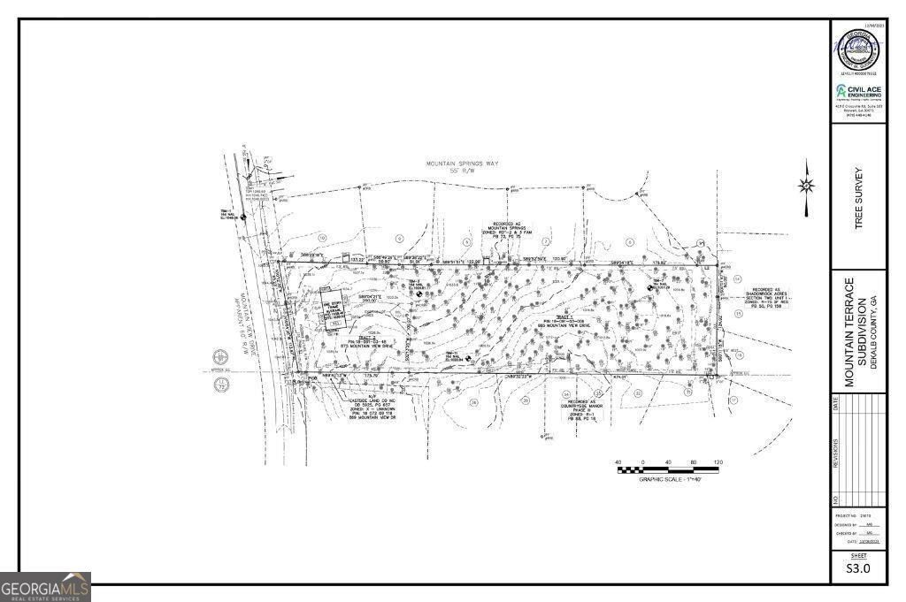
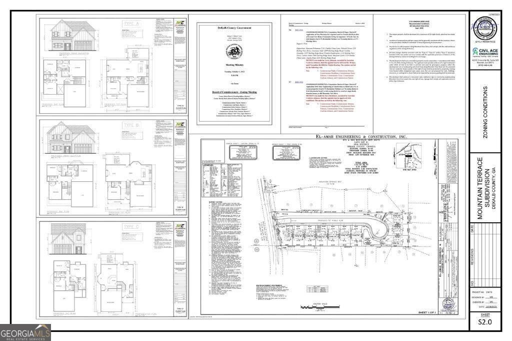
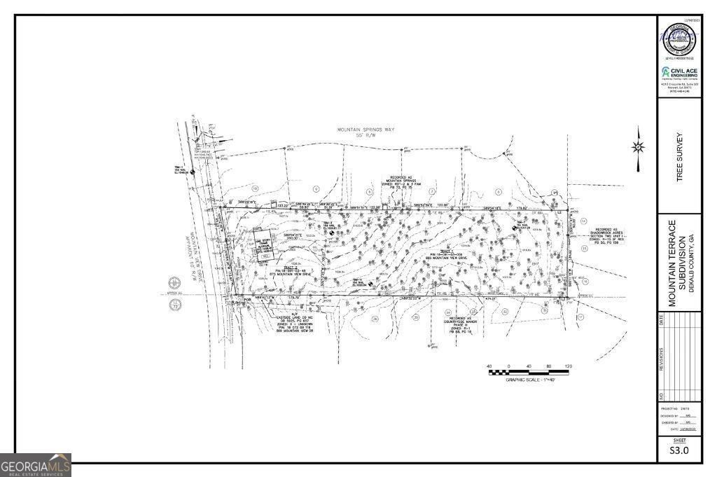
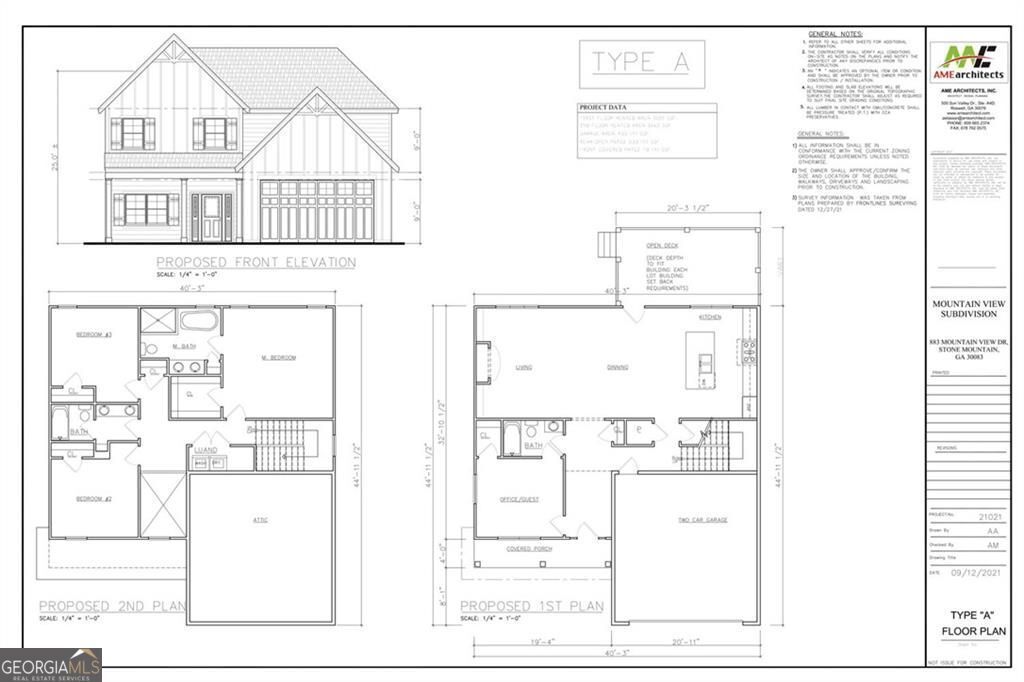
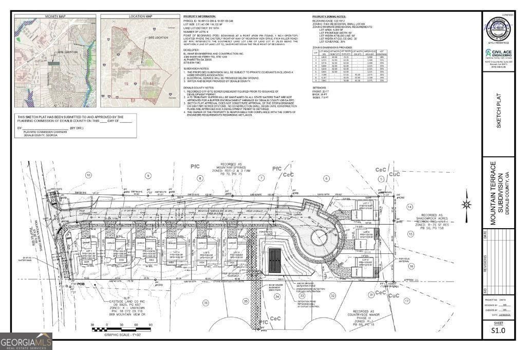
Imagine a secluded, wooded retreat where modern living meets the historic charm of Stone Mountain. This rare 2.71 acre development site in the transitioning Stone Mountain Terrace neighborhood offers a near-shovel-ready opportunity to create a premier gated community. With rezoning already secured from R75 to R60, the heavy lifting has been completed, paving the way for a refined nine home enclave that balances total privacy with neighborhood connectivity. The site is perfectly positioned for success, with high demand new construction in the immediate two mile radius consistently commanding prices between $450,000 and $500,000. Future residents will enjoy a lifestyle defined by both nature and accessibility, located just minutes from the boutique shops of Stone Mountain Village and the vast recreational trails of Stone Mountain Park. Everyday essentials are equally close, with a major retail hub featuring Publix, Walmart, and The Home Depot less than four miles away. Education is within easy reach as well, with the local elementary and middle schools situated just about a mile from the property. This offering is a meticulously prepared canvas, arriving with a comprehensive development package that includes a full survey, recorded sewer easements, and three distinct architectural home plans designed for contemporary tastes. All documentation is organized and ready for Land Disturbance Permit submission, ensuring a streamlined transition from vision to groundbreaking. In an area where buildable land is becoming a scarcity, this combined tract at 883 and 875 Mountain View Drive stands out as a strategic investment in a high growth pocket. Secure this site and lead the next wave of residential excellence in a community that perfectly blends tranquility with urban convenience.
Essential Information
- MLS® #10648086
- Price$370,000
- Bathrooms0.00
- Acres2.71
- TypeLand
- Sub-TypeUnimproved Land
- StatusActive
Amenities
- UtilitiesOther
School Information
- ElementaryStone Mill
- MiddleStone Mountain
- HighStone Mountain
Listing Details
- Listing Provided Courtesy Of Bhgre Metro Brokers
Community Information
- Address883 Mountain View Drive
- SubdivisionStone Mountain Terrace
- CityStone Mountain
- CountyDeKalb
- StateGA
- Zip Code30083
Exterior
- Lot DescriptionOther
Additional Information
- Days on Market102
Price Change History for 883 Mountain View Drive, Stone Mountain, GA (MLS® #10648086)
| Date | Details | Price | Change |
|---|---|---|---|
| Active | – | – | |
| Price Change | – | – | |
| Price Reduced (from $450,000) | $370,000 | $80,000 (17.78%) | |
| Active (from New) | – | – |
The data relating to real estate for sale on this web site comes in part from the Broker Reciprocity Program of Georgia MLS. Real estate listings held by brokerage firms other than Go Realty Of Georgia & Alabam are marked with the Broker Reciprocity logo and detailed information about them includes the name of the listing brokers.
The information being provided is for consumers' personal, non-commercial use and may not be used for any purpose other than to identify prospective properties consumers may be interested in purchasing. Information Deemed Reliable But Not Guaranteed.
The broker providing this data believes it to be correct, but advises interested parties to confirm them before relying on them in a purchase decision.
Copyright 2026 Georgia MLS. All rights reserved.
Listing information last updated on March 14th, 2026 at 9:00am CDT.














