Hi There! Is this Your First Time?
Did you know if you Register you have access to free search tools including the ability to save listings and property searches? Did you know that you can bypass the search altogether and have listings sent directly to your email address? Check out our how-to page for more info.
- Price$232,100
- Beds3
- Baths2
- SQ. Feet1,240
- Acres0.54
- Built2025
128 Woods Avenue, Portal
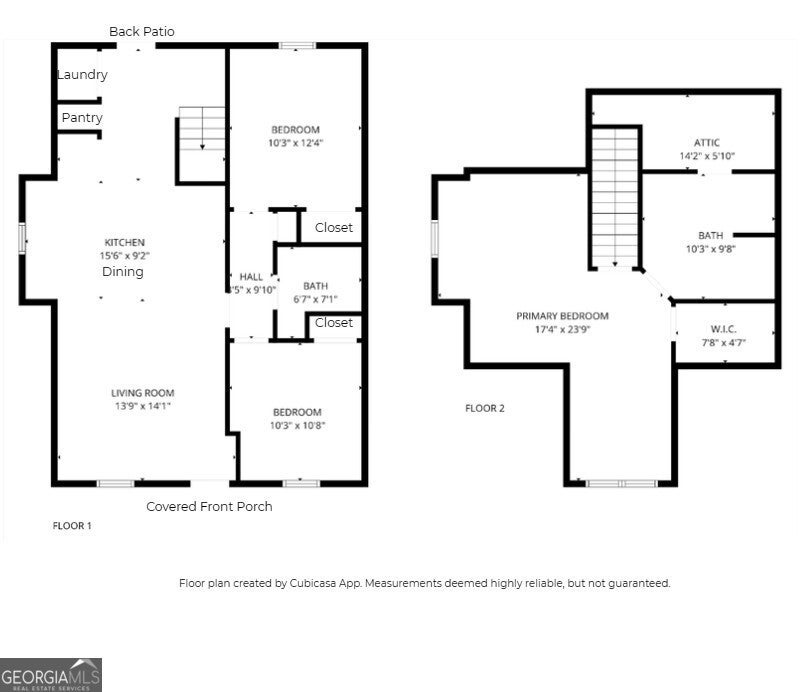
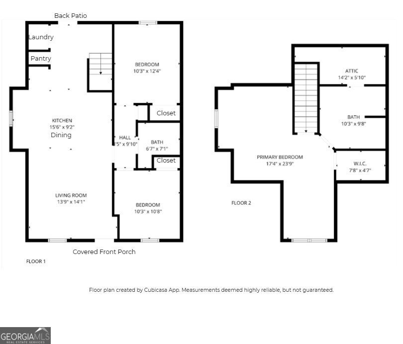
Offering $3,500 in seller concessions for a limited time. Discover this move-in-ready, cottage style, 1,240 sq. ft. 2-story home full of charm and character. Thoughtfully designed with an open-concept layout, this 3-bedroom, 2-bath home features a spacious living area that flows seamlessly into the kitchen and dining space, perfect for everyday living and entertaining. The kitchen includes gorgeous granite countertops, stainless appliances, ample cabinetry, and a pantry. Upstairs, the spacious primary suite offers an en-suite bath and a large walk-in closet. This new construction also features luxury vinyl plank flooring throughout the home, and a pine-planked ceiling adds warmth to the front porch. Nestled in a quaint 5-home enclave in the heart of Portal, GA, and just a short walk to Portal Elementary School, this residence blends peaceful small-town charm with modern comfort.
Essential Information
- MLS® #10648123
- Price$232,100
- Bedrooms3
- Bathrooms2.00
- Full Baths2
- Square Footage1,240
- Acres0.54
- Year Built2025
- TypeResidential
- Sub-TypeSingle Family Residence
- StyleCraftsman
- StatusActive
Amenities
- UtilitiesElectricity Available, High Speed Internet
- ParkingNone
Exterior
- Lot DescriptionLevel
- RoofComposition
- ConstructionVinyl Siding
Additional Information
- Days on Market121
Community Information
- Address128 Woods Avenue
- SubdivisionWoods Ave
- CityPortal
- CountyBulloch
- StateGA
- Zip Code30450
Interior
- Interior FeaturesWalk-In Closet(s)
- AppliancesDishwasher, Electric Water Heater, Oven/Range (Combo)
- HeatingCentral, Electric
- CoolingCeiling Fan(s), Central Air, Electric
- StoriesTwo
School Information
- ElementaryPortal
- MiddlePortal
- HighPortal
Listing Details
- Listing Provided Courtesy Of Brown Land And Realty
Price Change History for 128 Woods Avenue, Portal, GA (MLS® #10648123)
| Date | Details | Price | Change |
|---|---|---|---|
| Active | – | – | |
| Price Change | – | – | |
| Price Reduced (from $235,600) | $232,100 | $3,500 (1.49%) | |
| Active (from New) | – | – |
The data relating to real estate for sale on this web site comes in part from the Broker Reciprocity Program of Georgia MLS. Real estate listings held by brokerage firms other than Go Realty Of Georgia & Alabam are marked with the Broker Reciprocity logo and detailed information about them includes the name of the listing brokers.
The information being provided is for consumers' personal, non-commercial use and may not be used for any purpose other than to identify prospective properties consumers may be interested in purchasing. Information Deemed Reliable But Not Guaranteed.
The broker providing this data believes it to be correct, but advises interested parties to confirm them before relying on them in a purchase decision.
Copyright 2026 Georgia MLS. All rights reserved.
Listing information last updated on March 26th, 2026 at 9:32am CDT.














