Hi There! Is this Your First Time?
Did you know if you Register you have access to free search tools including the ability to save listings and property searches? Did you know that you can bypass the search altogether and have listings sent directly to your email address? Check out our how-to page for more info.
- Price$289,000
- Acres0.35
- Built1935
1040 Bowersville Street, Royston
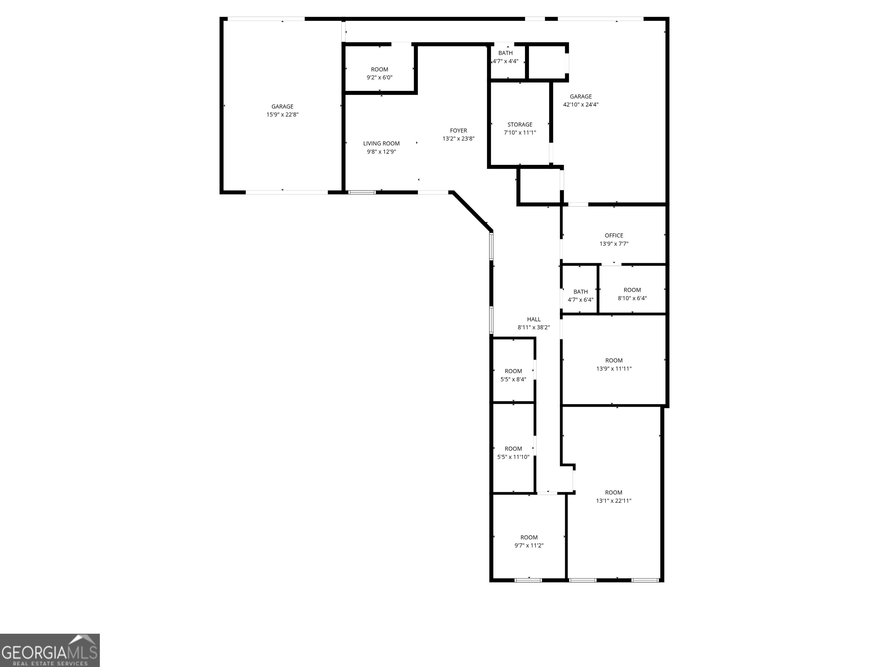
Prime Commercial Space with Warehouse + Offices - 1040 Bowersville St, Royston, GA Fantastic opportunity in the heart of Royston! This versatile commercial property offers approximately 2,000 sq ft of office space paired with 4,000 sq ft of warehouse area, making it an excellent fit for a wide range of business uses. Positioned on double road frontage with private parking, visibility and access are major highlights of this location. The interior features a welcoming lobby, front reception area, file/storage room, and multiple private offices, providing a functional work layout for administrative needs or client-facing operations. The warehouse section impresses with its expansive brick interior, large roll-up doors, tall ceilings, and solid structural foundation-giving this space great bones for industrial, manufacturing, distribution, storage, retail support, service business, or workshop use. Recent property updates enhance usability and reduce startup cost, while the layout allows for endless potential-owner-user, investor, or expansion site alike. Whether you're growing your business, relocating, or developing a new concept, this property is spacious, flexible, and well-positioned for long-term growth. Key Features: * ~2,000 sq ft finished office space * ~4,000 sq ft warehouse with brick interior * Double road frontage for premium exposure * Private parking lot + large roll-up doors * Recently updated and move-in-ready * Numerous configuration possibilities Rare chance to own adaptable commercial space in a prime Royston location. Opportunities like this are hard to find, schedule a showing today!
Essential Information
- MLS® #10650162
- Price$289,000
- Bathrooms0.00
- Acres0.35
- Year Built1935
- TypeCommercial Sale
- StatusActive
Amenities
- UtilitiesElectricity Available, High Speed Internet, Sewer Available
- ParkingParking Lot, Paved, Drive Through
Exterior
- Lot DescriptionCity Lot
- RoofComposition
- ConstructionBlock, Other, Vinyl Siding, Frame
Listing Details
- Listing Provided Courtesy Of Re/max Classic
- Office Info7064769489
Community Information
- Address1040 Bowersville Street
- Subdivisionnone
- CityRoyston
- CountyFranklin
- StateGA
- Zip Code30662
Interior
- HeatingCentral
- CoolingCentral Air
Additional Information
- Days on Market97
- ZoningDT1
Price Change History for 1040 Bowersville Street, Royston, GA (MLS® #10650162)
| Date | Details | Price | Change |
|---|---|---|---|
| Active | – | – | |
| Back On Market | – | – | |
| Active (from New) | – | – |
The data relating to real estate for sale on this web site comes in part from the Broker Reciprocity Program of Georgia MLS. Real estate listings held by brokerage firms other than Go Realty Of Georgia & Alabam are marked with the Broker Reciprocity logo and detailed information about them includes the name of the listing brokers.
The information being provided is for consumers' personal, non-commercial use and may not be used for any purpose other than to identify prospective properties consumers may be interested in purchasing. Information Deemed Reliable But Not Guaranteed.
The broker providing this data believes it to be correct, but advises interested parties to confirm them before relying on them in a purchase decision.
Copyright 2026 Georgia MLS. All rights reserved.
Listing information last updated on March 22nd, 2026 at 9:00pm CDT.


































































