Hi There! Is this Your First Time?
Did you know if you Register you have access to free search tools including the ability to save listings and property searches? Did you know that you can bypass the search altogether and have listings sent directly to your email address? Check out our how-to page for more info.
- Price$3,000
- Acres1.33
- Built2019
435 Loganville Highway 200, Winder
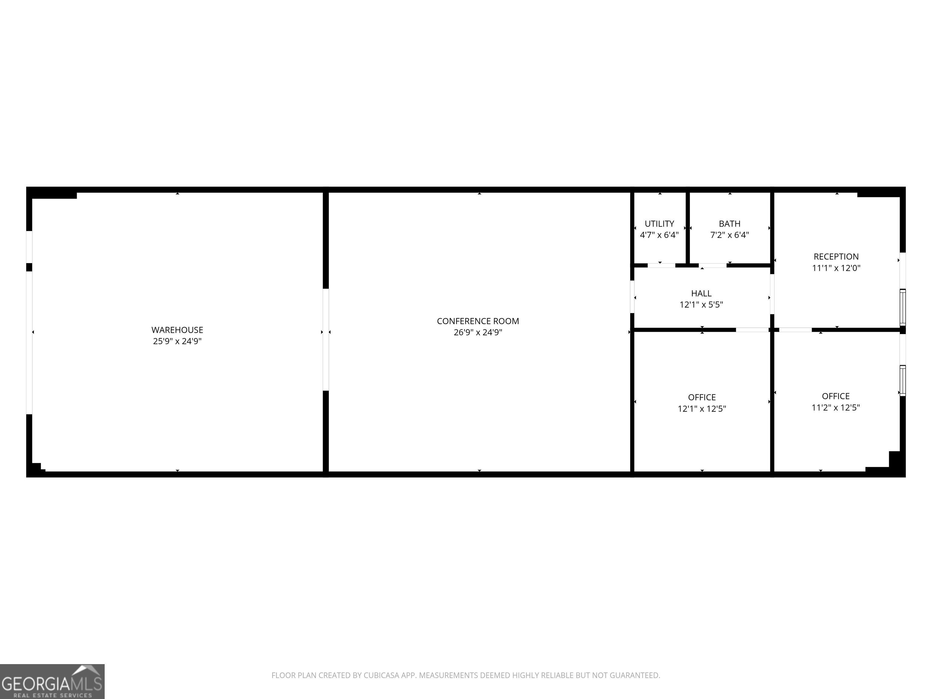
Built in 2019, Unit 200 is available for Lease. Located 2.6 miles from Hwy 316 or 1.7 miles from Hwy 8/29 in downtown Winder. Suite 200 offers 2,133 SF for your business with 1,483+/-SF consisting of a lobby or reception area, 2 equally oversized offices, 1 restroom and 1 extra large conference or production room. The remaining 650 SF of warehouse space with 14'6" clear ceiling heights is accessible by a 12' x 12' drive-in bay door. Ample parking surrounds the building which is split into 3 private Suites. This building is Zoned B2 with the City of Winder. The monthly rental rate of $3,000 includes Base Rent plus all NNN Lease Fees. Minimum 3-year lease, Deposit of $5,000 and Application Fee is required. Please contact Leasing Agent for more details.
Essential Information
- MLS® #10650406
- Price$3,000
- Bathrooms0.00
- Acres1.33
- Year Built2019
- TypeCommercial Lease
- StatusActive
Amenities
- UtilitiesCable Available, Electricity Available, High Speed Internet, Phone Available, Sewer Available, Water Available
- ParkingParking Lot, Paved
Exterior
- Lot DescriptionBusiness Park, Level
- RoofMetal
- ConstructionBrick, Steel Siding
Listing Details
- Listing Provided Courtesy Of Maximum One Premier Realtors
- Office Info404-394-7475
Community Information
- Address435 Loganville Highway 200
- SubdivisionNone
- CityWinder
- CountyBarrow
- StateGA
- Zip Code30680
Interior
- HeatingCentral, Electric
- CoolingCentral Air, Electric
Additional Information
- Days on Market14
- ZoningB2
Price Change History for 435 Loganville Highway 200, Winder, GA (MLS® #10650406)
| Date | Details | Price | Change |
|---|---|---|---|
| Active (from New) | – | – |
The data relating to real estate for sale on this web site comes in part from the Broker Reciprocity Program of Georgia MLS. Real estate listings held by brokerage firms other than Go Realty Of Georgia & Alabam are marked with the Broker Reciprocity logo and detailed information about them includes the name of the listing brokers.
The information being provided is for consumers' personal, non-commercial use and may not be used for any purpose other than to identify prospective properties consumers may be interested in purchasing. Information Deemed Reliable But Not Guaranteed.
The broker providing this data believes it to be correct, but advises interested parties to confirm them before relying on them in a purchase decision.
Copyright 2026 Georgia MLS. All rights reserved.
Listing information last updated on January 11th, 2026 at 8:15pm CST.















