Hi There! Is this Your First Time?
Did you know if you Register you have access to free search tools including the ability to save listings and property searches? Did you know that you can bypass the search altogether and have listings sent directly to your email address? Check out our how-to page for more info.
- Price$840,000
- Beds5
- Baths5
- SQ. Feet4,898
- Acres0.40
- Built1989
10530 Branham Fields Road, Johns Creek
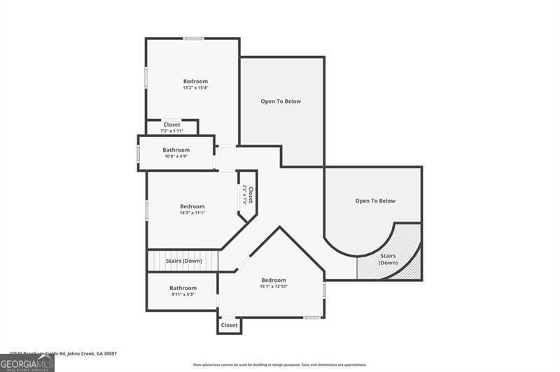
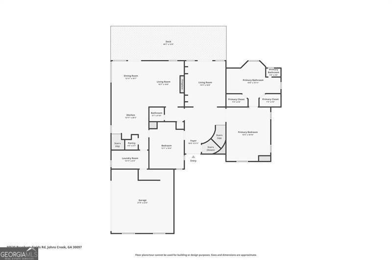
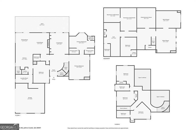
Welcome to 10530 Branham Fields Road, a stunning residence in the heart of Johns Creek. This home offers not only spacious living but also an unbeatable location. Within walking distance to Northview High School and minutes from top-rated elementary and middle schools, it places your family in one of Georgia's most sought-after districts. One-of-a-kind floor plan with the Master Suite on the Main level. Roaring two-story entryway opens to a double fireside family room with doors leading to a privately landscaped backyard. Chef-inspired kitchen with cozy fireside keeping room, oversized island, abundant cabinetry, separate coffee bar, stainless steel appliances, breakfast area, and a second stairway to upstairs guest rooms. Recently renovated bathrooms and freshly painted interior make this home truly move-in ready. Finished terrace level includes an entertainment area, game room, music studio with soundproofing, guest suite with full bath, and additional storage space. Fabulous outdoor entertaining space with a level backyard landscaped for privacy and room for a pool. Located in a beautifully established neighborhood with active swim/tennis amenities and sidewalks. Upgrades (Valued at $26,000) Luxury Vinyl Plank (LVP) flooring throughout the entire 2nd floor, master bedroom, and basement room. Hardwood flooring added from kitchen to 2nd floor stairs. Fresh paint for all closets, laundry room, and doors. Garage painting plus electric car charging outlet. Custom closets in the master suite. Stylish barn door in the dining room. Deck painting for refreshed outdoor living. Shopping, dining, and entertainment are just around the corner, while major highways provide easy access to Alpharetta, Duluth, and Atlanta. Families choose Johns Creek for its award-winning schools, vibrant community, and exceptional quality of life-making this property a rare opportunity to enjoy it all.
Essential Information
- MLS® #10653045
- Price$840,000
- Bedrooms5
- Bathrooms5.00
- Full Baths4
- Half Baths1
- Square Footage4,898
- Acres0.40
- Year Built1989
- TypeResidential
- Sub-TypeSingle Family Residence
- StyleTraditional
- StatusActive
Amenities
- UtilitiesCable Available, Electricity Available, High Speed Internet, Natural Gas Available, Sewer Connected, Sewer Available, Phone Available, Underground Utilities
- Parking Spaces2
- ParkingGarage Door Opener, Garage
Exterior
- Lot DescriptionPrivate, Level
- RoofComposition
- ConstructionStucco
Additional Information
- Days on Market6
Community Information
- Address10530 Branham Fields Road
- SubdivisionHighgate
- CityJohns Creek
- CountyFulton
- StateGA
- Zip Code30097
Interior
- Interior FeaturesHigh Ceilings, Double Vanity, Soaking Tub, Master On Main Level, Separate Shower, Tray Ceiling(s), Vaulted Ceiling(s), Walk-In Closet(s)
- AppliancesDishwasher, Disposal, Gas Water Heater, Microwave, Stainless Steel Appliance(s)
- HeatingForced Air, Natural Gas, Zoned
- CoolingCentral Air, Zoned, Electric
- FireplaceYes
- # of Fireplaces2
- FireplacesFamily Room
- StoriesTwo
School Information
- ElementaryMedlock Bridge
- MiddleRiver Trail
- HighNorthview
Listing Details
- Listing Provided Courtesy Of Maximum One Executive Realtors
- Office Info+17342337421
Price Change History for 10530 Branham Fields Road, Johns Creek, GA (MLS® #10653045)
| Date | Details | Price | Change |
|---|---|---|---|
| Active (from Price Change) | – | – |
The data relating to real estate for sale on this web site comes in part from the Broker Reciprocity Program of Georgia MLS. Real estate listings held by brokerage firms other than Go Realty Of Georgia & Alabam are marked with the Broker Reciprocity logo and detailed information about them includes the name of the listing brokers.
The information being provided is for consumers' personal, non-commercial use and may not be used for any purpose other than to identify prospective properties consumers may be interested in purchasing. Information Deemed Reliable But Not Guaranteed.
The broker providing this data believes it to be correct, but advises interested parties to confirm them before relying on them in a purchase decision.
Copyright 2025 Georgia MLS. All rights reserved.
Listing information last updated on December 18th, 2025 at 6:15am CST.














































































