Hi There! Is this Your First Time?
Did you know if you Register you have access to free search tools including the ability to save listings and property searches? Did you know that you can bypass the search altogether and have listings sent directly to your email address? Check out our how-to page for more info.
- Price$649,010
- Acres0.48
1333 Victor Road Ne, Atlanta
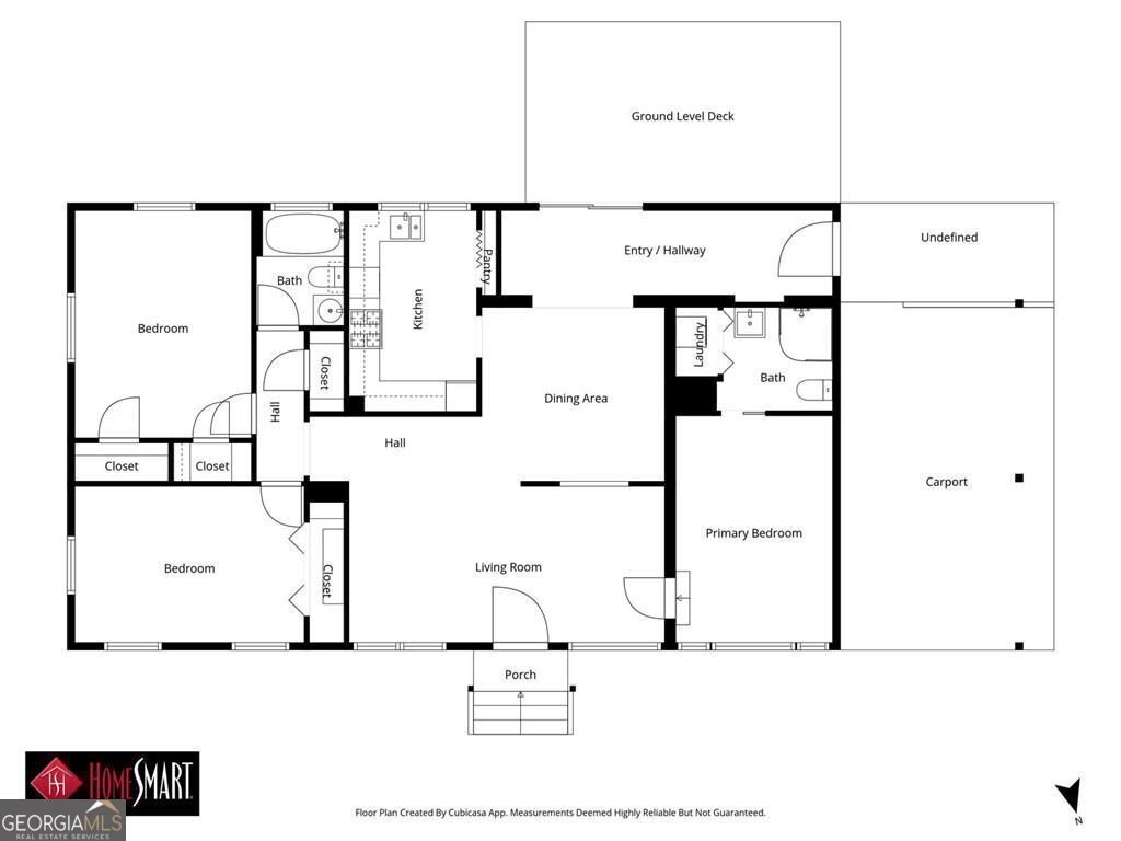
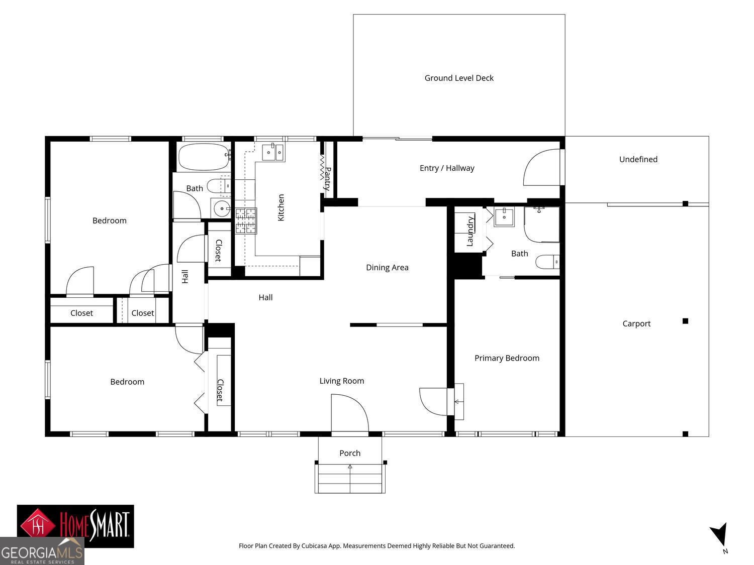
Perfect Level Almost Half Acre Lot to build your new dream home. You can utilize the existing brick ranch home to easily expand or build new construction. This is an exceptional opportunity to make Pine Hills your home at an unbeatable price, surrounded by new construction ranging from $2M-$3M+. The level lot offers excellent potential for expansion or new construction. The current carport can easily be converted into a garage, and plans are available to add a 3-car garage and approximately 2,000 additional square feet for expansive one-level living. Welcome to 1333 Victor. This peaceful and quiet 3-bedroom, 2-bath ranch sits on a private half-acre lot along Peachtree Creek. The Peachtree Creek Greenway is expanding on the opposite side of the creek, offering future access to a trail system that will stretch along Peachtree Creek to Doraville and connect to the BeltLine and Path 400-providing full trail connectivity across the city. Tucked away in the highly sought-after Pine Hills neighborhood, this central location is just minutes from the heart of Buckhead, top shopping, and incredible restaurants. No HOA and lower Dekalb County Property Taxes. Enjoy easy access to GA 400, I-75, I-85, the Lenox MARTA station, Phipps Plaza, and Lenox Square. Take morning strolls through this pine-studded sanctuary or walk over to the soccer fields and basketball courts at Shady Valley Park to appreciate the neighborhood's unmatched setting. Residents can also join the Roxboro Valley Swim & Tennis Club, which features a 25-meter heated pool with high and low diving boards, lighted tennis and pickleball courts, a zero-entry baby pool, picnic pavilion, playground, and more. Experience the best of city living with a true neighborhood feel. Inside, the home is move-in ready, with hardwood floors that welcome you as soon as you enter. The spacious living room leads to a separate dining room and a kitchen with stained cabinetry and stainless-steel appliances, including a gas range. The property includes a generous front yard and a fully fenced, level backyard with a ground-level deck perfect for entertaining. A large shed in the back provides ample storage. Recent improvements include full exterior painting, interior upgrades, lighting upgrades, and bathroom updates. The HVAC and Roof are only a few years old. Home has newer windows with Levelor Blackout Window Shades. The home is also available fully furnished and ready for immediate move-in-ask for details. Owner is a licensed real estate agent in Georgia.
Essential Information
- MLS® #10654161
- Price$649,010
- Bathrooms0.00
- Acres0.48
- TypeLand
- Sub-TypeResidential Lot
- StatusActive
Amenities
- UtilitiesCable Available, Electricity Available, Natural Gas Available, Phone Available, Sewer Available, Water Available
School Information
- ElementaryWoodward
- MiddleSequoyah
- HighCross Keys
Listing Details
- Listing Provided Courtesy Of Homesmart
Community Information
- Address1333 Victor Road Ne
- SubdivisionPine Hills / Brookhaven
- CityAtlanta
- CountyDeKalb
- StateGA
- Zip Code30324
Exterior
- Lot DescriptionLevel
Additional Information
- Days on Market55
Price Change History for 1333 Victor Road Ne, Atlanta, GA (MLS® #10654161)
| Date | Details | Price | Change |
|---|---|---|---|
| Active | – | – | |
| Price Change | – | – | |
| Price Increased | $649,010 | $10 (0.00%) | |
| Active | – | – | |
| Price Change | – | – | |
| Show More (5) | |||
| Price Reduced | $649,000 | $15,990 (2.40%) | |
| Active | – | – | |
| Price Change | – | – | |
| Price Reduced (from $665,000) | $664,990 | $10 (0.00%) | |
| Active (from New) | – | – | |
The data relating to real estate for sale on this web site comes in part from the Broker Reciprocity Program of Georgia MLS. Real estate listings held by brokerage firms other than Go Realty Of Georgia & Alabam are marked with the Broker Reciprocity logo and detailed information about them includes the name of the listing brokers.
The information being provided is for consumers' personal, non-commercial use and may not be used for any purpose other than to identify prospective properties consumers may be interested in purchasing. Information Deemed Reliable But Not Guaranteed.
The broker providing this data believes it to be correct, but advises interested parties to confirm them before relying on them in a purchase decision.
Copyright 2026 Georgia MLS. All rights reserved.
Listing information last updated on January 30th, 2026 at 2:31pm CST.



































