Hi There! Is this Your First Time?
Did you know if you Register you have access to free search tools including the ability to save listings and property searches? Did you know that you can bypass the search altogether and have listings sent directly to your email address? Check out our how-to page for more info.
- Price$450
- Built2006
8317 Office Park Drive, Douglasville
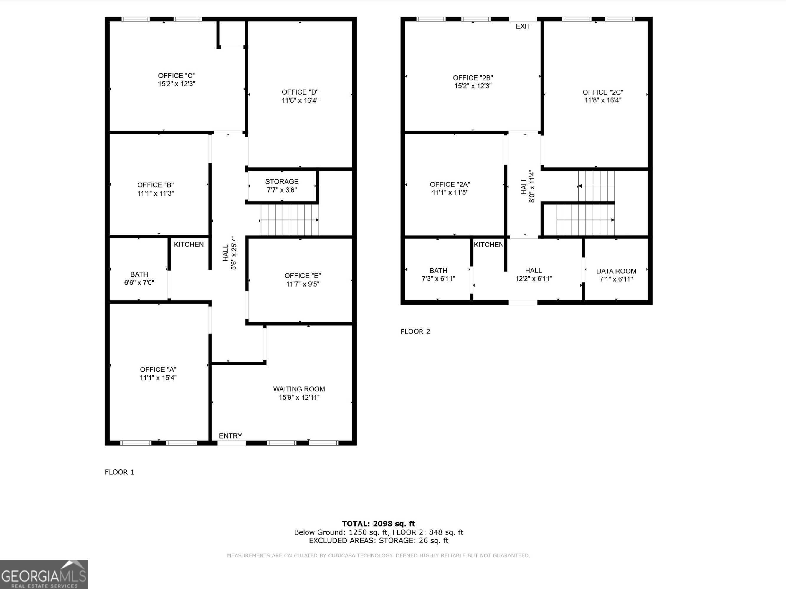
Newly renovated private offices available- Building offers easy access, waiting areas, bathrooms, kitchenette areas, storage center, and data/server room. Currently offices B, 2A, and 2C are available. Please refer to the FloorPlan image for location. The building is located in an office park that is conveniently located off a major connecting corridor. Heavy retail development, interstate, move studio, and industrial spaces nearby.
Essential Information
- MLS® #10654348
- Price$450
- Bathrooms0.00
- Acres0.00
- Year Built2006
- TypeCommercial Lease
- StatusNew
Amenities
- UtilitiesElectricity Available, High Speed Internet, Sewer Available, Underground Utilities, Water Available
- Parking Spaces10
- ParkingParking Lot, Paved
Exterior
- Lot DescriptionLevel, Industrial Park
- RoofComposition
- ConstructionWood Siding
Listing Details
- Listing Provided Courtesy Of Pioneer Realty Group
Community Information
- Address8317 Office Park Drive
- SubdivisionMagnolia Office Park
- CityDouglasville
- CountyDouglas
- StateGA
- Zip Code30134
Interior
- HeatingCentral, Electric
- CoolingCentral Air, Electric
Additional Information
- ZoningO-I
The data relating to real estate for sale on this web site comes in part from the Broker Reciprocity Program of Georgia MLS. Real estate listings held by brokerage firms other than Go Realty Of Georgia & Alabam are marked with the Broker Reciprocity logo and detailed information about them includes the name of the listing brokers.
The information being provided is for consumers' personal, non-commercial use and may not be used for any purpose other than to identify prospective properties consumers may be interested in purchasing. Information Deemed Reliable But Not Guaranteed.
The broker providing this data believes it to be correct, but advises interested parties to confirm them before relying on them in a purchase decision.
Copyright 2025 Georgia MLS. All rights reserved.
Listing information last updated on December 19th, 2025 at 6:45am CST.















