Hi There! Is this Your First Time?
Did you know if you Register you have access to free search tools including the ability to save listings and property searches? Did you know that you can bypass the search altogether and have listings sent directly to your email address? Check out our how-to page for more info.
- Price$565,000
- Beds4
- Baths3
- Acres0.24
- Built2013
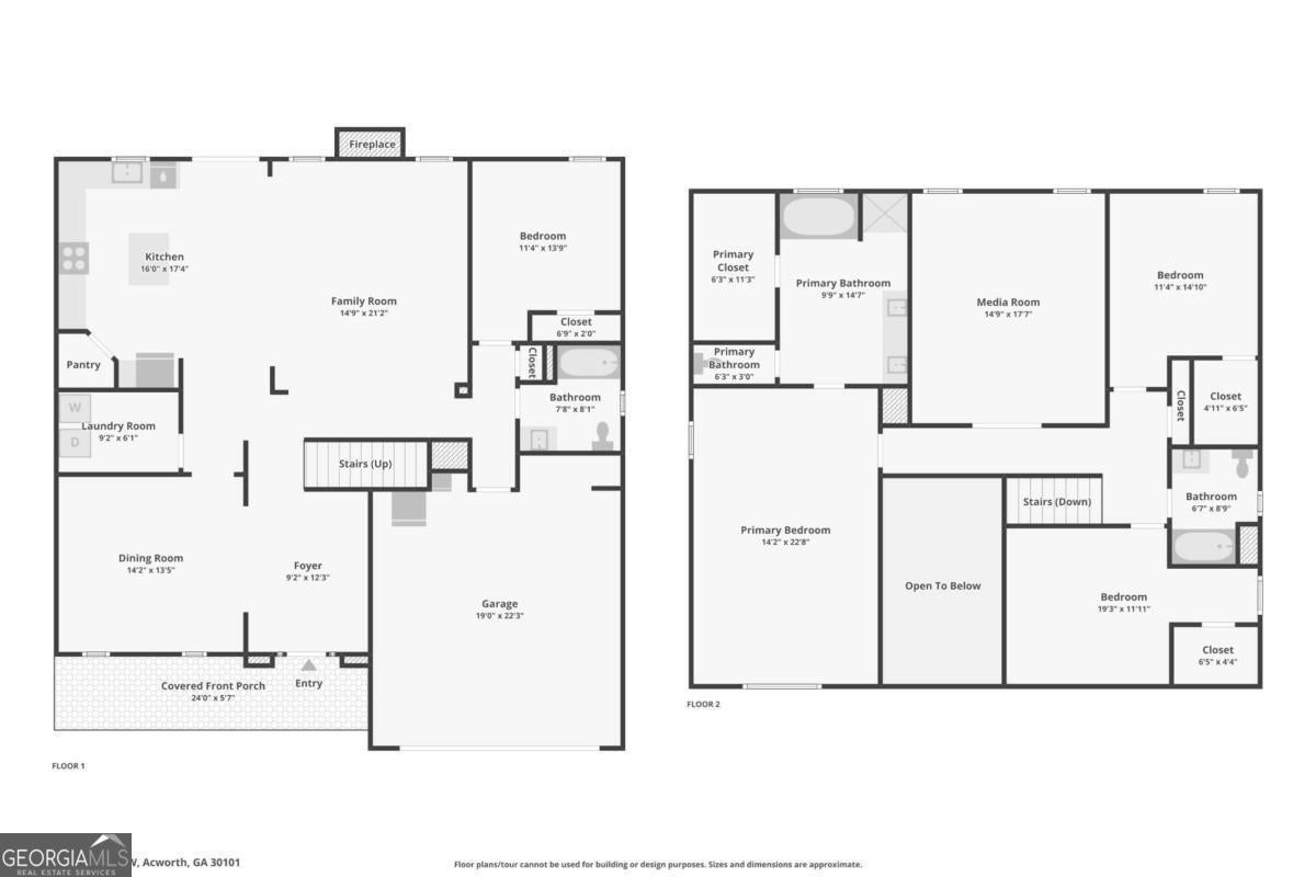
5275 Middleton Place Nw, Acworth
This well-appointed two-level residence offers four bedrooms and three full baths in a thoughtfully designed layout that balances comfort and functionality and is located in the popular Harrison HS district. The island kitchen features granite countertops, a spacious pantry, and clear sightlines into the family room, which is anchored by a welcoming fireplace. A dramatic two-story foyer and recessed lighting enhance the home's open, airy feel, while coffered and tray ceilings add a touch of architectural sophistication. There is a guest bedroom on the main level. Upstairs, there is a large media room provides flexible space for entertainment or relaxation. The primary suite serves as a true retreat, showcasing an expansive bath with a separate shower and soaking tub, along with a double vanity for added convenience. Additional highlights include a dedicated laundry room, a two-car garage, and exceptional curb appeal with a charming front porch. Outdoors, the over-sized fenced backyard offers an ideal setting for gatherings, play, or future enhancements. Nestled within an established neighborhood, this home delivers a compelling blend of style, space, and everyday livability.
Essential Information
- MLS® #10657263
- Price$565,000
- Bedrooms4
- Bathrooms3.00
- Full Baths3
- Acres0.24
- Year Built2013
- TypeResidential
- Sub-TypeSingle Family Residence
- StyleTraditional
- StatusActive
Amenities
- UtilitiesCable Available, Electricity Available, Sewer Available, Water Available
- Parking Spaces4
- ParkingAttached, Garage
Exterior
- Lot DescriptionLevel
- WindowsWindow Treatments
- RoofComposition
- ConstructionBrick, Vinyl Siding
- FoundationBlock
Additional Information
- Days on Market14
Community Information
- Address5275 Middleton Place Nw
- SubdivisionHickory Plantation
- CityAcworth
- CountyCobb
- StateGA
- Zip Code30101
Interior
- Interior FeaturesDouble Vanity, High Ceilings, Tray Ceiling(s), Walk-In Closet(s)
- AppliancesDishwasher, Microwave
- HeatingCentral, Natural Gas
- CoolingCentral Air, Electric
- FireplaceYes
- # of Fireplaces1
- FireplacesFamily Room
- StoriesTwo
School Information
- ElementaryFrey
- MiddleDurham
- HighHarrison
Listing Details
- Listing Provided Courtesy Of Keller Williams Realty
Price Change History for 5275 Middleton Place Nw, Acworth, GA (MLS® #10657263)
| Date | Details | Price | Change |
|---|---|---|---|
| Active (from New) | – | – |
The data relating to real estate for sale on this web site comes in part from the Broker Reciprocity Program of Georgia MLS. Real estate listings held by brokerage firms other than Go Realty Of Georgia & Alabam are marked with the Broker Reciprocity logo and detailed information about them includes the name of the listing brokers.
The information being provided is for consumers' personal, non-commercial use and may not be used for any purpose other than to identify prospective properties consumers may be interested in purchasing. Information Deemed Reliable But Not Guaranteed.
The broker providing this data believes it to be correct, but advises interested parties to confirm them before relying on them in a purchase decision.
Copyright 2025 Georgia MLS. All rights reserved.
Listing information last updated on December 29th, 2025 at 4:16pm CST.
























































































