Hi There! Is this Your First Time?
Did you know if you Register you have access to free search tools including the ability to save listings and property searches? Did you know that you can bypass the search altogether and have listings sent directly to your email address? Check out our how-to page for more info.
- Price$975,000
- Beds4
- Baths4
- SQ. Feet3,322
- Acres0.69
- Built2025
5249 Moon Road, Powder Springs
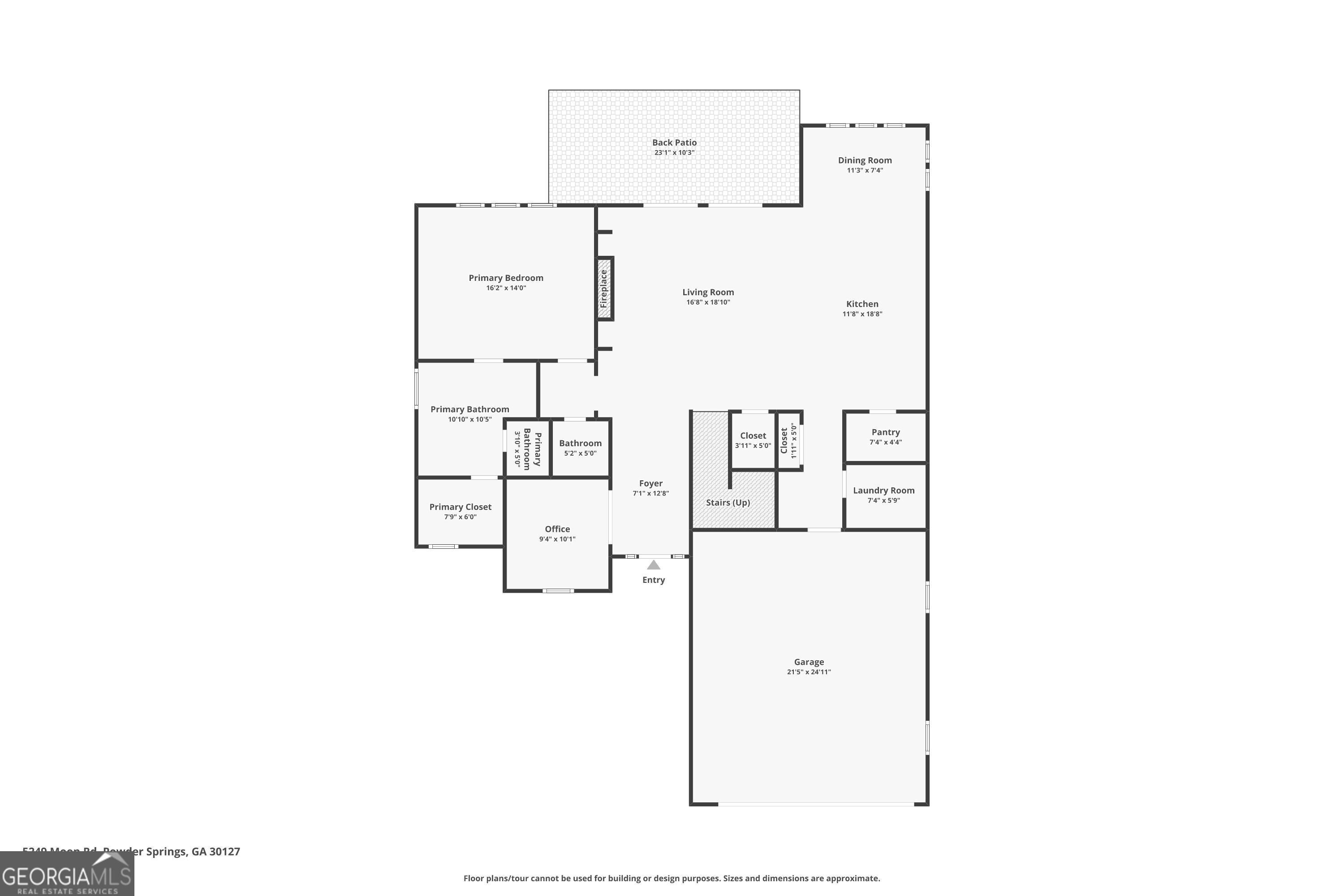
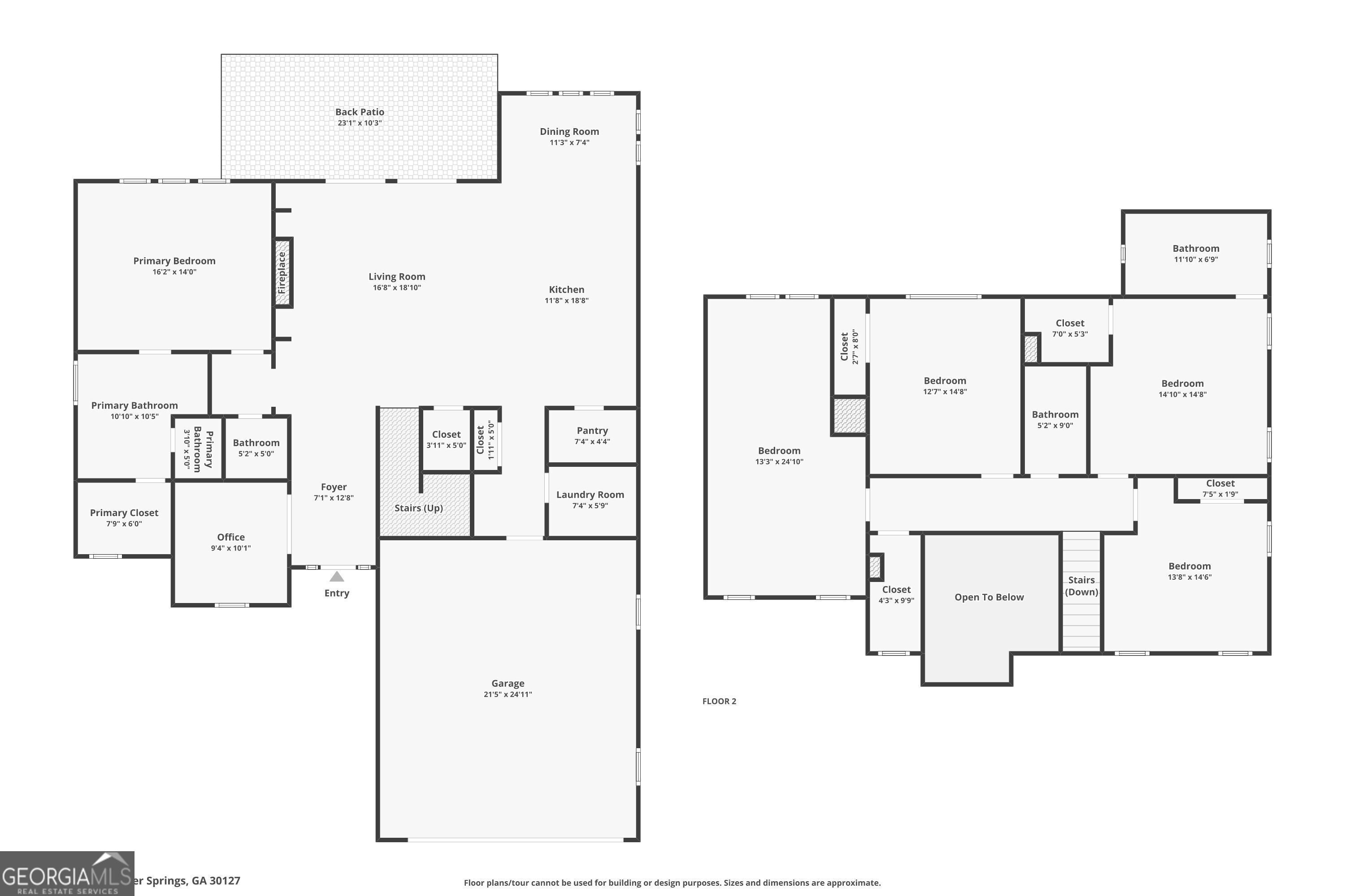
Come See This Luxurious High-End BRAND-NEW CONSTRUCTION with its Sleek European Modern Contemporary Design. It features the highly sought after primary bedroom en-suite on the main with soaring ceilings and that all important free-flowing open concept living. Step Into this dream home with ease with its towering 2-story but single-step entry way. It also offers hard to find DUAL PRIMARY EN-SUITES, making it a great choice for a roommate plan or multi-generational living. The gourmet kitchen boasts stylish two-toned cabinets, elegant custom quartz countertops, large island breakfast bar with views into the family room perfect for busy mornings, gorgeous glass backsplash, and high-end stainless-steel appliances & the custom walk-in pantry completes the package! The spacious family room offers gorgeous floor-to-ceiling granite fireplace surrounded by custom, built-in cabinets & decorative shelving. Plus, it opens up to the covered back patio which will make a great outdoor entertainment space. Also, on the main you have an office, laundry, and mud rooms right off the garage to help keep everyone organized coming & going - So helpful in modern living. Upstairs you will find a SECOND MASTER EN-SUITE as well as 2 more spacious bedrooms with ample closets. There is also a large bonus room or second office space. You will also have plenty of parking spaces, in the 2-car garage with its custom-painted floors, EV Hookup in the garage, and large parking pad. There is also ample storage in the form of the well insulated attic with disappearing drop down stairs as well as a storage room upstairs. Its lovely exterior is the board and batten HardiPlank type which is stylish but durable & built-to-last. The lot features fire-pit and is situated on a partially fenced level corner lot in a quiet but convenient area close to shopping, restaurants & Cobb County Schools. Builder offering buyer a 2/1 buy down incentive which shaves 2% on the interest rate the first year and 1% off the second year when using builders lender Michael Anthony with Mutual Mortgage. DO NOT MISS THIS OPPORTUNITY FOR NEW CONSTRUCTION WITH NO HOA LIMITATIONS - TOUR TODAY BEFORE IT GETS AWAY!
Essential Information
- MLS® #10657660
- Price$975,000
- Bedrooms4
- Bathrooms4.00
- Full Baths3
- Half Baths1
- Square Footage3,322
- Acres0.69
- Year Built2025
- TypeResidential
- Sub-TypeSingle Family Residence
- StyleContemporary, European, Other
- StatusActive
Amenities
- UtilitiesCable Available, Electricity Available, Natural Gas Available, Sewer Available, Underground Utilities, Water Available
- Parking Spaces2
- ParkingGarage
- ViewSeasonal View
Exterior
- Lot DescriptionCorner Lot, Other
- WindowsDouble Pane Windows
- RoofOther
- ConstructionConcrete, Other
Additional Information
- Days on Market92
Community Information
- Address5249 Moon Road
- SubdivisionNone
- CityPowder Springs
- CountyCobb
- StateGA
- Zip Code30127
Interior
- Interior FeaturesDouble Vanity, In-Law Floorplan, Master On Main Level, Other, Pulldown Attic Stairs, Roommate Plan, Walk-In Closet(s)
- AppliancesDishwasher, Disposal, Other, Refrigerator
- HeatingCentral
- CoolingCeiling Fan(s), Central Air
- FireplaceYes
- # of Fireplaces1
- FireplacesOther
- StoriesTwo
School Information
- ElementaryVarner
- MiddleTapp
- HighMceachern
Listing Details
- Listing Provided Courtesy Of Atlanta Communities
Price Change History for 5249 Moon Road, Powder Springs, GA (MLS® #10657660)
| Date | Details | Price | Change |
|---|---|---|---|
| Active | – | – | |
| Price Change | – | – | |
| Price Reduced (from $980,000) | $975,000 | $5,000 (0.51%) | |
| Active (from New) | – | – |
The data relating to real estate for sale on this web site comes in part from the Broker Reciprocity Program of Georgia MLS. Real estate listings held by brokerage firms other than Go Realty Of Georgia & Alabam are marked with the Broker Reciprocity logo and detailed information about them includes the name of the listing brokers.
The information being provided is for consumers' personal, non-commercial use and may not be used for any purpose other than to identify prospective properties consumers may be interested in purchasing. Information Deemed Reliable But Not Guaranteed.
The broker providing this data believes it to be correct, but advises interested parties to confirm them before relying on them in a purchase decision.
Copyright 2026 Georgia MLS. All rights reserved.
Listing information last updated on March 26th, 2026 at 7:46am CDT.











































