Hi There! Is this Your First Time?
Did you know if you Register you have access to free search tools including the ability to save listings and property searches? Did you know that you can bypass the search altogether and have listings sent directly to your email address? Check out our how-to page for more info.
- Price$2,900
- Acres3.00
- Built1977
3009 Bankers Industrial Drive Suite A, Atlanta
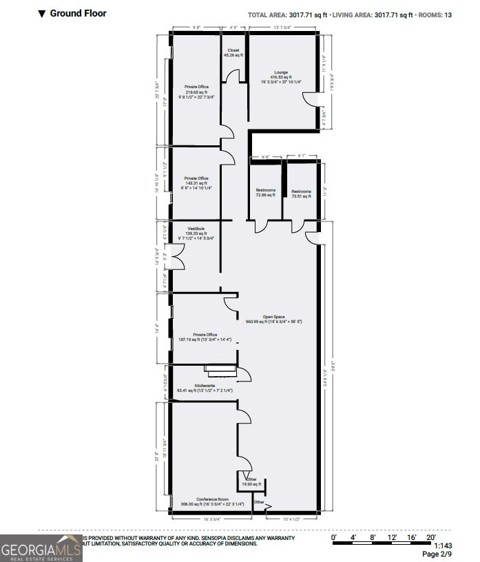
Approximately 3,018 square feet of commercial space is available for lease at 3009 Bankers Industrial Drive, Suite A, located in the established Bankers Industrial corridor of Atlanta with convenient access to I-85, I-285, and the Doraville/Chamblee area. This single-level suite offers a functional mix of large open workspace, multiple private offices, a conference room, kitchenette, two restrooms, and a welcoming front vestibule, making it well-suited for a variety of professional and light commercial users. Potential uses include office headquarters, showroom, creative studio, training or education center, medical or wellness office (non-surgical), light distribution, service-based businesses, or flex office operations. The lease is offered as a 36-month gross lease, providing predictable occupancy costs, and the included floor plan and photos illustrate a layout that can accommodate both collaborative and private work environments.
Essential Information
- MLS® #10661834
- Price$2,900
- Bathrooms0.00
- Acres3.00
- Year Built1977
- TypeCommercial Lease
- StatusActive
Amenities
- UtilitiesCable Available, Electricity Available, Natural Gas Available, Phone Available, Sewer Available, Underground Utilities, Water Available
- ParkingParking Lot
Exterior
- Lot DescriptionLevel, Business Park, Industrial Park, Near Public Transit, Semi Turning Available
- ConstructionBrick
Listing Details
- Listing Provided Courtesy Of Premier Atlanta Real Estate
Community Information
- Address3009 Bankers Industrial Drive Suite A
- SubdivisionBankers Industrial Park
- CityAtlanta
- CountyGwinnett
- StateGA
- Zip Code30360
Interior
- HeatingCentral
- CoolingCentral Air
Additional Information
- Days on Market26
- ZoningX
Price Change History for 3009 Bankers Industrial Drive Suite A, Atlanta, GA (MLS® #10661834)
| Date | Details | Price | Change |
|---|---|---|---|
| Active (from New) | – | – |
The data relating to real estate for sale on this web site comes in part from the Broker Reciprocity Program of Georgia MLS. Real estate listings held by brokerage firms other than Go Realty Of Georgia & Alabam are marked with the Broker Reciprocity logo and detailed information about them includes the name of the listing brokers.
The information being provided is for consumers' personal, non-commercial use and may not be used for any purpose other than to identify prospective properties consumers may be interested in purchasing. Information Deemed Reliable But Not Guaranteed.
The broker providing this data believes it to be correct, but advises interested parties to confirm them before relying on them in a purchase decision.
Copyright 2026 Georgia MLS. All rights reserved.
Listing information last updated on February 12th, 2026 at 7:46pm CST.
































