Hi There! Is this Your First Time?
Did you know if you Register you have access to free search tools including the ability to save listings and property searches? Did you know that you can bypass the search altogether and have listings sent directly to your email address? Check out our how-to page for more info.
- Price$375,000
- Acres25.91
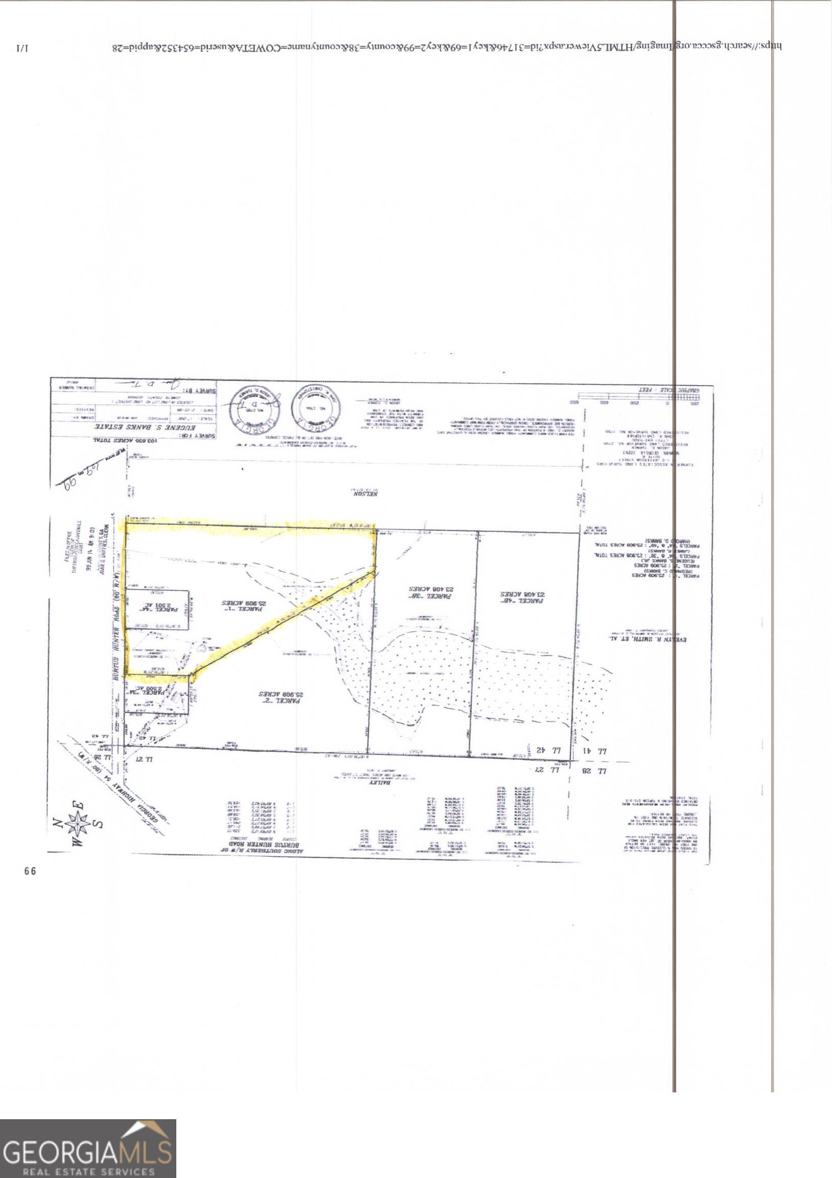
105 Bertus Hunter Road, senoia
This listing also includes ID# 1261042007 which is a 2.5 acre tract that is included in the sales price for a total of 28.41 acres. Long road frontage Close to Hwy 54. You will see mailbox 105 by the gate which is in the middle of the property. Some wetlands to the left side. Beautiful build in site! Abundance of wildlife!
Essential Information
- MLS® #10661948
- Price$375,000
- Bathrooms0.00
- Acres25.91
- TypeLand
- Sub-TypeAgriculture
- StatusNew
Amenities
- UtilitiesCable Available, Electricity Available, Water Available
School Information
- ElementaryPoplar Road
- MiddleEast Coweta
- HighEast Coweta
Community Information
- Address105 Bertus Hunter Road
- Subdivisionnone
- Citysenoia
- CountyCoweta
- StateGA
- Zip Code30276
Exterior
- Lot DescriptionNone
Listing Details
- Listing Provided Courtesy Of Madaris Realty
The data relating to real estate for sale on this web site comes in part from the Broker Reciprocity Program of Georgia MLS. Real estate listings held by brokerage firms other than Go Realty Of Georgia & Alabam are marked with the Broker Reciprocity logo and detailed information about them includes the name of the listing brokers.
The information being provided is for consumers' personal, non-commercial use and may not be used for any purpose other than to identify prospective properties consumers may be interested in purchasing. Information Deemed Reliable But Not Guaranteed.
The broker providing this data believes it to be correct, but advises interested parties to confirm them before relying on them in a purchase decision.
Copyright 2025 Georgia MLS. All rights reserved.
Listing information last updated on December 28th, 2025 at 11:15am CST.

