Hi There! Is this Your First Time?
Did you know if you Register you have access to free search tools including the ability to save listings and property searches? Did you know that you can bypass the search altogether and have listings sent directly to your email address? Check out our how-to page for more info.
- Price$200,000
- Beds5
- Baths2
- SQ. Feet2,292
- Acres2.02
- Built1899
8370 Chicago Avenue, Douglasville
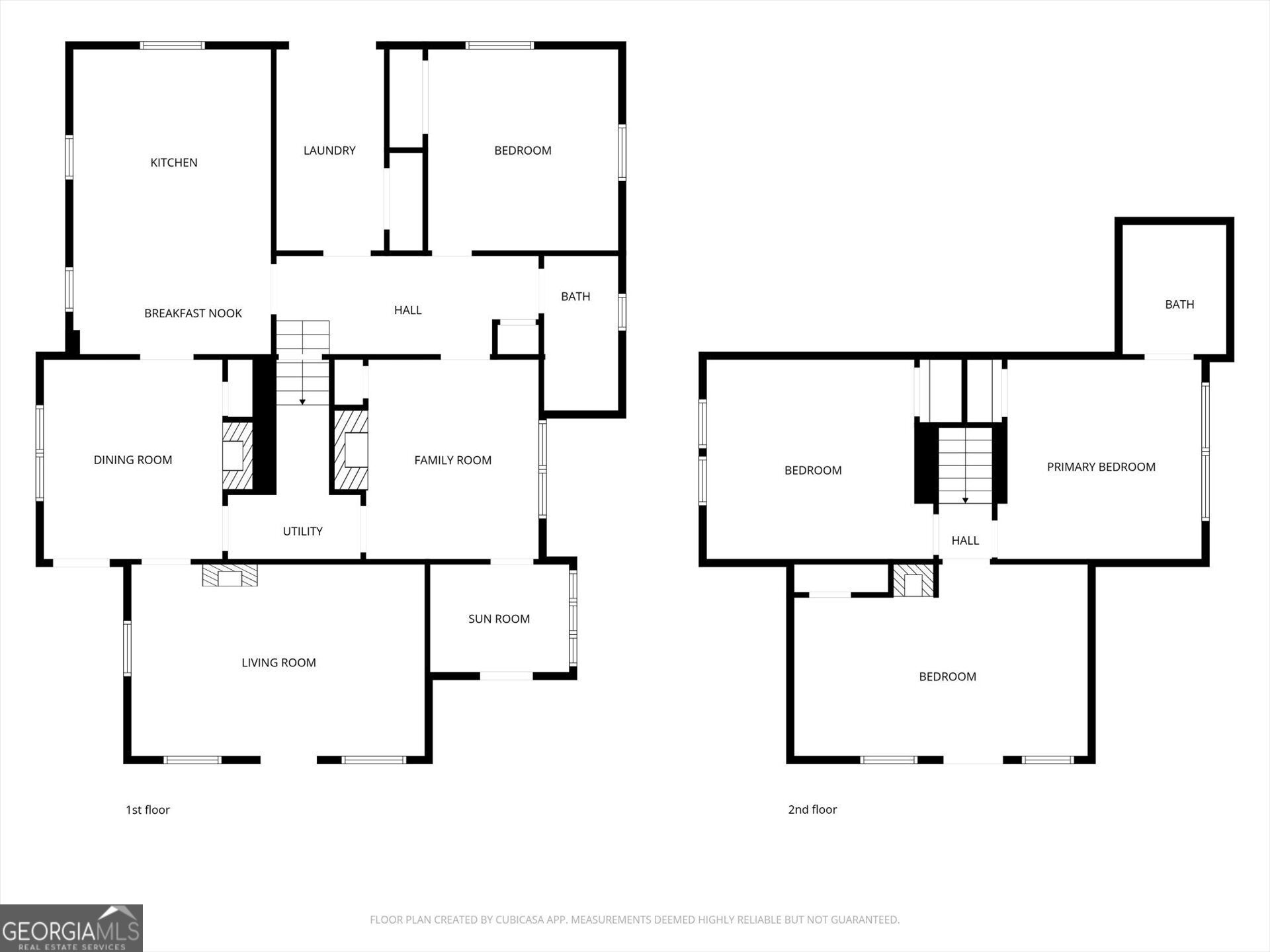
Investor Alert - Priced for Immediate Sale! CASH, RENOVATION OR HARD MONEY LOANS ONLY. Rare chance to acquire an 1899 Victorian on a massive 2.02-acre in-town lot in the City of Douglasville. This is a true fixer-upper with significant upside, ideal for cash buyers, renovators, or developers seeking a high-potential project in a prime location just minutes from shopping, dining, and downtown amenities. The home offers a large footprint with 5 bedrooms and 2 full baths, high ceilings, original trim, stained-glass windows, and four fireplaces-historic features that can drive strong resale value once restored. Existing structures include a deep front porch, rear carport, above-ground pool, and multiple storage buildings, offering added utility or redevelopment options. Estate sale-sold strictly as-is with no repairs. Cash or conventional as-is loans only. Opportunities like this with acreage, location, and character are increasingly rare. Bring your contractor and vision-this one is priced to move! **See private remarks**
Essential Information
- MLS® #10663223
- Price$200,000
- Bedrooms5
- Bathrooms2.00
- Full Baths2
- Square Footage2,292
- Acres2.02
- Year Built1899
- TypeResidential
- Sub-TypeSingle Family Residence
- StyleVictorian
- StatusActive
Amenities
- UtilitiesCable Available, Electricity Available, High Speed Internet, Natural Gas Available, Phone Available, Sewer Connected, Water Available
- ParkingCarport, Kitchen Level
- ViewCity
- Has PoolYes
- PoolAbove Ground
Exterior
- Exterior FeaturesBalcony
- Lot DescriptionCity Lot, Level
- RoofComposition
- ConstructionWood Siding
- FoundationBlock
Additional Information
- Days on Market86
Community Information
- Address8370 Chicago Avenue
- SubdivisionNone - 2 acres
- CityDouglasville
- CountyDouglas
- StateGA
- Zip Code30134
Interior
- Interior FeaturesHigh Ceilings
- AppliancesDishwasher, Electric Water Heater, Microwave, Oven/Range (Combo), Refrigerator, Stainless Steel Appliance(s)
- HeatingCentral
- CoolingCeiling Fan(s), Central Air
- FireplaceYes
- # of Fireplaces4
- StoriesTwo
School Information
- ElementaryNorth Douglas
- MiddleStewart
- HighDouglas County
Listing Details
- Listing Provided Courtesy Of Sky High Realty
Price Change History for 8370 Chicago Avenue, Douglasville, GA (MLS® #10663223)
| Date | Details | Price | Change |
|---|---|---|---|
| Active | – | – | |
| Price Change | – | – | |
| Price Reduced | $200,000 | $15,000 (6.98%) | |
| Back On Market | – | – | |
| Active | – | – | |
| Show More (5) | |||
| Back On Market | – | – | |
| Active | – | – | |
| Price Change | – | – | |
| Price Reduced (from $245,000) | $215,000 | $30,000 (12.24%) | |
| Active (from New) | – | – | |
The data relating to real estate for sale on this web site comes in part from the Broker Reciprocity Program of Georgia MLS. Real estate listings held by brokerage firms other than Go Realty Of Georgia & Alabam are marked with the Broker Reciprocity logo and detailed information about them includes the name of the listing brokers.
The information being provided is for consumers' personal, non-commercial use and may not be used for any purpose other than to identify prospective properties consumers may be interested in purchasing. Information Deemed Reliable But Not Guaranteed.
The broker providing this data believes it to be correct, but advises interested parties to confirm them before relying on them in a purchase decision.
Copyright 2026 Georgia MLS. All rights reserved.
Listing information last updated on April 6th, 2026 at 7:16pm CDT.





















































