Hi There! Is this Your First Time?
Did you know if you Register you have access to free search tools including the ability to save listings and property searches? Did you know that you can bypass the search altogether and have listings sent directly to your email address? Check out our how-to page for more info.
- Price$470,000
- Beds5
- Baths3
- SQ. Feet2,907
- Acres0.22
- Built1990
2470 Jakin Way, Suwanee
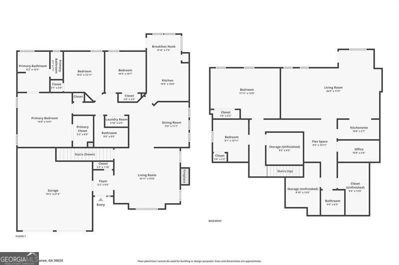
Motivated seller, currently the lowest priced basement home in the neighborhood based on comps from the past year, this home offers instant equity. Welcome to this beautiful ranch home in Suwanee. Nestled on a spacious lot in the highly regarded Collins Hill School District, this residence offers comfort, style, and room to grow. The main level features an open and inviting layout with hardwood floors, natural light, and a modern kitchen with ample cabinetry. The living and dining areas flow seamlessly together, creating the perfect space for everyday living and entertaining. The home offers 5 bedrooms and 3 full bathrooms, ideal for families or multi-generational living. The primary suite is generously sized and includes a private bath with dual vanities, a frameless glass shower, and a luxurious soaking tub, a perfect retreat at the end of the day. Additional bedrooms are well-proportioned and share a full bath, providing flexibility and comfort for everyone. The lower level is a true bonus, featuring 2 additional bedrooms with closets, a full bathroom, a large living area, a kitchenette, an office space, and multiple rooms for storage. This level provides endless possibilities for guests, in-laws, or a private home office setup. Outside, enjoy a fenced backyard ideal for outdoor gatherings, play, or quiet evenings. The home is located in a desirable swim and tennis community that also offers a playground and recreational amenities. With easy access to I-85, shopping, dining, and parks, this Suwanee gem combines convenience and tranquility in one exceptional location.
Essential Information
- MLS® #10663521
- Price$470,000
- Bedrooms5
- Bathrooms3.00
- Full Baths3
- Square Footage2,907
- Acres0.22
- Year Built1990
- TypeResidential
- Sub-TypeSingle Family Residence
- StyleRanch
- StatusNew
Amenities
- UtilitiesCable Available, Electricity Available, High Speed Internet, Natural Gas Available, Sewer Connected, Phone Available, Underground Utilities, Water Available
- Parking Spaces2
- ParkingGarage Door Opener, Garage
Exterior
- Lot DescriptionLevel
- RoofComposition
- ConstructionStucco, Other
Additional Information
- Days on Market4
Community Information
- Address2470 Jakin Way
- SubdivisionBerkshire
- CitySuwanee
- CountyGwinnett
- StateGA
- Zip Code30024
Interior
- Interior FeaturesHigh Ceilings, Double Vanity, Soaking Tub, Master On Main Level, Tray Ceiling(s), Walk-In Closet(s)
- AppliancesDishwasher, Disposal, Gas Water Heater, Microwave
- HeatingNatural Gas
- CoolingCeiling Fan(s), Central Air
- FireplaceYes
- # of Fireplaces1
- StoriesOne
School Information
- ElementaryWalnut Grove
- MiddleCreekland
- HighCollins Hill
Listing Details
- Listing Provided Courtesy Of Keller Williams Realty Atl. Partners
The data relating to real estate for sale on this web site comes in part from the Broker Reciprocity Program of Georgia MLS. Real estate listings held by brokerage firms other than Go Realty Of Georgia & Alabam are marked with the Broker Reciprocity logo and detailed information about them includes the name of the listing brokers.
The information being provided is for consumers' personal, non-commercial use and may not be used for any purpose other than to identify prospective properties consumers may be interested in purchasing. Information Deemed Reliable But Not Guaranteed.
The broker providing this data believes it to be correct, but advises interested parties to confirm them before relying on them in a purchase decision.
Copyright 2026 Georgia MLS. All rights reserved.
Listing information last updated on January 11th, 2026 at 9:00pm CST.































































