Hi There! Is this Your First Time?
Did you know if you Register you have access to free search tools including the ability to save listings and property searches? Did you know that you can bypass the search altogether and have listings sent directly to your email address? Check out our how-to page for more info.
- Price$324,900
- Acres0.06
262 Estoria Street, Atlanta
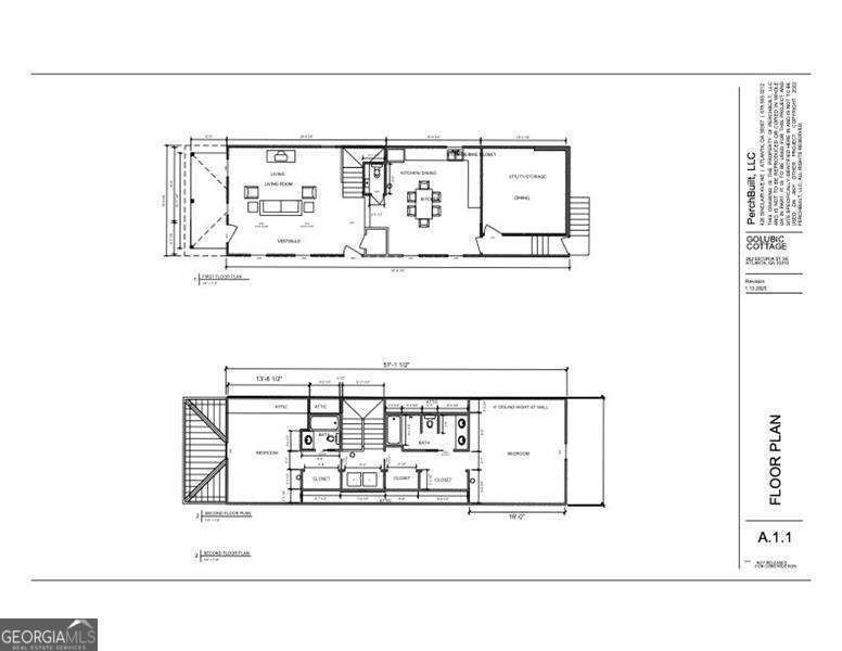
RARE CABBAGETOWN VACANT LOT - Thanks for your interest in this developed ready-to-build lot in the heart of Cabbagetown on Estoria Street. Set atop a hill overlooking the city with rear alley access, the lot is cleared, has new brick sidewalks and granite curbs, a new sewer tap, a brand new retaining wall and architectural plans for a 1960sf 2/2.5 home that is fully approved with the Urban Design Commisison and the Cabbagetown Historic Association. All a new owner needs to do is submit construction plans for final building permit at the City of Atlanta which is a straight-forward and simple process that takes 4-6 weeks. The property has approximately $50,000 of cash invested in the required sidewalks, granite curbs, sewer taps, retaining walls, surveys, architectural plans, and permitting costs. Add to that the year+ of hard work to get to the point where the homes is through the hard part of the permitting process. The value of the home, once built, will be ~1M so this is a low risk and high reward opportunity to build a dream home or to have a profitable investment project in one of the best and most central historic neighborhoods in the city.
Essential Information
- MLS® #10671641
- Price$324,900
- Bathrooms0.00
- Acres0.06
- TypeLand
- Sub-TypeResidential Lot
- StatusActive
Amenities
- UtilitiesNone
- ViewCity
School Information
- ElementaryParkside
- MiddleKing
- HighMH Jackson Jr
Listing Details
- Listing Provided Courtesy Of Re/max Metro Atlanta Cityside
Community Information
- Address262 Estoria Street
- SubdivisionCabbagetown
- CityAtlanta
- CountyFulton
- StateGA
- Zip Code30316
Exterior
- Lot DescriptionOther
Additional Information
- Days on Market15
Price Change History for 262 Estoria Street, Atlanta, GA (MLS® #10671641)
| Date | Details | Price | Change |
|---|---|---|---|
| Active (from New) | – | – |
The data relating to real estate for sale on this web site comes in part from the Broker Reciprocity Program of Georgia MLS. Real estate listings held by brokerage firms other than Go Realty Of Georgia & Alabam are marked with the Broker Reciprocity logo and detailed information about them includes the name of the listing brokers.
The information being provided is for consumers' personal, non-commercial use and may not be used for any purpose other than to identify prospective properties consumers may be interested in purchasing. Information Deemed Reliable But Not Guaranteed.
The broker providing this data believes it to be correct, but advises interested parties to confirm them before relying on them in a purchase decision.
Copyright 2026 Georgia MLS. All rights reserved.
Listing information last updated on February 9th, 2026 at 3:15am CST.




