Hi There! Is this Your First Time?
Did you know if you Register you have access to free search tools including the ability to save listings and property searches? Did you know that you can bypass the search altogether and have listings sent directly to your email address? Check out our how-to page for more info.
- Price$1,200,000
- Acres5.00
- Built2025
610 Hogan Pond, Ball Ground
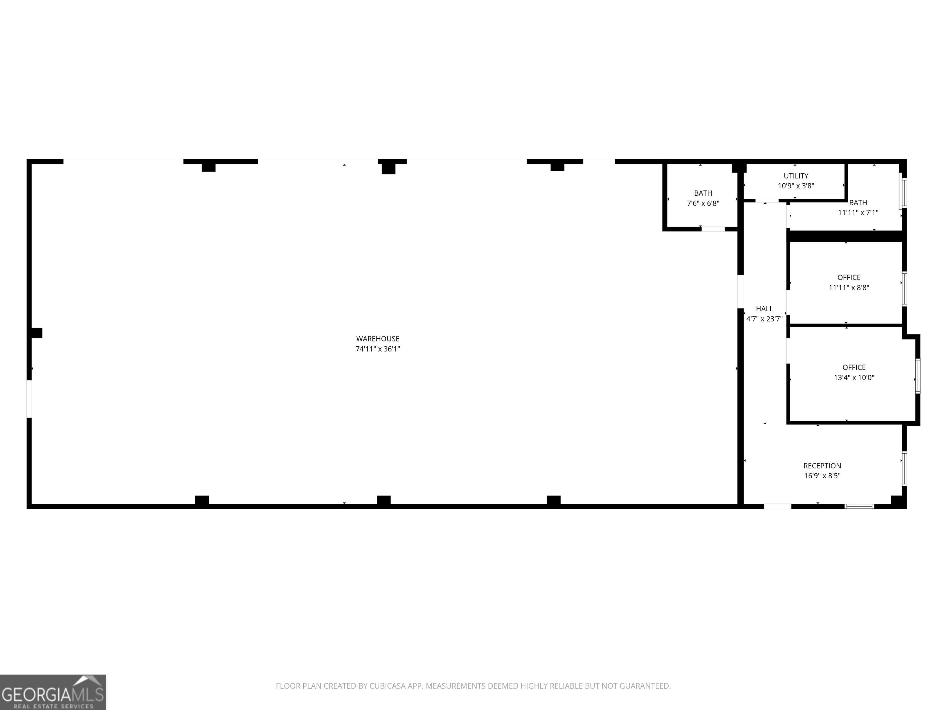
This new construction 4,000 SF light industrial building represents a rare opportunity in the highly sought-after Ball Ground submarket of Cherokee County, where available industrial inventory is extremely limited. The building is designed for efficient operations and flexibility, featuring three (3) drive-in doors, 18-20 foot clear ceiling heights, two private offices, three-phase power, and access to an 8-inch water main, supporting a wide range of light industrial and service uses. Recent site improvements include expanded parking and a dedicated turnaround area, enhancing truck circulation and functionality. The property is situated on a cul-de-sac, offering both privacy and ease of access. Additional upside exists through a potential assemblage opportunity, as both adjacent land tracts are also available. One neighboring parcel consists of approximately 6 acres already zoned LI (Light Industrial), while the other is a 60-acre tract offering long-term development and expansion potential. Together, these parcels create a compelling opportunity for users or investors seeking to control a larger industrial footprint in a high-growth corridor. The location provides excellent regional connectivity with quick access to Cumming and Forsyth County, Canton, Milton/Alpharetta, I-575, and the broader North Metro Atlanta market-making this a strategic industrial opportunity in one of Cherokee County's fastest-growing areas.
Essential Information
- MLS® #10673732
- Price$1,200,000
- Bathrooms0.00
- Acres5.00
- Year Built2025
- TypeCommercial Sale
- StatusActive
Amenities
- UtilitiesCable Available, Electricity Available, High Speed Internet
- ParkingParking Lot
Exterior
- Lot DescriptionSemi Turning Available
- ConstructionConcrete, Other
Listing Details
- Listing Provided Courtesy Of Mulberry Land Company
Community Information
- Address610 Hogan Pond
- SubdivisionNone
- CityBall Ground
- CountyCherokee
- StateGA
- Zip Code30107
Interior
- HeatingCentral
- CoolingCentral Air
Additional Information
- Days on Market41
- ZoningLight Industrial
Price Change History for 610 Hogan Pond, Ball Ground, GA (MLS® #10673732)
| Date | Details | Price | Change |
|---|---|---|---|
| Active | – | – | |
| Price Change | – | – | |
| Price Reduced (from $1,300,000) | $1,200,000 | $100,000 (7.69%) | |
| Active (from New) | – | – |
The data relating to real estate for sale on this web site comes in part from the Broker Reciprocity Program of Georgia MLS. Real estate listings held by brokerage firms other than Go Realty Of Georgia & Alabam are marked with the Broker Reciprocity logo and detailed information about them includes the name of the listing brokers.
The information being provided is for consumers' personal, non-commercial use and may not be used for any purpose other than to identify prospective properties consumers may be interested in purchasing. Information Deemed Reliable But Not Guaranteed.
The broker providing this data believes it to be correct, but advises interested parties to confirm them before relying on them in a purchase decision.
Copyright 2026 Georgia MLS. All rights reserved.
Listing information last updated on April 1st, 2026 at 11:45pm CDT.
































