Hi There! Is this Your First Time?
Did you know if you Register you have access to free search tools including the ability to save listings and property searches? Did you know that you can bypass the search altogether and have listings sent directly to your email address? Check out our how-to page for more info.
- Price$199,900
- Beds4
- Baths2
- SQ. Feet1,200
- Acres0.27
- Built1965
606 Nixon Avenue Sw, Rome
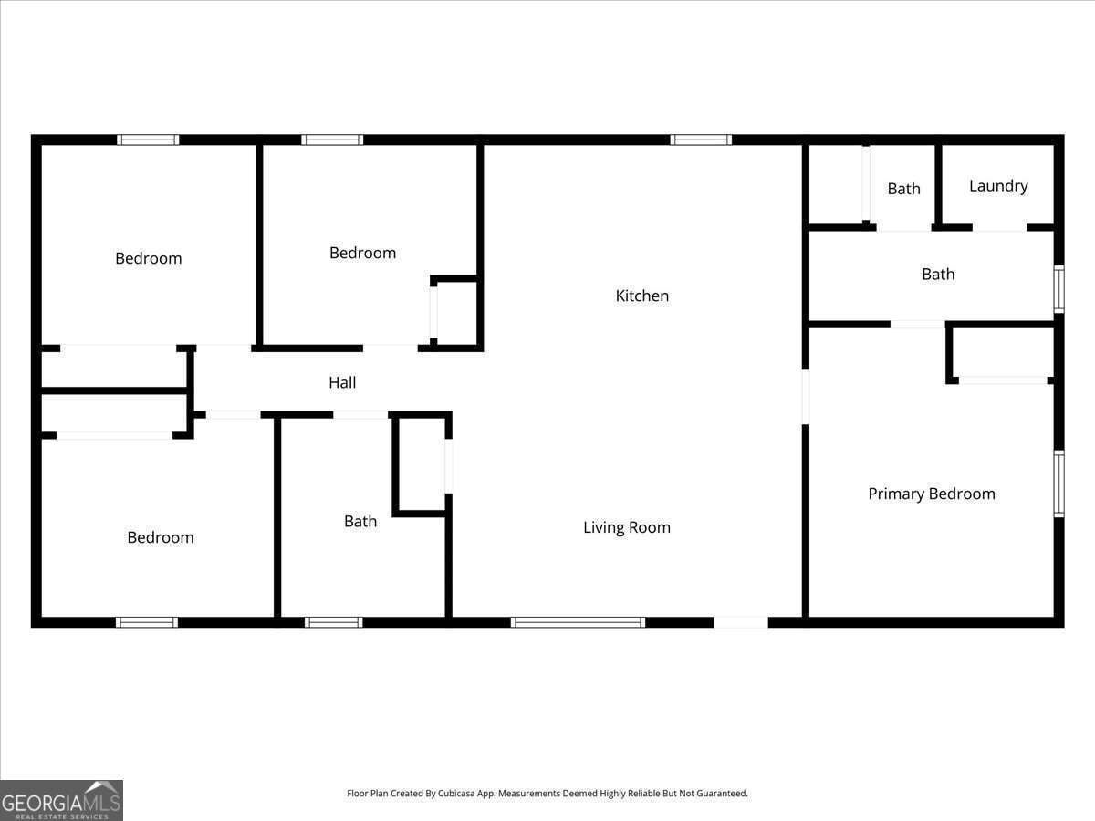
Fully rebuilt in 2020 down to the studs, this 4-bedroom, 2-bath ranch offers modern updates and comfortable one-level living. Renovations include new electrical wiring, roof, insulation, and updated finishes throughout. The bright, modern kitchen features quartz countertops, a butcher block island with seating, and ample workspace for everyday living and entertaining. The primary bathroom includes a conveniently located laundry room. On the opposite side of the home, three additional bedrooms and a spacious full bathroom provide flexible space for guests, a home office, or whatever suits your needs. Thoughtfully designed with functionality in mind, this home is ideally located approximately one mile from downtown Rome, providing easy access to shopping, dining, and local attractions.
Essential Information
- MLS® #10674258
- Price$199,900
- Bedrooms4
- Bathrooms2.00
- Full Baths2
- Square Footage1,200
- Acres0.27
- Year Built1965
- TypeResidential
- Sub-TypeSingle Family Residence
- StyleRanch
- StatusActive
Amenities
- UtilitiesCable Available, Electricity Available, Water Available
- Parking Spaces2
- ParkingCarport
Exterior
- Lot DescriptionPrivate
- WindowsDouble Pane Windows
- RoofComposition
- ConstructionVinyl Siding
- FoundationSlab
Additional Information
- Days on Market63
Community Information
- Address606 Nixon Avenue Sw
- Subdivisionnone
- CityRome
- CountyFloyd
- StateGA
- Zip Code30161
Interior
- Interior FeaturesOther, Roommate Plan
- AppliancesDishwasher, Refrigerator
- HeatingCentral, Electric, Heat Pump
- CoolingCeiling Fan(s), Central Air
- StoriesOne
School Information
- ElementaryAnna K Davie
- MiddleRome
- HighRome
Listing Details
- Listing Provided Courtesy Of 1 Look Real Estate
Price Change History for 606 Nixon Avenue Sw, Rome, GA (MLS® #10674258)
| Date | Details | Price | Change |
|---|---|---|---|
| Active | – | – | |
| Price Change | – | – | |
| Price Reduced | $199,900 | $15,000 (6.98%) | |
| Active | – | – | |
| Price Change | – | – | |
| Show More (3) | |||
| Price Reduced (from $225,000) | $214,900 | $10,100 (4.49%) | |
| Active | – | – | |
| New (from Coming Soon) | – | – | |
The data relating to real estate for sale on this web site comes in part from the Broker Reciprocity Program of Georgia MLS. Real estate listings held by brokerage firms other than Go Realty Of Georgia & Alabam are marked with the Broker Reciprocity logo and detailed information about them includes the name of the listing brokers.
The information being provided is for consumers' personal, non-commercial use and may not be used for any purpose other than to identify prospective properties consumers may be interested in purchasing. Information Deemed Reliable But Not Guaranteed.
The broker providing this data believes it to be correct, but advises interested parties to confirm them before relying on them in a purchase decision.
Copyright 2026 Georgia MLS. All rights reserved.
Listing information last updated on March 23rd, 2026 at 8:00pm CDT.





































