Hi There! Is this Your First Time?
Did you know if you Register you have access to free search tools including the ability to save listings and property searches? Did you know that you can bypass the search altogether and have listings sent directly to your email address? Check out our how-to page for more info.
- Price$315,000
- Beds3
- Baths2
- SQ. Feet1,306
- Acres4.46
- Built2026
230 Vaughn Circle, Griffin
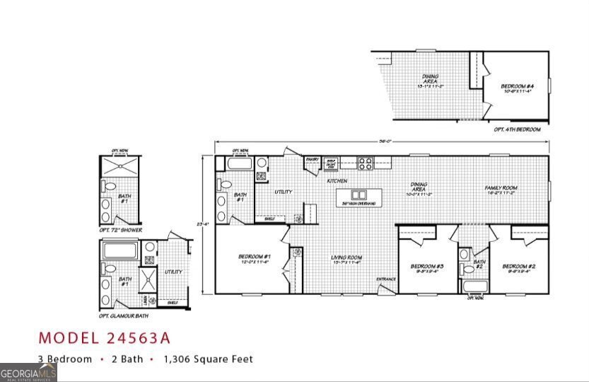
Enjoy this brand-new manufactured home! Price includes the land + complete setup for this home. 100% financing construction to perm is possible through USDA if you qualify. You can also choose your own features and model if this one doesn't suit your needs-final price may vary based on selections. About this home: Features to Love: Spacious and Bright Interior: * Open-concept design with ample space for entertaining and everyday living. * Large family and dining areas to host your New Year's gatherings in style. Dream Kitchen: * Modern kitchen with an oversized island, upgraded countertops, and sleek cabinetry. * Stainless steel appliances and plenty of storage for all your cooking needs. Private Primary Suite: * Enjoy your personal retreat with a spacious bedroom, walk-in closet, and an optional glamour bath upgrade. * Dual vanities and a large shower make mornings a breeze. Versatile Layout: * Two additional bedrooms perfect for family, guests, or a home office. * Optional fourth bedroom for even more space. Floor Plan Highlights: * Thoughtful design with an open living room, utility area, and pantry. * Smart features to maximize space and convenience. Exterior: * Stylish siding and modern design ensure this home stands out in any community.
Essential Information
- MLS® #10674925
- Price$315,000
- Bedrooms3
- Bathrooms2.00
- Full Baths2
- Square Footage1,306
- Acres4.46
- Year Built2026
- TypeResidential
- Sub-TypeSingle Family Residence
- StyleRanch
- StatusActive
Amenities
- UtilitiesCable Available, Electricity Available, High Speed Internet, Phone Available, Water Available
- ParkingNone
Exterior
- Lot DescriptionCul-De-Sac
- RoofComposition
- ConstructionVinyl Siding
Additional Information
- Days on Market71
Community Information
- Address230 Vaughn Circle
- SubdivisionBailey Woods
- CityGriffin
- CountySpalding
- StateGA
- Zip Code30223
Interior
- Interior FeaturesDouble Vanity, Separate Shower, Split Bedroom Plan, Walk-In Closet(s)
- AppliancesDishwasher, Microwave, Oven/Range (Combo), Refrigerator
- HeatingElectric
- CoolingElectric
- StoriesOne
School Information
- ElementaryJordan Hill Road
- MiddleKennedy Road
- HighSpalding
Listing Details
- Listing Provided Courtesy Of Compass
Price Change History for 230 Vaughn Circle, Griffin, GA (MLS® #10674925)
| Date | Details | Price | Change |
|---|---|---|---|
| Active | – | – | |
| Price Change | – | – | |
| Price Reduced (from $320,000) | $315,000 | $5,000 (1.56%) | |
| Active (from New) | – | – |
The data relating to real estate for sale on this web site comes in part from the Broker Reciprocity Program of Georgia MLS. Real estate listings held by brokerage firms other than Go Realty Of Georgia & Alabam are marked with the Broker Reciprocity logo and detailed information about them includes the name of the listing brokers.
The information being provided is for consumers' personal, non-commercial use and may not be used for any purpose other than to identify prospective properties consumers may be interested in purchasing. Information Deemed Reliable But Not Guaranteed.
The broker providing this data believes it to be correct, but advises interested parties to confirm them before relying on them in a purchase decision.
Copyright 2026 Georgia MLS. All rights reserved.
Listing information last updated on April 11th, 2026 at 7:45am CDT.







