Hi There! Is this Your First Time?
Did you know if you Register you have access to free search tools including the ability to save listings and property searches? Did you know that you can bypass the search altogether and have listings sent directly to your email address? Check out our how-to page for more info.
- Price$649,900
- Beds3
- Baths4
- SQ. Feet2,452
- Acres17.44
- Built2003
1015 Adams Road, West Point
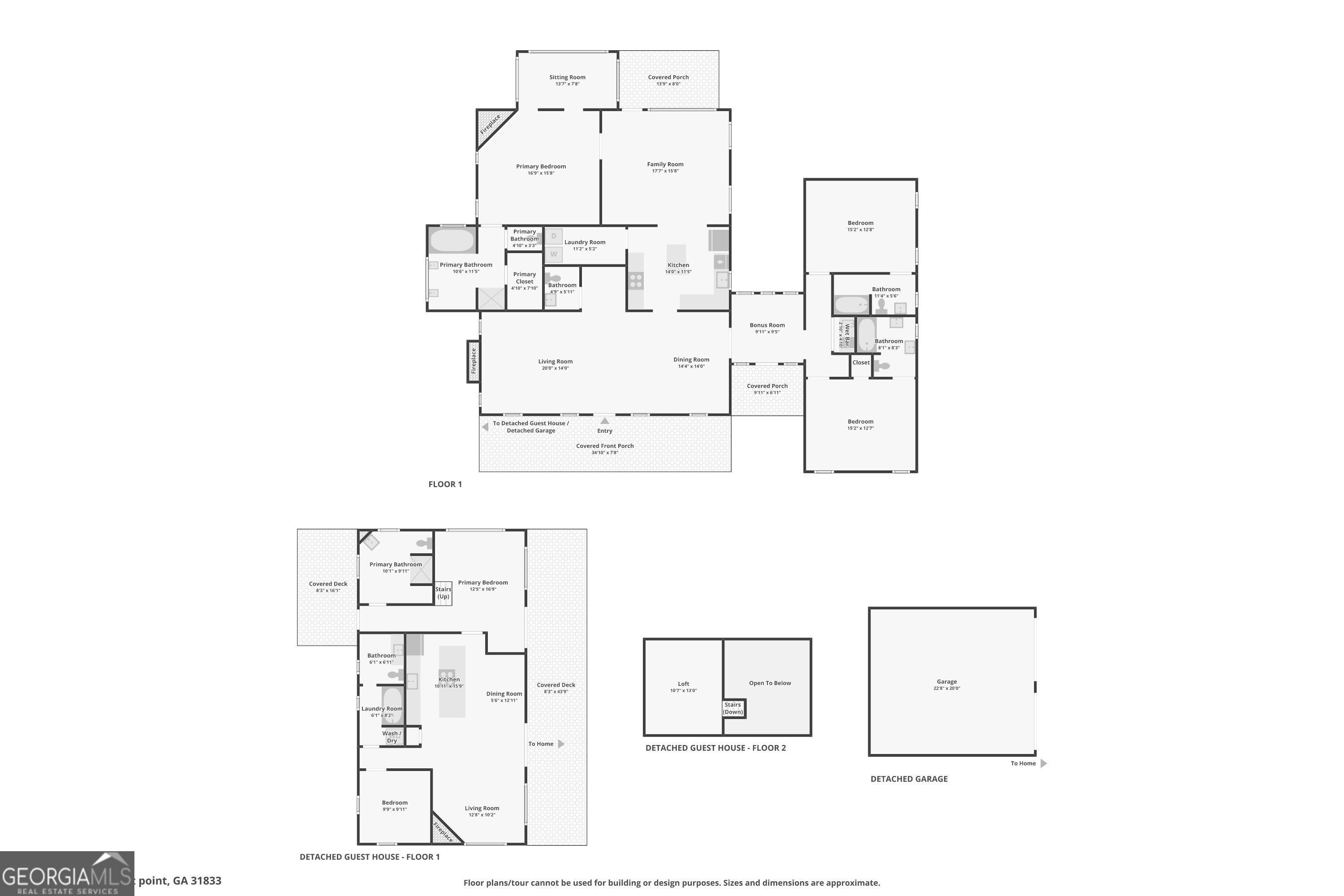
MAIN HOUSE + CABIN! PRIVATE RETREAT * MULTI-GENERATIONAL LIVING * PEACEFUL ESCAPE Peace and quiet await on this beautiful retreat-style property featuring two separate living structures situated on 17.44 acres backing up to Flat Shoal Creek. Pass through the coded gate and enter your own country paradise. Thoughtfully positioned to provide both seclusion and convenience, this property offers a rare opportunity for extended family living, hosting guests, and enjoying a tranquil lifestyle surrounded by nature. The MAIN HOUSE, offering 3 bedrooms and 3.5 bathrooms and spanning 2,452 square feet of living space, greets you with a winding drive, charming Southern craftsmanship, and a rocking chair front porch. Step through the front door and be welcomed by vaulted ceilings and natural light pouring through a custom pointed-arch window framed by exposed beams. Feel drawn to the warmth of the fireplace in the living room to your left or the spacious dining room to your right, with the music room and guest bedrooms beyond. At the heart of the home is the fully renovated kitchen, featuring granite countertops, generous cabinetry, a large island, and modern finishes, opening to the family room with views of the back porch and land beyond. The primary suite is a retreat of its own, complete with a gas fireplace and sunroom, adding warmth, light, and ambiance. Each bedroom offers a private ensuite bathroom, providing exceptional comfort and privacy. In 2025, a full roof replacement with 50-year warrantied shingles was completed on the main house, and carport. Just a short distance away, the CABIN, with a fenced front yard and large porch, is warm and inviting with a log-cabin-inspired aesthetic inside and out. This 2-bedroom, 2-bath structure offers approximately 1,081 square feet and is not included in the main home's square footage or bedroom/bathroom count. The open-concept living, kitchen, and dining area is anchored by a wood-burning fireplace, creating a cozy gathering space. The updated kitchen also features granite countertops, while wood flooring, exposed beams, lofts, and natural wood walls complete the authentic cabin atmosphere. The cabin also includes an adjacent two-car garage, ideal for vehicles, equipment, or additional storage. The land itself is a true highlight, featuring walking and side-by-side trails that wind across the acreage and down to the creek, mature hardwood trees, and rare Bloodroot Lilies scattered throughout the property, adding to the lands' natural beauty. A large storage shed provides additional space for tools, outdoor gear, and property equipment. With 17.44 acres, Flat Shoal Creek frontage, two distinct living structures, scenic trails, fire pit, renovated kitchens, ensuite bedrooms throughout, multiple fireplaces, ample parking, and storage options, this one-of-a-kind property offers privacy, flexibility, and timeless charm in a peaceful natural setting.
Essential Information
- MLS® #10678305
- Price$649,900
- Bedrooms3
- Bathrooms4.00
- Full Baths3
- Half Baths1
- Square Footage2,452
- Acres17.44
- Year Built2003
- TypeResidential
- Sub-TypeSingle Family Residence
- StyleCraftsman
- StatusUnder Contract
Amenities
- UtilitiesCable Available, Electricity Available, High Speed Internet, Propane, Underground Utilities
- ParkingCarport, Guest, Parking Pad, RV/Boat Parking, Side/Rear Entrance, Storage, Detached, Parking Shed
- ViewRiver
Exterior
- Exterior FeaturesWater Feature
- Lot DescriptionPrivate, Sloped
- WindowsDouble Pane Windows
- RoofComposition
- ConstructionConcrete, Log
Additional Information
- Days on Market4
Community Information
- Address1015 Adams Road
- SubdivisionRural
- CityWest Point
- CountyTroup
- StateGA
- Zip Code31833
Interior
- Interior FeaturesBeamed Ceilings, High Ceilings, Master On Main Level, Separate Shower, Soaking Tub, Split Bedroom Plan, Tile Bath, Vaulted Ceiling(s), Walk-In Closet(s)
- AppliancesDishwasher, Dryer, Electric Water Heater, Microwave, Oven/Range (Combo), Refrigerator, Stainless Steel Appliance(s), Washer, Water Softener
- HeatingCentral, Electric, Propane
- CoolingElectric, Ceiling Fan(s)
- FireplaceYes
- # of Fireplaces3
- FireplacesGas Log, Living Room, Master Bedroom
- StoriesOne
School Information
- ElementaryWest Point
- MiddleLong Cane
- HighTroup County
Listing Details
- Listing Provided Courtesy Of Cb Kennon, Parker, Duncan & Davis
Price Change History for 1015 Adams Road, West Point, GA (MLS® #10678305)
| Date | Details | Price | Change |
|---|---|---|---|
| Under Contract (from New) | – | – |
The data relating to real estate for sale on this web site comes in part from the Broker Reciprocity Program of Georgia MLS. Real estate listings held by brokerage firms other than Go Realty Of Georgia & Alabam are marked with the Broker Reciprocity logo and detailed information about them includes the name of the listing brokers.
The information being provided is for consumers' personal, non-commercial use and may not be used for any purpose other than to identify prospective properties consumers may be interested in purchasing. Information Deemed Reliable But Not Guaranteed.
The broker providing this data believes it to be correct, but advises interested parties to confirm them before relying on them in a purchase decision.
Copyright 2026 Georgia MLS. All rights reserved.
Listing information last updated on February 16th, 2026 at 1:02pm CST.











































































































