Hi There! Is this Your First Time?
Did you know if you Register you have access to free search tools including the ability to save listings and property searches? Did you know that you can bypass the search altogether and have listings sent directly to your email address? Check out our how-to page for more info.
- Price$490,000
- Beds2
- Baths2
- SQ. Feet1,152
- Acres0.02
- Built2021
1242 Cushenberry Lane 10, Atlanta
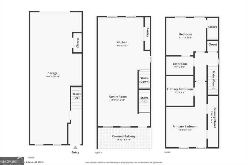
This end unit with its open floor plan, gourmet kitchen, light bright and airy atmosphere is close to Georgia Tech, shopping, and 78/74 interstates. Convenient to mail boxes, easy access for parking-tanbum parking, great location inside the community.
Essential Information
- MLS® #10679393
- Price$490,000
- Bedrooms2
- Bathrooms2.00
- Full Baths2
- Square Footage1,152
- Acres0.02
- Year Built2021
- TypeResidential
- Sub-TypeTownhouse
- StyleBrick Front, Traditional
- StatusActive
Amenities
- UtilitiesCable Available, Electricity Available, High Speed Internet, Phone Available, Sewer Connected, Underground Utilities, Water Available
- Parking Spaces2
- ParkingGarage, Garage Door Opener
- Is WaterfrontYes
Exterior
- Exterior FeaturesOther
- Lot DescriptionCity Lot, Level, Zero Lot Line
- WindowsDouble Pane Windows, Window Treatments
- RoofTar/Gravel
- ConstructionOther
- FoundationSlab
Additional Information
- Days on Market14
Community Information
- Address1242 Cushenberry Lane 10
- SubdivisionCrosby
- CityAtlanta
- CountyFulton
- StateGA
- Zip Code30318
Interior
- Interior FeaturesWalk-In Closet(s)
- AppliancesDishwasher, Disposal, Electric Water Heater, Microwave, Stainless Steel Appliance(s)
- HeatingCentral, Electric, Forced Air
- CoolingCeiling Fan(s), Central Air, Electric
- StoriesThree Or More
School Information
- ElementaryRiver Eves
- MiddleSutton
- HighNorth Atlanta
Listing Details
- Listing Provided Courtesy Of Century 21 Results
Price Change History for 1242 Cushenberry Lane 10, Atlanta, GA (MLS® #10679393)
| Date | Details | Price | Change |
|---|---|---|---|
| Active (from New) | – | – |
The data relating to real estate for sale on this web site comes in part from the Broker Reciprocity Program of Georgia MLS. Real estate listings held by brokerage firms other than Go Realty Of Georgia & Alabam are marked with the Broker Reciprocity logo and detailed information about them includes the name of the listing brokers.
The information being provided is for consumers' personal, non-commercial use and may not be used for any purpose other than to identify prospective properties consumers may be interested in purchasing. Information Deemed Reliable But Not Guaranteed.
The broker providing this data believes it to be correct, but advises interested parties to confirm them before relying on them in a purchase decision.
Copyright 2026 Georgia MLS. All rights reserved.
Listing information last updated on February 10th, 2026 at 12:46pm CST.
























