Hi There! Is this Your First Time?
Did you know if you Register you have access to free search tools including the ability to save listings and property searches? Did you know that you can bypass the search altogether and have listings sent directly to your email address? Check out our how-to page for more info.
- Price$520,000
- Beds4
- Baths3
- SQ. Feet2,361
- Acres0.38
- Built2014
417 Tom Avery Drive, Ball Ground
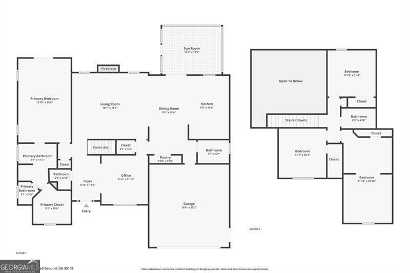
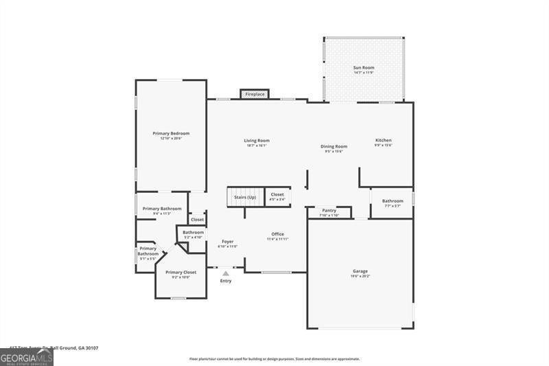
Impeccably maintained and beautifully designed, this Craftsman-style home offers a perfect blend of comfort and functionality. The main-level owner's suite features a tray ceiling, spa-like bath, and spacious walk-in closets. An expansive kitchen anchors the home with granite countertops, abundant cabinetry, a large center island, and a 5-burner gas range-ideal for everyday living and entertaining. Upstairs, a versatile bonus room provides flexible space for a media room, playroom, or home office. Seamless indoor-outdoor living extends to the covered patio and fenced backyard, where the custom-built outdoor kitchen with granite countertops sets the stage for gatherings. The fire pit creates a cozy spot to roast s'mores and enjoy crisp fall evenings. Fully fenced backyard. Located just minutes from the vibrant and growing downtown Ball Ground, this home combines timeless design with modern convenience. Truly move-in ready and made for both entertaining and everyday comfort.
Essential Information
- MLS® #10685037
- Price$520,000
- Bedrooms4
- Bathrooms3.00
- Full Baths2
- Half Baths1
- Square Footage2,361
- Acres0.38
- Year Built2014
- TypeResidential
- Sub-TypeSingle Family Residence
- StyleCraftsman, Traditional
- StatusNew
Amenities
- UtilitiesElectricity Available, Sewer Available, Water Available
- Parking Spaces2
- ParkingAttached, Garage, Garage Door Opener, Kitchen Level
Exterior
- Exterior FeaturesGas Grill
- Lot DescriptionLevel, Private
- WindowsDouble Pane Windows
- RoofComposition
- ConstructionConcrete, Stone
Additional Information
- Days on Market5
Community Information
- Address417 Tom Avery Drive
- SubdivisionMountain Brooke North
- CityBall Ground
- CountyCherokee
- StateGA
- Zip Code30107
Interior
- Interior FeaturesDouble Vanity, High Ceilings, Pulldown Attic Stairs, Tray Ceiling(s), Walk-In Closet(s)
- AppliancesDishwasher, Microwave
- HeatingCentral, Forced Air, Natural Gas
- CoolingCeiling Fan(s), Central Air
- FireplaceYes
- # of Fireplaces1
- FireplacesFactory Built, Family Room, Outside
- StoriesOne and One Half
School Information
- ElementaryBall Ground
- MiddleCreekland
- HighCreekview
Listing Details
- Listing Provided Courtesy Of Century 21 Results
The data relating to real estate for sale on this web site comes in part from the Broker Reciprocity Program of Georgia MLS. Real estate listings held by brokerage firms other than Go Realty Of Georgia & Alabam are marked with the Broker Reciprocity logo and detailed information about them includes the name of the listing brokers.
The information being provided is for consumers' personal, non-commercial use and may not be used for any purpose other than to identify prospective properties consumers may be interested in purchasing. Information Deemed Reliable But Not Guaranteed.
The broker providing this data believes it to be correct, but advises interested parties to confirm them before relying on them in a purchase decision.
Copyright 2026 Georgia MLS. All rights reserved.
Listing information last updated on February 14th, 2026 at 8:47am CST.




















































