Hi There! Is this Your First Time?
Did you know if you Register you have access to free search tools including the ability to save listings and property searches? Did you know that you can bypass the search altogether and have listings sent directly to your email address? Check out our how-to page for more info.
- Price$195,000
- Beds3
- Baths2
- SQ. Feet1,486
- Acres0.20
- Built1963
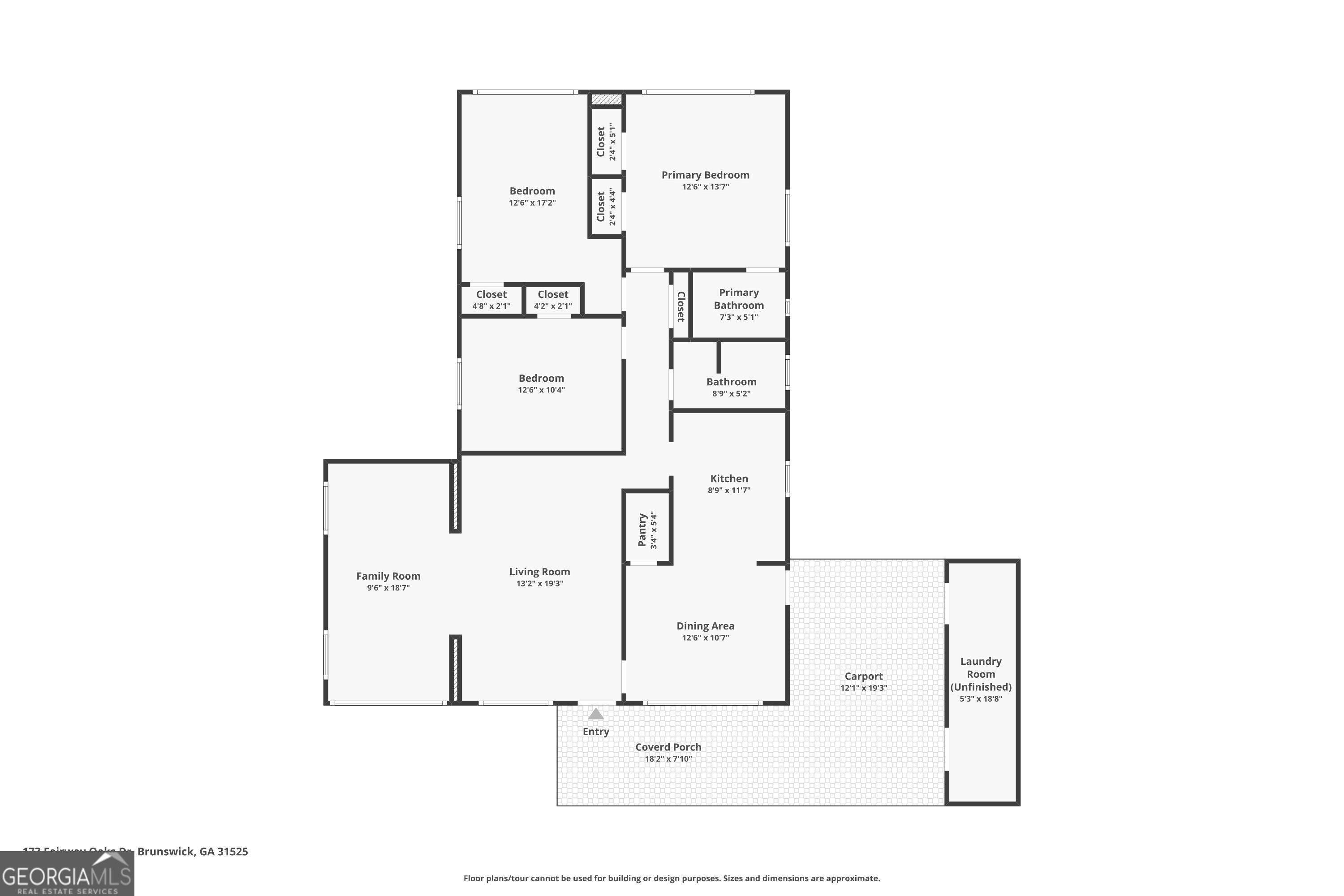
173 Fairway Oaks Drive, Brunswick
There's something special about a true mid-century modern home, and this one leans fully into its character. Interior brick accents, a statement fireplace, and a sunken den with large brick fireplace create a warm, grounded feel plus you'll see a spacious living room hub: comfortable, lived-in, and inviting without trying too hard. The layout works whether you're coming home after a long day at FLETC, hosting friends, or setting up a smart short-term rental. Natural light fills the home through well-placed windows, the dining area flows easily into the kitchen, and a front porch offers a quiet place to start or end the day. The kitchen is fully equipped with generous counter space and a window over the sink, making everyday routines feel easy. An attached carport and utility room add practical storage and flexibility without disrupting the flow of the home. Out back, the privacy of the corner lot really shines. There's a built-in brick grill and firepit for relaxed evenings outdoors, plus a producing mandarin tree that adds a little charm you won't find in newer builds. The primary bedroom includes its own bath and double closets, while the hall bath comfortably serves the two additional bedrooms. Located just minutes from FLETC, Glynn County Airport, and Brunswick Country Club-and about 20 minutes to St. Simons Island-this home makes sense for first-time buyers, FLETC employees, or investors looking for a strong short-term rental opportunity. If you're looking for a home with personality, location, and flexibility, schedule a showing and see how this one fits your plans.
Essential Information
- MLS® #10685880
- Price$195,000
- Bedrooms3
- Bathrooms2.00
- Full Baths2
- Square Footage1,486
- Acres0.20
- Year Built1963
- TypeResidential
- Sub-TypeSingle Family Residence
- StyleBungalow/Cottage
- StatusUnder Contract
Amenities
- UtilitiesCable Available, Electricity Available, High Speed Internet, Phone Available, Sewer Available, Sewer Connected, Underground Utilities, Water Available
- Parking Spaces2
- ParkingCarport, Parking Pad
Exterior
- Exterior FeaturesOther
- Lot DescriptionCorner Lot
- WindowsBay Window(s), Window Treatments
- RoofMetal
- ConstructionBrick, Wood Siding
- FoundationSlab
Additional Information
- Days on Market4
Community Information
- Address173 Fairway Oaks Drive
- SubdivisionGlynco Annex
- CityBrunswick
- CountyGlynn
- StateGA
- Zip Code31525
Interior
- Interior FeaturesMaster On Main Level, Tile Bath
- AppliancesDishwasher, Disposal, Electric Water Heater, Microwave, Oven/Range (Combo), Refrigerator
- HeatingCentral, Electric
- CoolingCentral Air, Electric
- FireplaceYes
- # of Fireplaces1
- FireplacesLiving Room, Masonry
- StoriesOne
School Information
- ElementaryAltama
- MiddleNeedwood
- HighBrunswick
Listing Details
- Listing Provided Courtesy Of Watson Realty Corp
Price Change History for 173 Fairway Oaks Drive, Brunswick, GA (MLS® #10685880)
| Date | Details | Price | Change |
|---|---|---|---|
| Under Contract (from New) | – | – |
The data relating to real estate for sale on this web site comes in part from the Broker Reciprocity Program of Georgia MLS. Real estate listings held by brokerage firms other than Go Realty Of Georgia & Alabam are marked with the Broker Reciprocity logo and detailed information about them includes the name of the listing brokers.
The information being provided is for consumers' personal, non-commercial use and may not be used for any purpose other than to identify prospective properties consumers may be interested in purchasing. Information Deemed Reliable But Not Guaranteed.
The broker providing this data believes it to be correct, but advises interested parties to confirm them before relying on them in a purchase decision.
Copyright 2026 Georgia MLS. All rights reserved.
Listing information last updated on February 19th, 2026 at 7:45pm CST.














































