Hi There! Is this Your First Time?
Did you know if you Register you have access to free search tools including the ability to save listings and property searches? Did you know that you can bypass the search altogether and have listings sent directly to your email address? Check out our how-to page for more info.
- Price$2,700
- Acres0.11
- Built1925
4 Zebulon Street, Barnesville
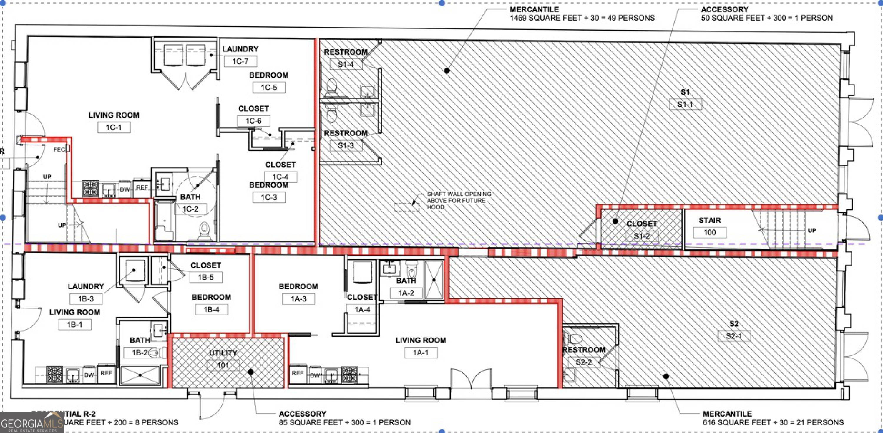
***Pre-Leasing***Build-to-Suit Downtown Barnesville Commercial Space Gross Lease (No CAM). Opportunity to establish your business in the heart of historic downtown Barnesville. The Murphey Building offers approximately 2085 square feet of pre-construction commercial space, ready for tenant build-out and customization. This large, flexible footprint can accommodate a wide range of uses including retail, studio, showroom, office, or specialty food concepts. Space allows for a potential small kitchen or food prep area, making it ideal for a cafe, deli, or eatery concept (subject to approvals). Priced at $1.84/SF/MO, Suite S1 offers approximately 1,469 square feet of pre-construction commercial space, ready for tenant build-out and customization. This large, flexible footprint can accommodate a wide range of uses including retail, studio, showroom, office, or specialty food concepts. Space allows for a potential small kitchen or food prep area, making it ideal for a cafe, deli, or eatery concept (subject to approvals). Priced at $2.44/SF/MO, Suite S2 is a smaller pre-construction commercial space ideally suited for an office, professional service, or boutique business. With approximately 616 square feet, this unit offers a clean, efficient footprint that can be finished to match your business needs. Perfect for attorneys, accountants, consultants, therapists, or small creative offices seeking a downtown presence without excess space. Located just steps from Main Street, the Murphey Building offers excellent downtown visibility and the rare opportunity to shape your space from the ground up. Building highlights: Prime downtown location; Build-to-suit opportunity; Flexible open layout; Gross lease - no CAM or pass-through fees; Ideal for retail, office, or food-related uses
Essential Information
- MLS® #10688107
- Price$2,700
- Bathrooms0.00
- Acres0.11
- Year Built1925
- TypeCommercial Lease
- StatusNew
Amenities
- UtilitiesCable Available, Electricity Available, Natural Gas Available, Phone Available, Sewer Available, Water Available
- ParkingOn Street
Exterior
- Lot DescriptionCity Lot
- ConstructionBrick, Concrete
Listing Details
- Listing Provided Courtesy Of Rma Llc
Community Information
- Address4 Zebulon Street
- SubdivisionThe Murphey Building
- CityBarnesville
- CountyLamar
- StateGA
- Zip Code30204
Interior
- HeatingOther
- CoolingOther
Additional Information
- ZoningCommercial
The data relating to real estate for sale on this web site comes in part from the Broker Reciprocity Program of Georgia MLS. Real estate listings held by brokerage firms other than Go Realty Of Georgia & Alabam are marked with the Broker Reciprocity logo and detailed information about them includes the name of the listing brokers.
The information being provided is for consumers' personal, non-commercial use and may not be used for any purpose other than to identify prospective properties consumers may be interested in purchasing. Information Deemed Reliable But Not Guaranteed.
The broker providing this data believes it to be correct, but advises interested parties to confirm them before relying on them in a purchase decision.
Copyright 2026 Georgia MLS. All rights reserved.
Listing information last updated on February 15th, 2026 at 6:00am CST.




