Hi There! Is this Your First Time?
Did you know if you Register you have access to free search tools including the ability to save listings and property searches? Did you know that you can bypass the search altogether and have listings sent directly to your email address? Check out our how-to page for more info.
- Price$236,900
- Beds3
- Baths2
- SQ. Feet1,225
- Acres2.00
- Built2026
4390 Deloach Church Road, Claxton
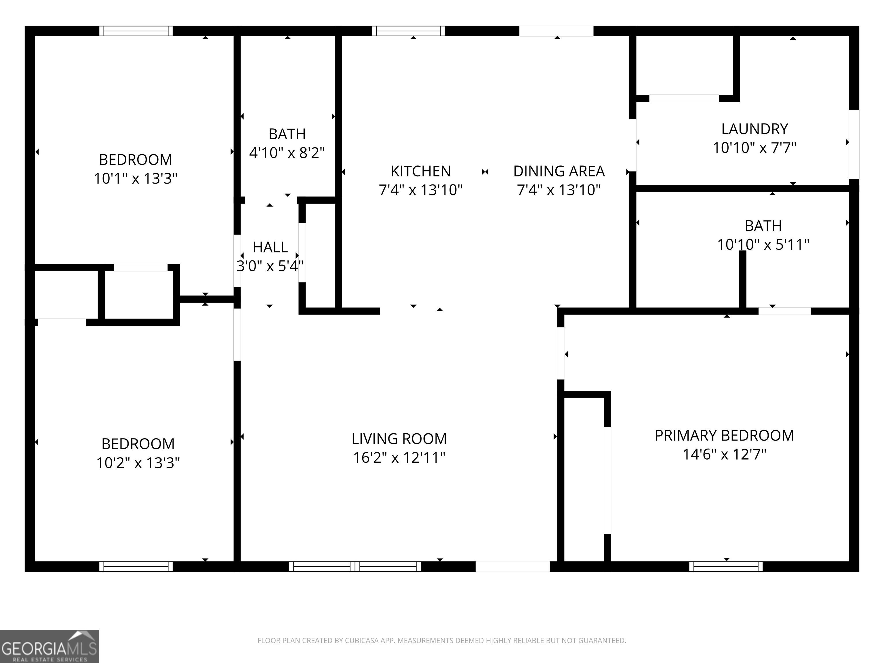
This beautifully designed 1,225 sq. ft. home offers 3 bedrooms and 2 bathrooms and is situated on a spacious 2-acre lot, combining peaceful rural surroundings with modern comfort. The open-concept floor plan seamlessly connects the living room, dining area, and kitchen, ideal for both everyday living and entertaining. A vaulted ceiling in the living room enhances the bright, airy feel of the space, while the kitchen features stylish shaker-style cabinetry and modern finishes. The mudroom includes a dedicated laundry area along with a pantry/storage closet and provides a functional transition into the main living space. The split floor plan offers added privacy, with the primary suite serving as a relaxing retreat complete with a spacious closet and an en suite bathroom featuring a double vanity. An additional hall linen closet provides convenient extra storage. With its thoughtful layout, luxury vinyl plank flooring throughout, back patio, modern details, and tranquil setting, this home is an excellent opportunity for those seeking space, comfort, and timeless functionality. Currently under construction. Estimated completion: March 2026.
Essential Information
- MLS® #10688250
- Price$236,900
- Bedrooms3
- Bathrooms2.00
- Full Baths2
- Square Footage1,225
- Acres2.00
- Year Built2026
- TypeResidential
- Sub-TypeSingle Family Residence
- StyleTraditional
- StatusActive
Amenities
- UtilitiesElectricity Available
- ParkingParking Pad
Exterior
- Lot DescriptionLevel
- RoofComposition
- ConstructionVinyl Siding
Additional Information
- Days on Market14
Community Information
- Address4390 Deloach Church Road
- SubdivisionDeloach Pasture
- CityClaxton
- CountyEvans
- StateGA
- Zip Code30417
Interior
- Interior FeaturesMaster On Main Level, Split Bedroom Plan
- AppliancesDishwasher, Microwave, Oven/Range (Combo)
- HeatingCentral, Electric
- CoolingCeiling Fan(s), Central Air, Electric
- StoriesOne
School Information
- ElementaryClaxton
- MiddleClaxton
- HighClaxton
Listing Details
- Listing Provided Courtesy Of Brown Land And Realty
Price Change History for 4390 Deloach Church Road, Claxton, GA (MLS® #10688250)
| Date | Details | Price | Change |
|---|---|---|---|
| Active (from New) | – | – |
The data relating to real estate for sale on this web site comes in part from the Broker Reciprocity Program of Georgia MLS. Real estate listings held by brokerage firms other than Go Realty Of Georgia & Alabam are marked with the Broker Reciprocity logo and detailed information about them includes the name of the listing brokers.
The information being provided is for consumers' personal, non-commercial use and may not be used for any purpose other than to identify prospective properties consumers may be interested in purchasing. Information Deemed Reliable But Not Guaranteed.
The broker providing this data believes it to be correct, but advises interested parties to confirm them before relying on them in a purchase decision.
Copyright 2026 Georgia MLS. All rights reserved.
Listing information last updated on February 26th, 2026 at 4:30am CST.



