Hi There! Is this Your First Time?
Did you know if you Register you have access to free search tools including the ability to save listings and property searches? Did you know that you can bypass the search altogether and have listings sent directly to your email address? Check out our how-to page for more info.
- Price$525,000
- Beds4
- Baths3
- SQ. Feet2,904
- Acres3.00
- Built1992
2051 Oliver Highway, Newington
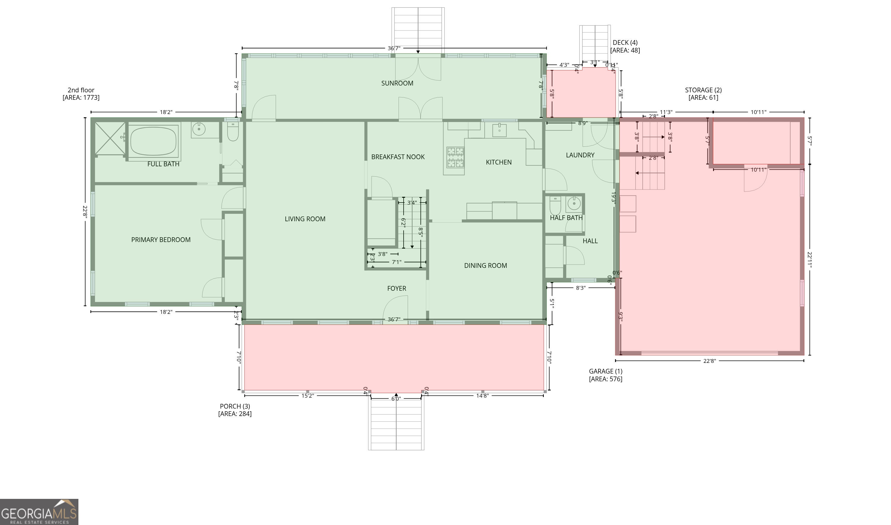
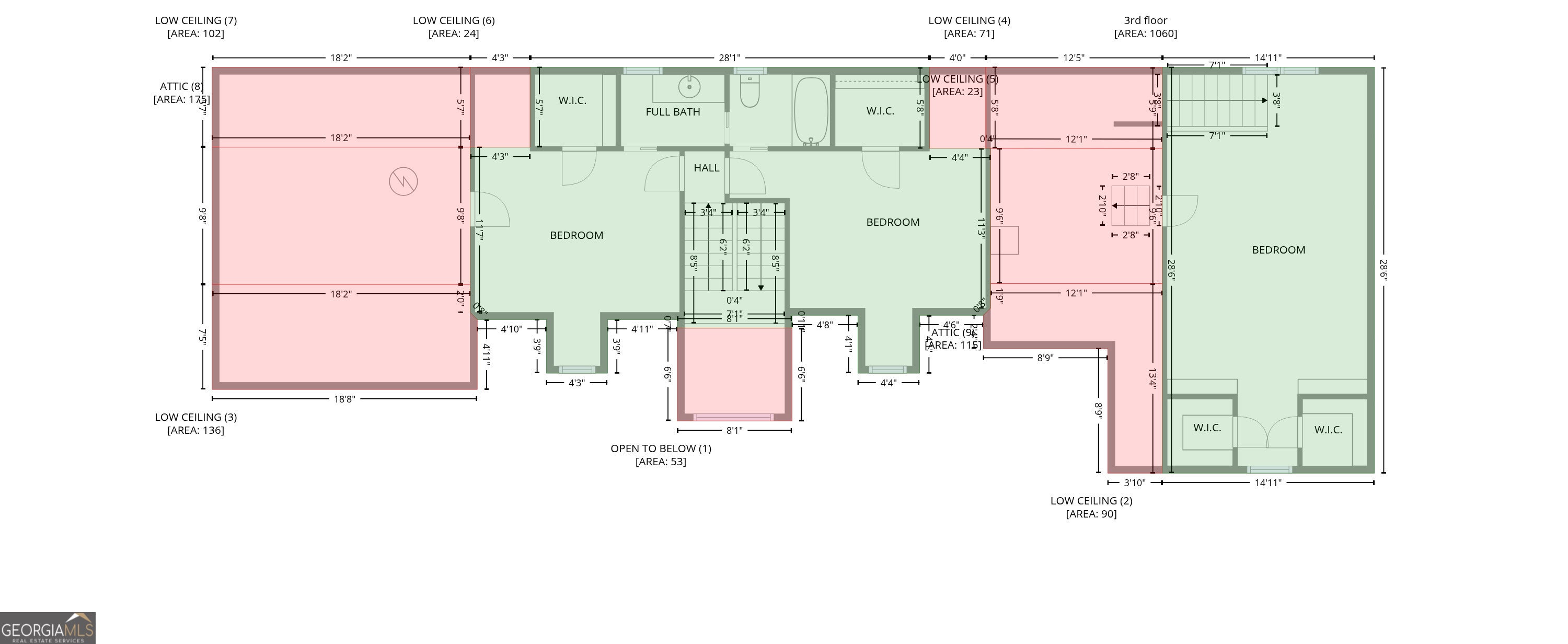
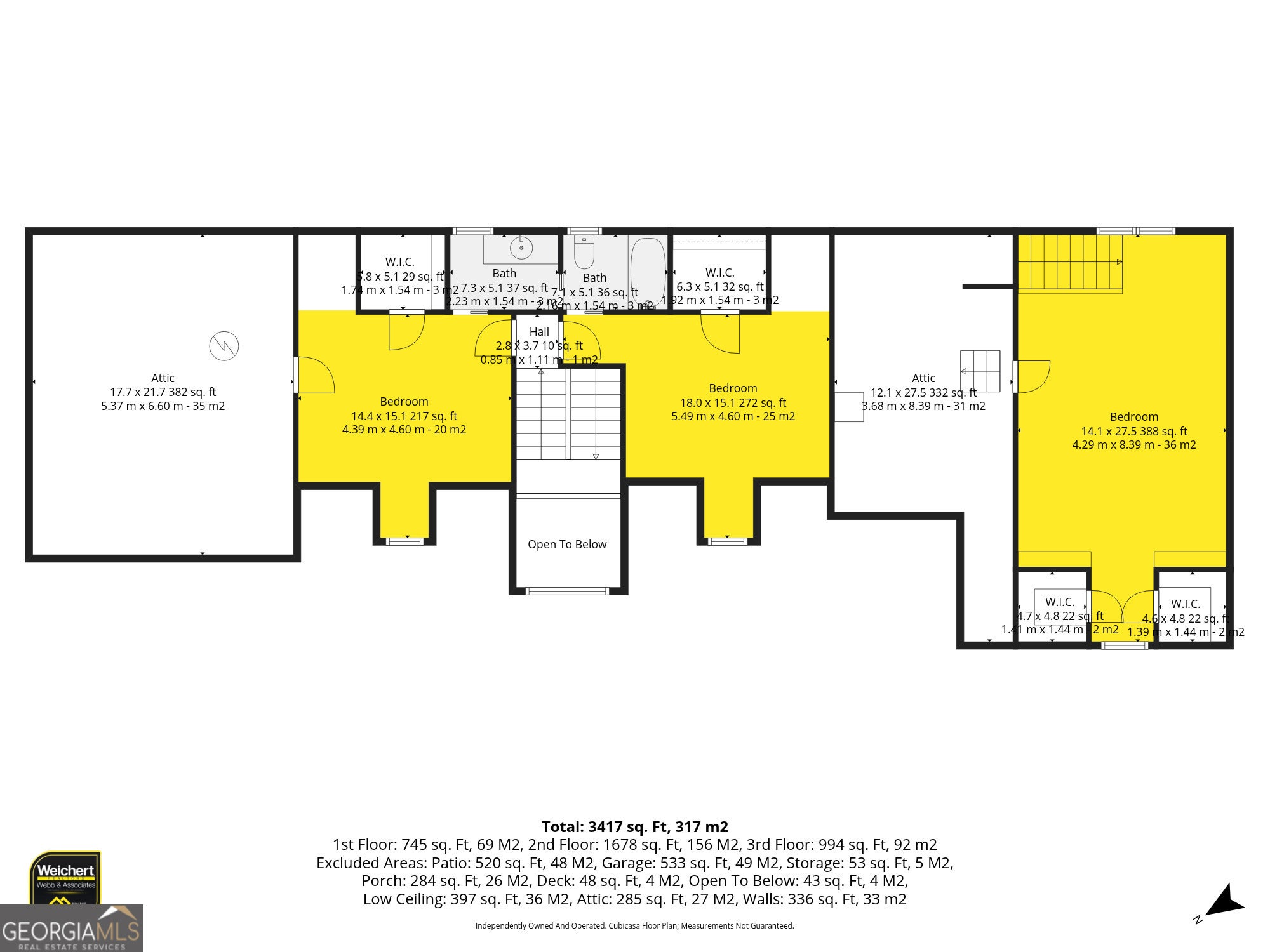
Welcome to 2051 Oliver Hwy in Newington (Oliver), GA 30446-an inviting Screven County, Georgia home with space, comfort, and standout extras. Located on Oliver Highway between Oliver and Newington in Screven County, this two-level ranch/traditional residence (built 1992) offers approximately 2,904 sq ft (public records; buyer to verify), 4 bedrooms and 2.5 bathrooms. The main level features hardwood flooring throughout (excluding bathrooms and the sunroom), plus hardwood on the main switchback staircase for a classic, cohesive feel, and crown molding throughout the main house adds a polished finish. The layout welcomes you with a foyer, comfortable family room, and a separate dining room that seats 12+-ideal for gatherings. The main-level primary suite includes a jetted soaking tub, separate tiled shower, and walk-in closet(s). Enjoy a bright sunroom/sun porch and two rear entries: one rear entry into the mud room/laundry area and a second rear entry into the sunroom through double French doors. The country kitchen includes a breakfast area, breakfast bar, solid surface counters, a walk-in pantry, and stainless steel appliances including cooktop, double oven/wall oven, microwave, dishwasher, and refrigerator. The bedroom count includes the bonus room (above the garage), which has two closets and is being counted as a bedroom (buyer to verify use). Bonus room stairs end at the main-level mud room/laundry area, where there is convenient access to the half bathroom, storage closet, and the garage before entry into the kitchen-an easy everyday flow. Practical storage continues upstairs: one second-level bedroom has access to a walk-in attic area that provides access to one tank-style water heater, and the bonus room has access to a second, separate (not attached) walk-in attic area with access to a second tank-style water heater-great for service access and storage. The home is served by two heat pump HVAC systems for efficient comfort. Private well and septic tank. Step outside to enjoy an in-ground 12' x 30' pool (currently drained/emptied and not in use; seller indicates it is in working condition-buyer to verify), plus an approximately 800 sq ft detached pool house with kitchen, full bathroom, laundry, and its own central heated HVAC system-perfect for entertaining, hobbies, or game-day gatherings. Note: the listed home square footage does not include the pool house (buyer to verify). A Matterport 3D tour is available of the main house; the current tour shows the lens cover in view and a new Matterport 3D tour without the lens cover/splicing is scheduled to be uploaded. IMPORTANT: This listing is for the house and approximately 3 acres only (buyer to verify). A new survey is scheduled. Property lines have not been updated in the public records-buyer to verify boundaries, included acreage, and exact property lines. Price and terms negotiable; seller will review all reasonable offers. Submit your best offer. Schedule your private tour today. Equal Housing Opportunity. Listed by Weichert, Realtors - Webb & Associates. Independently owned and operated.
Essential Information
- MLS® #10688341
- Price$525,000
- Bedrooms4
- Bathrooms3.00
- Full Baths2
- Half Baths1
- Square Footage2,904
- Acres3.00
- Year Built1992
- TypeResidential
- Sub-TypeSingle Family Residence
- StyleRanch, Traditional
- StatusActive
Amenities
- UtilitiesElectricity Available, High Speed Internet, Natural Gas Available, Phone Available, Underground Utilities, Water Available, Sewer Connected
- Parking Spaces2
- ParkingAttached, Garage, Garage Door Opener, RV/Boat Parking, Side/Rear Entrance, Parking Pad, Storage
- Has PoolYes
- PoolIn Ground
Exterior
- Lot DescriptionLevel
- RoofComposition
- ConstructionBrick, Concrete, Vinyl Siding, Other
Additional Information
- Days on Market45
Community Information
- Address2051 Oliver Highway
- Subdivisionnone
- CityNewington
- CountyScreven
- StateGA
- Zip Code30446
Interior
- Interior FeaturesHigh Ceilings, Master On Main Level, Separate Shower, Soaking Tub, Tile Bath, Walk-In Closet(s), Whirlpool Bath, Rear Stairs
- AppliancesDishwasher, Double Oven, Electric Water Heater, Microwave, Refrigerator, Stainless Steel Appliance(s), Cooktop, Oven (Wall)
- HeatingCentral, Electric, Heat Pump
- CoolingCeiling Fan(s), Central Air, Electric
- StoriesTwo
School Information
- ElementaryOther
- MiddleScreven County
- HighScreven County
Listing Details
- Listing Provided Courtesy Of Weichert Realtors-webb & Associates
- Office Info912-420-1663
Price Change History for 2051 Oliver Highway, Newington, GA (MLS® #10688341)
| Date | Details | Price | Change |
|---|---|---|---|
| Active (from New) | – | – |
The data relating to real estate for sale on this web site comes in part from the Broker Reciprocity Program of Georgia MLS. Real estate listings held by brokerage firms other than Go Realty Of Georgia & Alabam are marked with the Broker Reciprocity logo and detailed information about them includes the name of the listing brokers.
The information being provided is for consumers' personal, non-commercial use and may not be used for any purpose other than to identify prospective properties consumers may be interested in purchasing. Information Deemed Reliable But Not Guaranteed.
The broker providing this data believes it to be correct, but advises interested parties to confirm them before relying on them in a purchase decision.
Copyright 2026 Georgia MLS. All rights reserved.
Listing information last updated on March 28th, 2026 at 9:45am CDT.

























































































































































