Hi There! Is this Your First Time?
Did you know if you Register you have access to free search tools including the ability to save listings and property searches? Did you know that you can bypass the search altogether and have listings sent directly to your email address? Check out our how-to page for more info.
- Price$429,000
- Acres0.67
- Built1966
5948 Homestead Road, Rex
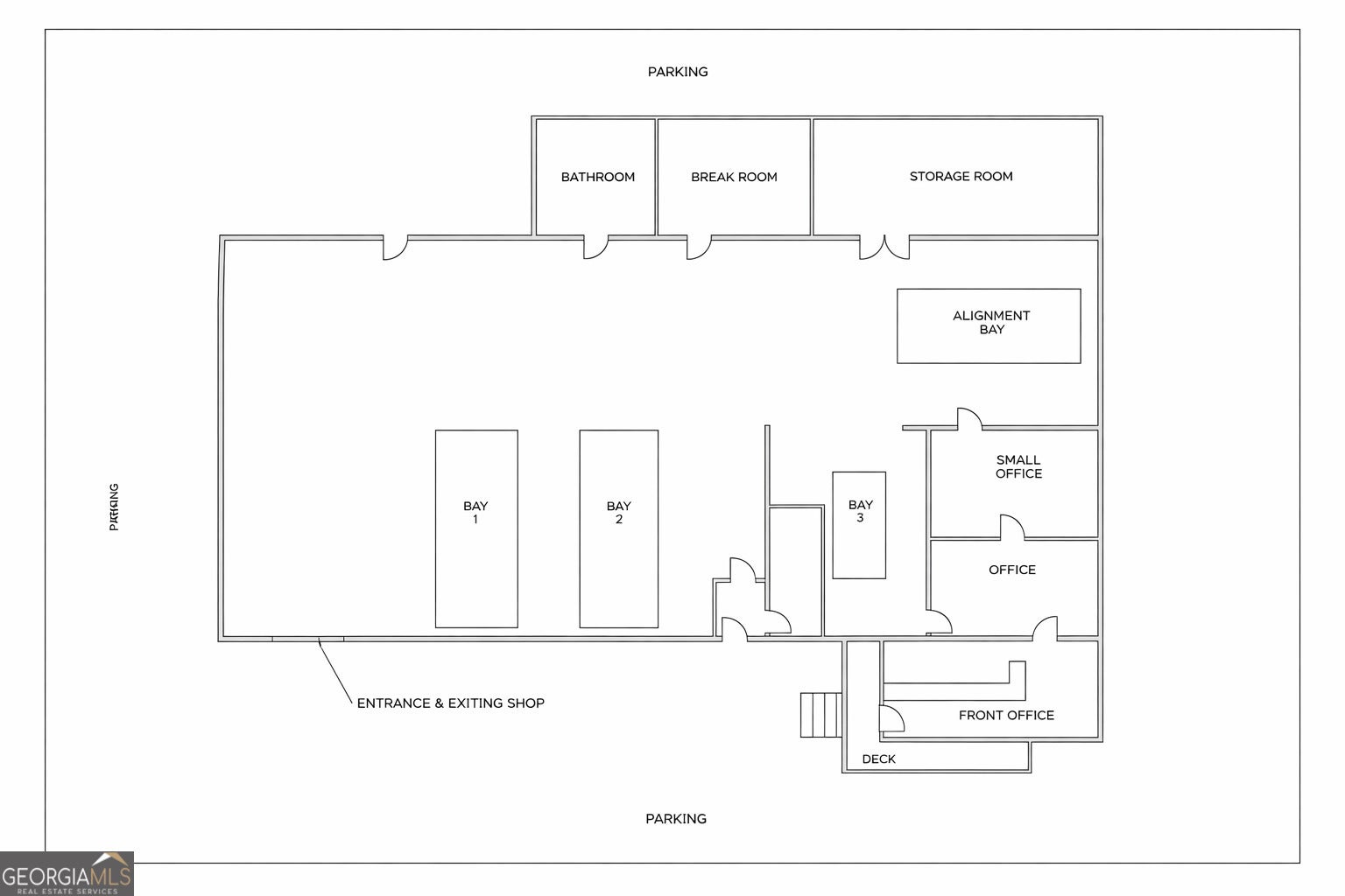
Excellent opportunity to own a fully equipped auto shop in the heart of Downtown Historic Rex. This spacious facility offers 5,012 square feet of work space, perfectly suited for automotive repair, customization, fleet services, or specialty mechanical work. The shop features: Two vehicle lifts Two air compressors Four work bay areas 16-foot roll-up door for easy access Three separate office spaces - ideal for management, customer reception, or administrative use One additional room suitable for storage or a breakroom Bathroom on-site Strategically located just 20 minutes south of Atlanta, only one mile from I-675, and directly off busy Rex Road, this property offers excellent accessibility and strong visibility in a growing area. Whether you're expanding your current operation or launching a new automotive business, this well-positioned and functional space is ready to support your success.
Essential Information
- MLS® #10689890
- Price$429,000
- Bathrooms0.00
- Acres0.67
- Year Built1966
- TypeCommercial Sale
- StatusActive
Amenities
- UtilitiesCable Available, Electricity Available, High Speed Internet, Phone Available, Sewer Available, Water Available
- Parking Spaces40
- ParkingParking Lot, Paved, Paid
Exterior
- Lot DescriptionCorner Lot, Level
- RoofComposition
- ConstructionBlock, Stone
Listing Details
- Listing Provided Courtesy Of Sellers Realty Llc
- Office Info770-833-1970
Community Information
- Address5948 Homestead Road
- SubdivisionAuto Shop
- CityRex
- CountyClayton
- StateGA
- Zip Code30273
Interior
- HeatingElectric, Office Only, Hot Water
- CoolingElectric, Fans, Office Area Only, Wall Unit(s)
Additional Information
- Days on Market42
- ZoningGb-General Business, C3
Price Change History for 5948 Homestead Road, Rex, GA (MLS® #10689890)
| Date | Details | Price | Change |
|---|---|---|---|
| Active (from New) | – | – |
The data relating to real estate for sale on this web site comes in part from the Broker Reciprocity Program of Georgia MLS. Real estate listings held by brokerage firms other than Go Realty Of Georgia & Alabam are marked with the Broker Reciprocity logo and detailed information about them includes the name of the listing brokers.
The information being provided is for consumers' personal, non-commercial use and may not be used for any purpose other than to identify prospective properties consumers may be interested in purchasing. Information Deemed Reliable But Not Guaranteed.
The broker providing this data believes it to be correct, but advises interested parties to confirm them before relying on them in a purchase decision.
Copyright 2026 Georgia MLS. All rights reserved.
Listing information last updated on March 25th, 2026 at 8:47am CDT.






























