Hi There! Is this Your First Time?
Did you know if you Register you have access to free search tools including the ability to save listings and property searches? Did you know that you can bypass the search altogether and have listings sent directly to your email address? Check out our how-to page for more info.
- Price$525,000
- Beds4
- Baths3
- SQ. Feet2,567
- Acres6.84
- Built1998
5755 Dorsett Shoals Road, Douglasville
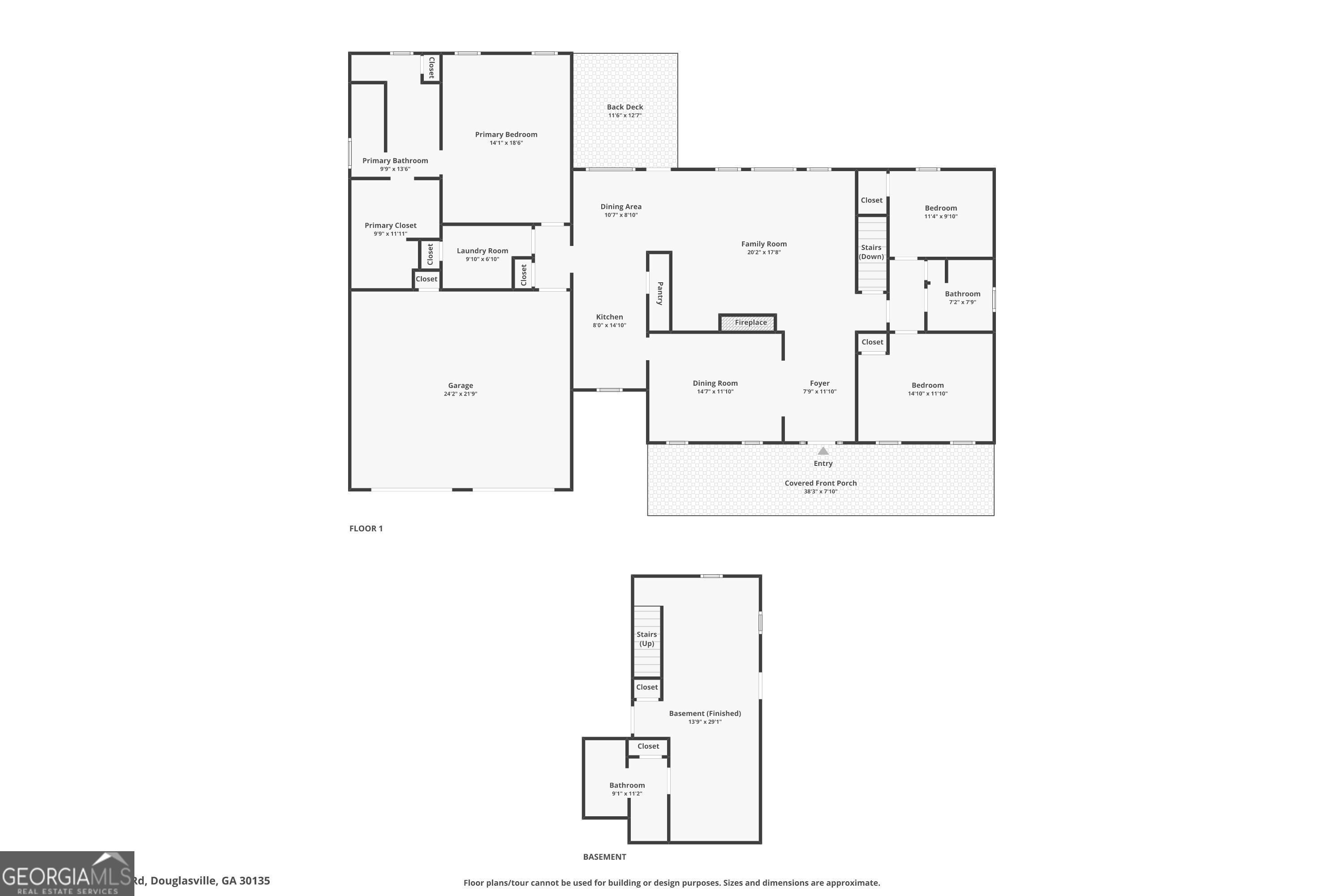
The Story of 5755 Dorsett Shoals Rd Some homes are simply built. Others are lived in, improved upon, and deeply cherished. Welcome to 5755 Dorsett Shoals Road, a custom-built home nestled on 6.84 acres of rolling woodland beauty, complete with a flowing creek and a setting that feels more like a private park than a backyard. Tucked within the trees, the gentle sound of the creek winding through the property adds a peaceful rhythm to daily life, creating a natural retreat just steps from your door. For over 23 years, this property has been thoughtfully cared for and intentionally upgraded, creating a retreat where comfort, craftsmanship, and nature exist in harmony. From the moment you arrive, you sense the quality. The concrete driveway (designed by the original owner, a civil engineer) with handsomely designed culverts added by the current owners, reflects the solid construction and attention to detail that define the property. Inside, the home offers more than 2,500 heated square feet, featuring a spacious three-bedroom, two-bath split-bedroom ranch floor plan on the main level. The finished walk-out basement expands the living space with a large, tiled bedroom/living area and a full bath with walk-in shower, ideal for guests, multi-generational living, or a private office retreat. Over the years, the interior has been carefully updated to blend comfort with practicality, including a remodeled primary bath with a walk-in tiled shower and dual vanity, luxury vinyl plank flooring throughout, and a beautifully refreshed kitchen with new countertops and backsplash completed in 2024. Outdoor living here unfolds in layers. The original upper deck has been expanded into a three-level entertaining space designed for gathering and enjoying every season. Maintenance-free decking and railing provide lasting durability, while the lower concrete patio and outdoor fireplace create a warm, inviting place to spend evenings under the stars. The covered front porch, complete with maintenance-free railings and a custom mosquito net enclosure, offers yet another peaceful vantage point to take in the surrounding landscape. The land itself tells a story of patience and stewardship. Each spring, daffodils bloom across the property, some carried from a family farm and planted with care. Dogwoods, wild azaleas, redbuds, and crepe myrtles emerge throughout the seasons, many of them volunteers nurtured over time. In the fall, the changing leaves transform the acreage into a vibrant display of color, while winter reveals the gentle topography and quiet beauty of the hills and trees. Beyond the home, the property continues to impress with functional spaces built to last. A 16x24 insulated barn with two levels and 100-amp service was constructed in 2016 and later enhanced with a dust collection system, creating an ideal workshop or hobby space. Additional outbuildings, including an insulated 10x16 shed and a charming garden shed, provide flexibility for storage, creative pursuits, or equipment. Drainage systems were thoughtfully installed to protect the integrity of the structures, and the crawl space has been sealed with a dehumidifier for long-term care. Major systems have been updated over time, including the roof, HVAC components, and the addition of a tankless water heater. A termite bond with locked pricing and a transferable rodent-proofing bond offer added peace of mind. 5755 Dorsett Shoals Road is more than acreage and square footage. It is a home where roots have grown deep, improvements have been made with intention, and the land has been allowed to flourish. It is a place to slow down, gather, create, and breathe, a rare opportunity to own nearly seven acres of privacy and possibility in Douglasville.
Essential Information
- MLS® #10694851
- Price$525,000
- Bedrooms4
- Bathrooms3.00
- Full Baths3
- Square Footage2,567
- Acres6.84
- Year Built1998
- TypeResidential
- Sub-TypeSingle Family Residence
- StyleRanch, Traditional
- StatusActive
Amenities
- UtilitiesCable Available, Electricity Available, Natural Gas Available, Phone Available, Water Available
- Parking Spaces2
- ParkingAttached, Garage, Garage Door Opener, Kitchen Level
- WaterfrontCreek
Exterior
- Exterior FeaturesGarden
- Lot DescriptionPrivate
- WindowsDouble Pane Windows
- RoofComposition
- ConstructionOther, Vinyl Siding
- FoundationBlock
Additional Information
- Days on Market37
Community Information
- Address5755 Dorsett Shoals Road
- SubdivisionNone
- CityDouglasville
- CountyDouglas
- StateGA
- Zip Code30135
Interior
- Interior FeaturesBookcases, High Ceilings, Master On Main Level, Rear Stairs, Split Bedroom Plan, Walk-In Closet(s)
- AppliancesDishwasher, Gas Water Heater, Oven/Range (Combo), Refrigerator
- HeatingCentral, Forced Air, Zoned
- CoolingCentral Air, Zoned
- FireplaceYes
- # of Fireplaces2
- FireplacesFamily Room, Outside
- StoriesOne
School Information
- ElementaryDorsett Shoals
- MiddleYeager
- HighAlexander
Listing Details
- Listing Provided Courtesy Of Georgia Life Realty
Price Change History for 5755 Dorsett Shoals Road, Douglasville, GA (MLS® #10694851)
| Date | Details | Price | Change |
|---|---|---|---|
| Active | – | – | |
| New (from Coming Soon) | – | – |
The data relating to real estate for sale on this web site comes in part from the Broker Reciprocity Program of Georgia MLS. Real estate listings held by brokerage firms other than Go Realty Of Georgia & Alabam are marked with the Broker Reciprocity logo and detailed information about them includes the name of the listing brokers.
The information being provided is for consumers' personal, non-commercial use and may not be used for any purpose other than to identify prospective properties consumers may be interested in purchasing. Information Deemed Reliable But Not Guaranteed.
The broker providing this data believes it to be correct, but advises interested parties to confirm them before relying on them in a purchase decision.
Copyright 2026 Georgia MLS. All rights reserved.
Listing information last updated on April 5th, 2026 at 10:45am CDT.



























































