Hi There! Is this Your First Time?
Did you know if you Register you have access to free search tools including the ability to save listings and property searches? Did you know that you can bypass the search altogether and have listings sent directly to your email address? Check out our how-to page for more info.
- Price$78,500
- Acres0.22
- Built1900
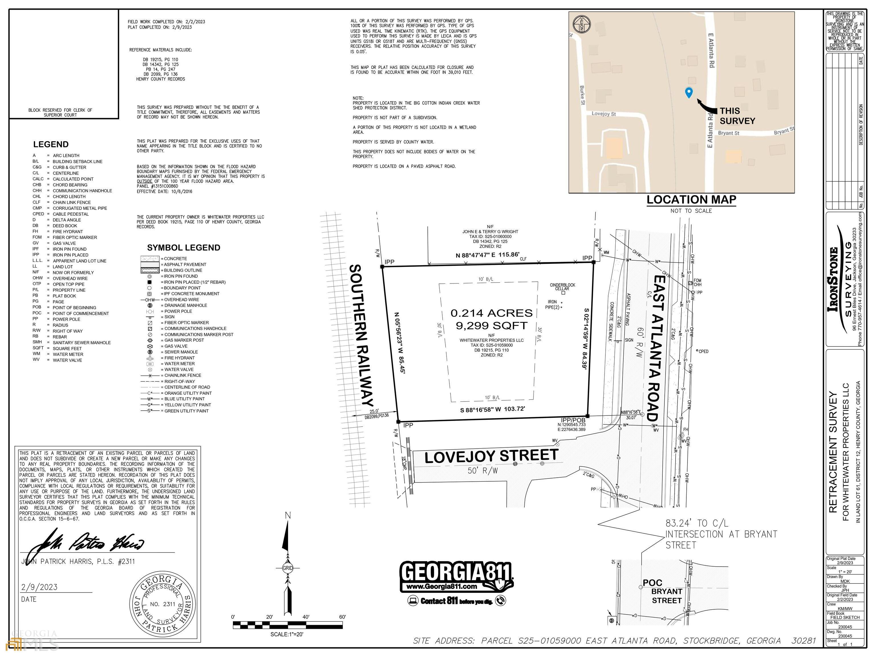
Lovejoy Street @ E Atlanta Rd, Stockbridge
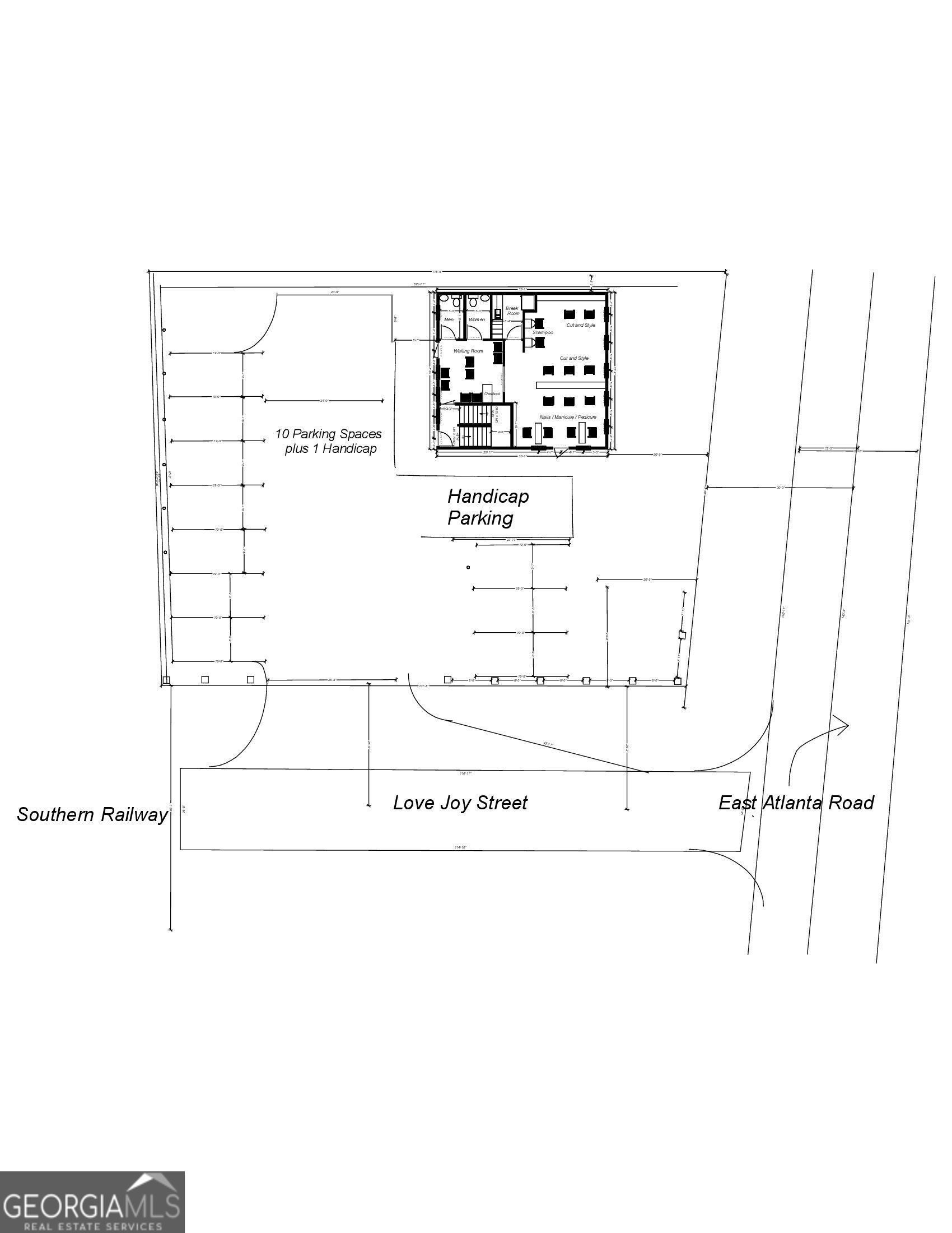
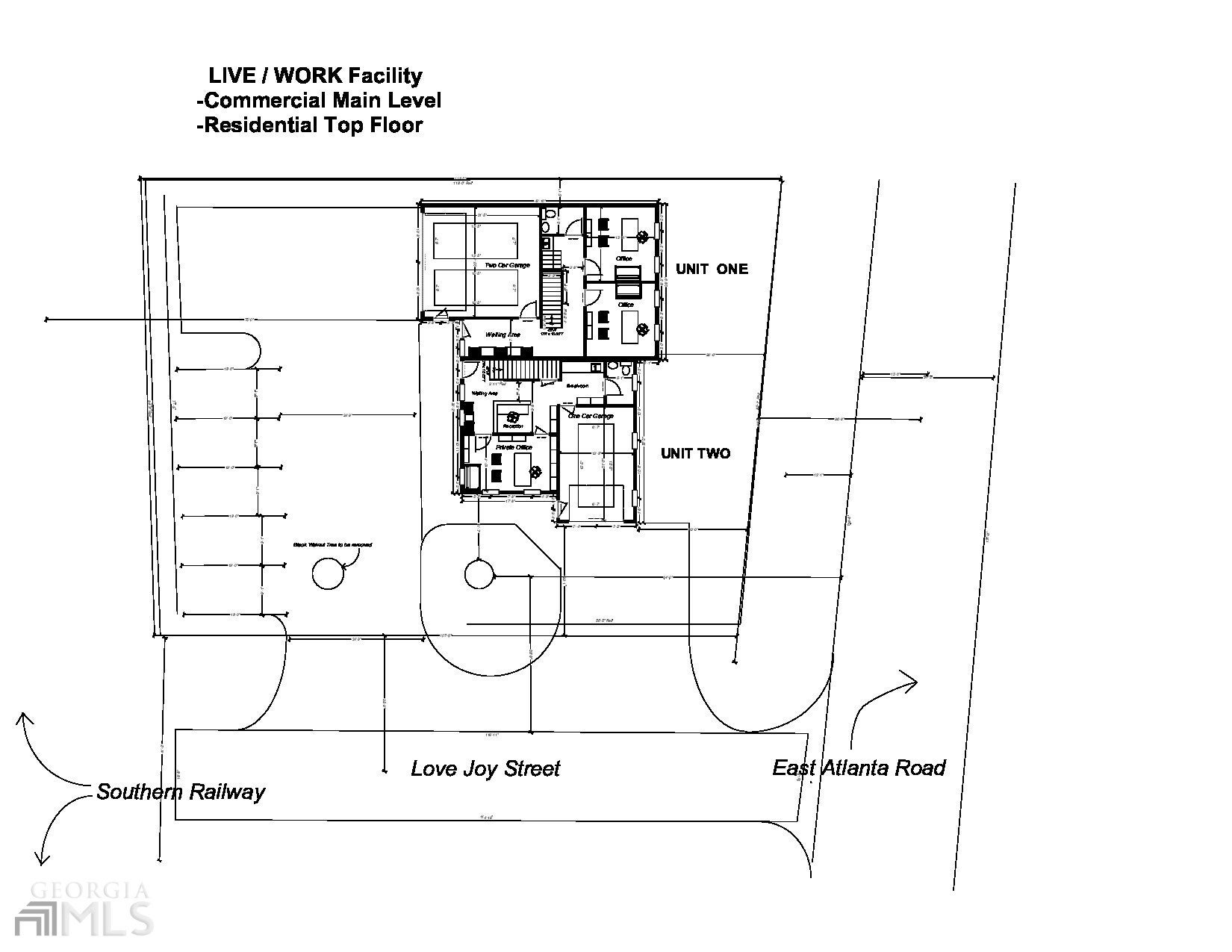
Price improvement!!! Owner financing is possible too! Be on the leading edge of the live/work/play concept in exciting Stockbridge! This corner lot is near the Stockbridge City Hall and The VyStar Amphitheater at The Bridge on East Atlanta Rd. You can have office/professional space at street level with ONE or TWO levels of residential living above. That's right, up to three stories is possible in the Stockbridge Downtown Overlay District. SELLER WILL HELP DESIGN YOUR BUILDING (see some possible concepts in pictures). Great potential for all professionals (Lawyers, Doctors, Dentists, Real Estate, Insurance, Beauty Shops/Barbers, etc.) Work downstairs, live upstairs, or lease it all out. Neighbors include Stockbridge City Hall, public library, tag office, parks, recreation leagues, churches, retail shopping, office space, and restaurants. Be a trend setter and bring your dream to this exciting developing city!
Essential Information
- MLS® #10695129
- Price$78,500
- Bathrooms0.00
- Acres0.22
- Year Built1900
- TypeCommercial Sale
- StatusActive
Amenities
- UtilitiesCable Available, Electricity Available, Natural Gas Available, Phone Available, Sewer Available, Water Available
- ParkingOther
Exterior
- Lot DescriptionCity Lot, Corner Lot, Level
- ConstructionOther
Listing Details
- Listing Provided Courtesy Of First United Realty, Inc.
Community Information
- AddressLovejoy Street @ E Atlanta Rd
- Subdivisionnone
- CityStockbridge
- CountyHenry
- StateGA
- Zip Code30281
Interior
- HeatingNone
- CoolingNone
Additional Information
- Days on Market14
- ZoningCommercial/Downtown Overlay District-Stockbridge
Price Change History for Lovejoy Street @ E Atlanta Rd, Stockbridge, GA (MLS® #10695129)
| Date | Details | Price | Change |
|---|---|---|---|
| Active (from New) | – | – |
The data relating to real estate for sale on this web site comes in part from the Broker Reciprocity Program of Georgia MLS. Real estate listings held by brokerage firms other than Go Realty Of Georgia & Alabam are marked with the Broker Reciprocity logo and detailed information about them includes the name of the listing brokers.
The information being provided is for consumers' personal, non-commercial use and may not be used for any purpose other than to identify prospective properties consumers may be interested in purchasing. Information Deemed Reliable But Not Guaranteed.
The broker providing this data believes it to be correct, but advises interested parties to confirm them before relying on them in a purchase decision.
Copyright 2026 Georgia MLS. All rights reserved.
Listing information last updated on March 14th, 2026 at 1:46pm CDT.




















