Hi There! Is this Your First Time?
Did you know if you Register you have access to free search tools including the ability to save listings and property searches? Did you know that you can bypass the search altogether and have listings sent directly to your email address? Check out our how-to page for more info.
- Price$265,000
- Acres21.70
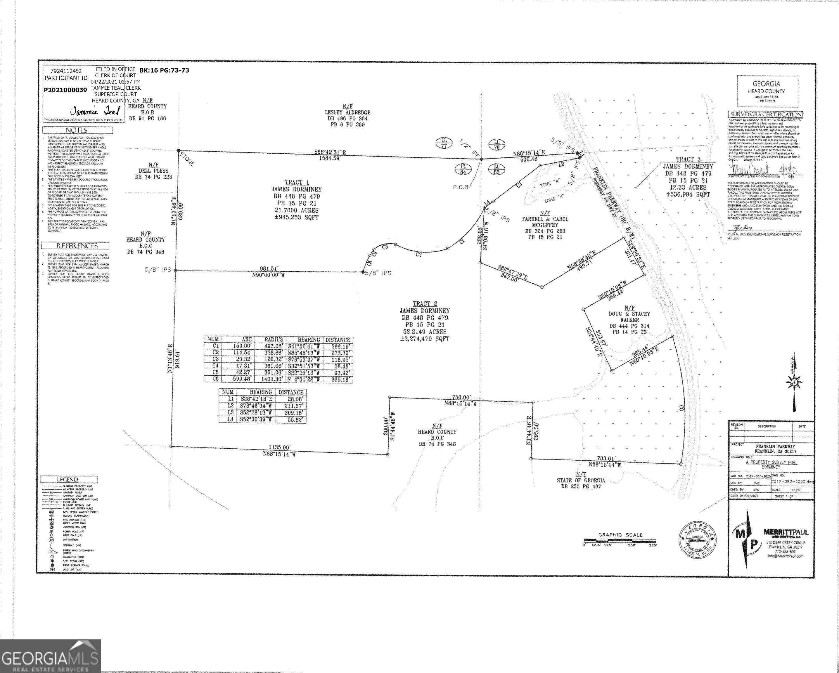
21.7+/- Ac Franklin Parkway, Franklin
Nestled in the heart of Heard County, this 21.7+/- acre tract offers a versatile mix of mature woods and open cleared areas, with multiple potential build sites throughout the property. Ideal for constructing a private estate, country retreat, or custom home, the land also functions beautifully as a recreational and hunting property. Established side-by-side trails provide access across the acreage, and abundant wildlife makes this a strong candidate for a personal hunting tract or weekend getaway. The balance of wooded cover and open space creates flexibility for future homesites, food plots, or additional clearing as desired. Located just off a paved road, the property delivers privacy and seclusion without sacrificing accessibility. Whether you're ready to build now or secure land as a long-term investment, this acreage provides both immediate usability and future potential. The property is zoned for Heard County Elementary School, Heard County Middle School, and Heard County High School, offering access to the full Heard County school system. Bring your boots - and your building plans.
Essential Information
- MLS® #10695698
- Price$265,000
- Bathrooms0.00
- Acres21.70
- TypeLand
- Sub-TypeAgriculture
- StatusActive
Amenities
- UtilitiesNone
School Information
- ElementaryOther
- MiddleHeard County
- HighHeard County
Listing Details
- Listing Provided Courtesy Of Southern Real Estate Properties
Community Information
- Address21.7+/- Ac Franklin Parkway
- SubdivisionNone
- CityFranklin
- CountyHeard
- StateGA
- Zip Code30217
Exterior
- Lot DescriptionPrivate
Additional Information
- Days on Market20
Price Change History for 21.7+/- Ac Franklin Parkway, Franklin, GA (MLS® #10695698)
| Date | Details | Price | Change |
|---|---|---|---|
| Active | – | – | |
| Price Change | – | – | |
| Price Reduced (from $330,000) | $265,000 | $65,000 (19.70%) | |
| Active (from New) | – | – |
The data relating to real estate for sale on this web site comes in part from the Broker Reciprocity Program of Georgia MLS. Real estate listings held by brokerage firms other than Go Realty Of Georgia & Alabam are marked with the Broker Reciprocity logo and detailed information about them includes the name of the listing brokers.
The information being provided is for consumers' personal, non-commercial use and may not be used for any purpose other than to identify prospective properties consumers may be interested in purchasing. Information Deemed Reliable But Not Guaranteed.
The broker providing this data believes it to be correct, but advises interested parties to confirm them before relying on them in a purchase decision.
Copyright 2026 Georgia MLS. All rights reserved.
Listing information last updated on April 1st, 2026 at 7:30am CDT.




















