Hi There! Is this Your First Time?
Did you know if you Register you have access to free search tools including the ability to save listings and property searches? Did you know that you can bypass the search altogether and have listings sent directly to your email address? Check out our how-to page for more info.
- Price$375,000
- Acres1.00
- Built1965
4729 Alabama Highway Nw, Rome
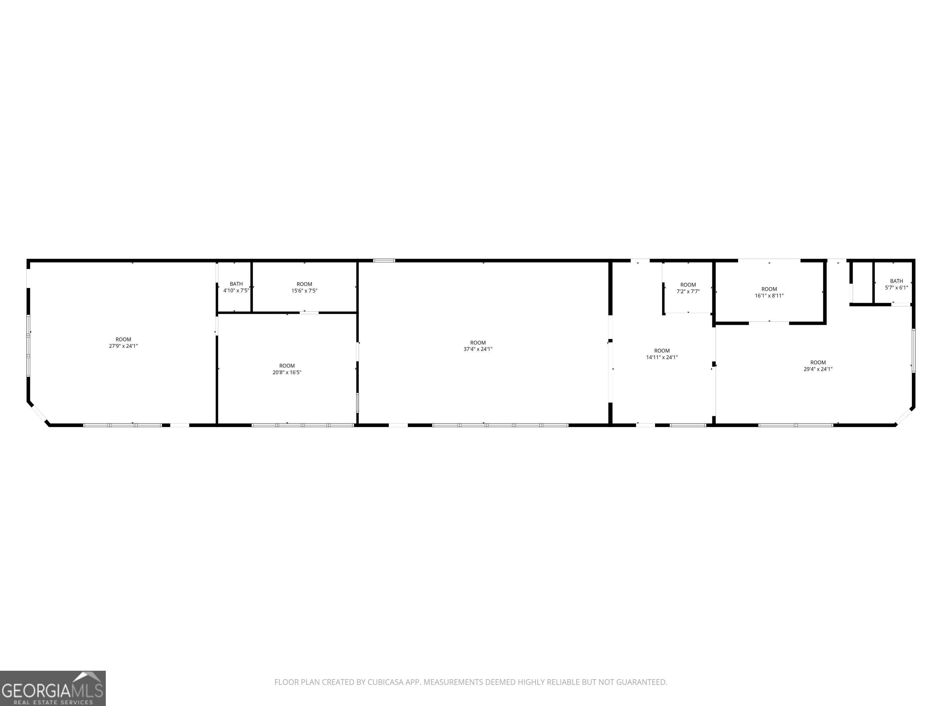
EXCELLENT VISIBILITY on a busy highway! This versatile commercial building offers approximately 3,400 square feet of functional space on a fenced 1-acre corner lot with paved parking. The property features one roll-up door for loading or delivery. Inside, you'll find large open areas that can easily be configured for retail, office, warehouse, or workspace needs, along with two restrooms for convenience. Ample parking and outdoor space make this property well-suited for a variety of uses. With its flexible layout and all-brick construction, this is a great opportunity for an owner-user or investor.
Essential Information
- MLS® #10696033
- Price$375,000
- Bathrooms0.00
- Acres1.00
- Year Built1965
- TypeCommercial Sale
- StatusActive
Amenities
- UtilitiesElectricity Available, Sewer Available, Water Available
- ParkingPaved
Exterior
- Lot DescriptionCity Lot, Corner Lot, Level
- RoofComposition
- ConstructionBrick
Listing Details
- Listing Provided Courtesy Of Hardy Realty & Development Company
Community Information
- Address4729 Alabama Highway Nw
- Subdivisionnone
- CityRome
- CountyFloyd
- StateGA
- Zip Code30165
Interior
- HeatingNone
- CoolingNone
Additional Information
- Days on Market14
- ZoningC-C
Price Change History for 4729 Alabama Highway Nw, Rome, GA (MLS® #10696033)
| Date | Details | Price | Change |
|---|---|---|---|
| Active (from New) | – | – |
The data relating to real estate for sale on this web site comes in part from the Broker Reciprocity Program of Georgia MLS. Real estate listings held by brokerage firms other than Go Realty Of Georgia & Alabam are marked with the Broker Reciprocity logo and detailed information about them includes the name of the listing brokers.
The information being provided is for consumers' personal, non-commercial use and may not be used for any purpose other than to identify prospective properties consumers may be interested in purchasing. Information Deemed Reliable But Not Guaranteed.
The broker providing this data believes it to be correct, but advises interested parties to confirm them before relying on them in a purchase decision.
Copyright 2026 Georgia MLS. All rights reserved.
Listing information last updated on March 23rd, 2026 at 11:00pm CDT.


















