Hi There! Is this Your First Time?
Did you know if you Register you have access to free search tools including the ability to save listings and property searches? Did you know that you can bypass the search altogether and have listings sent directly to your email address? Check out our how-to page for more info.
- Price$449,900
- Acres1.30
5790 Maxham Road, Austell
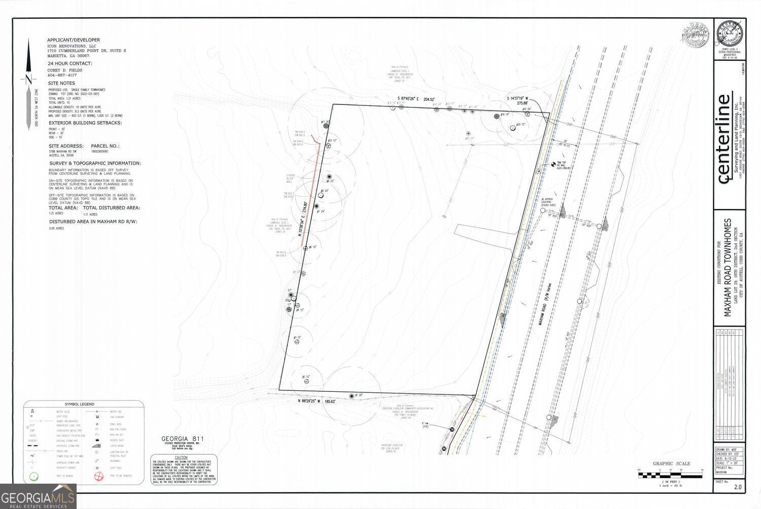
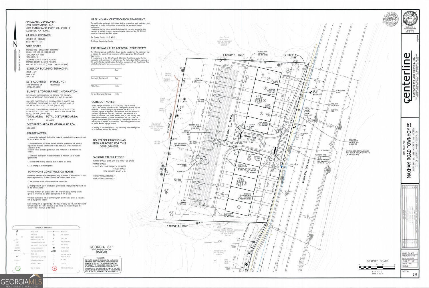
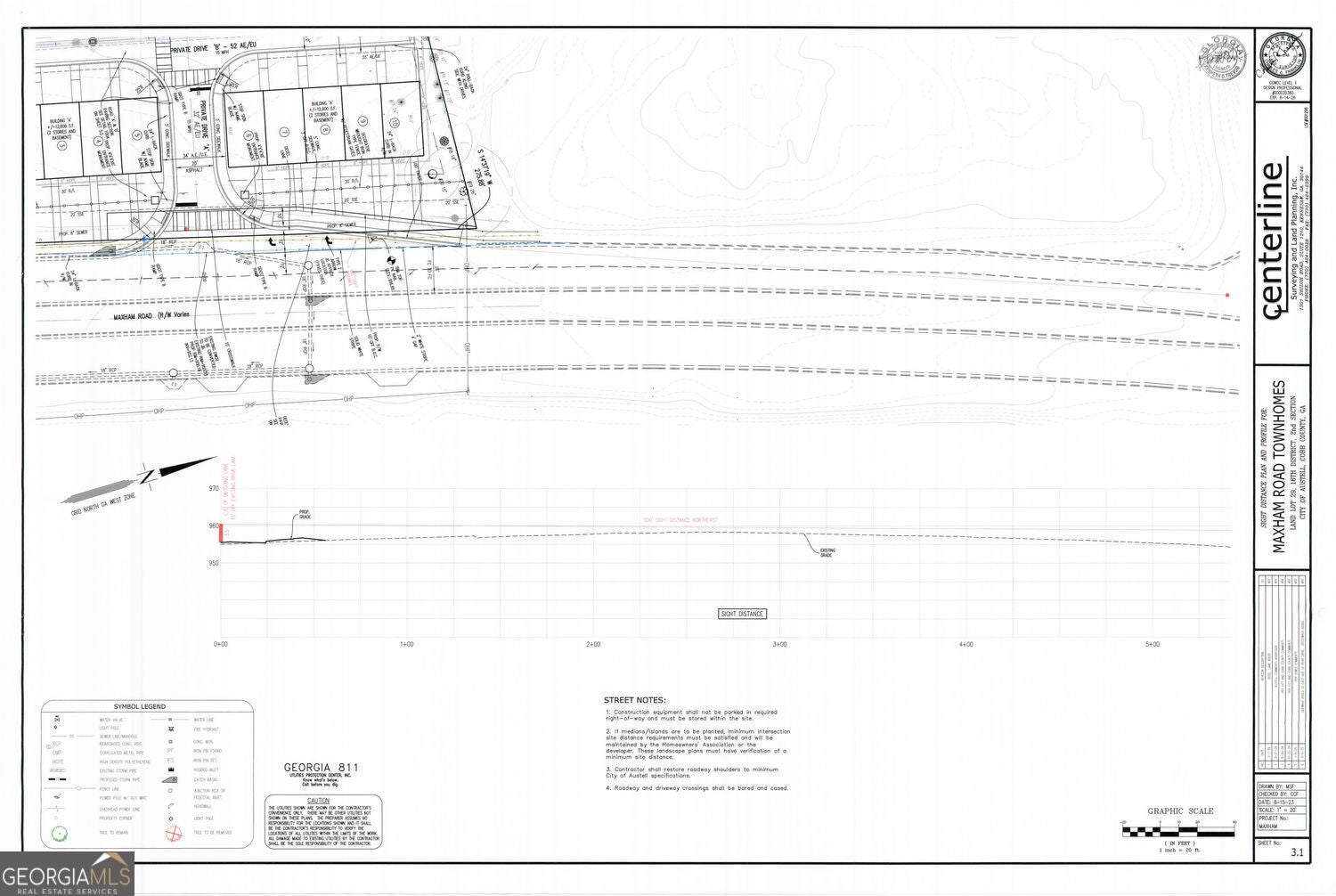
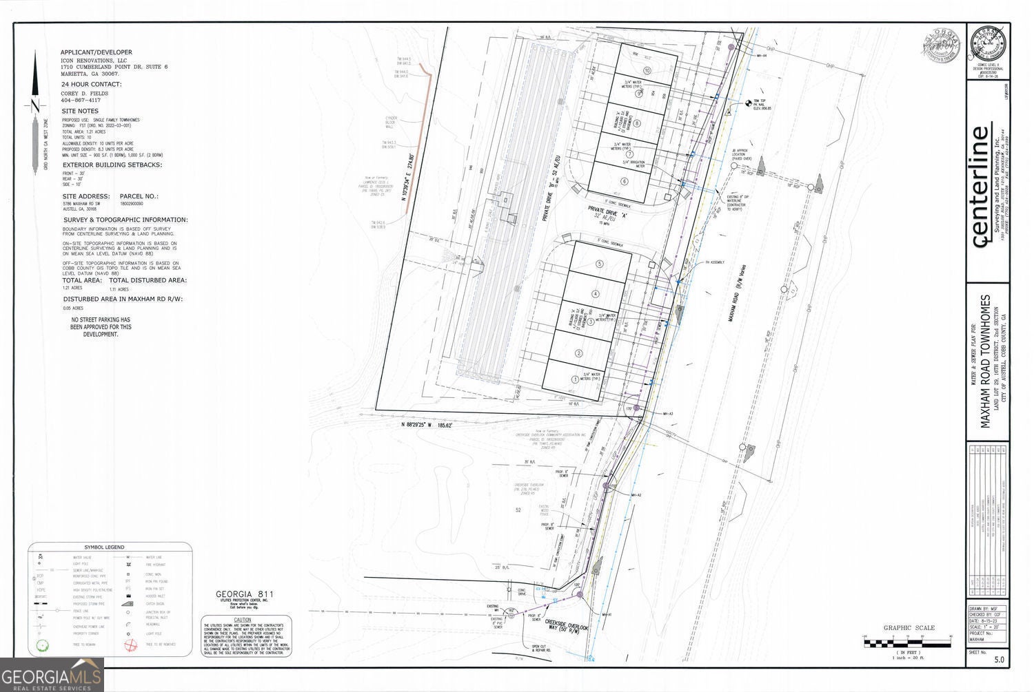
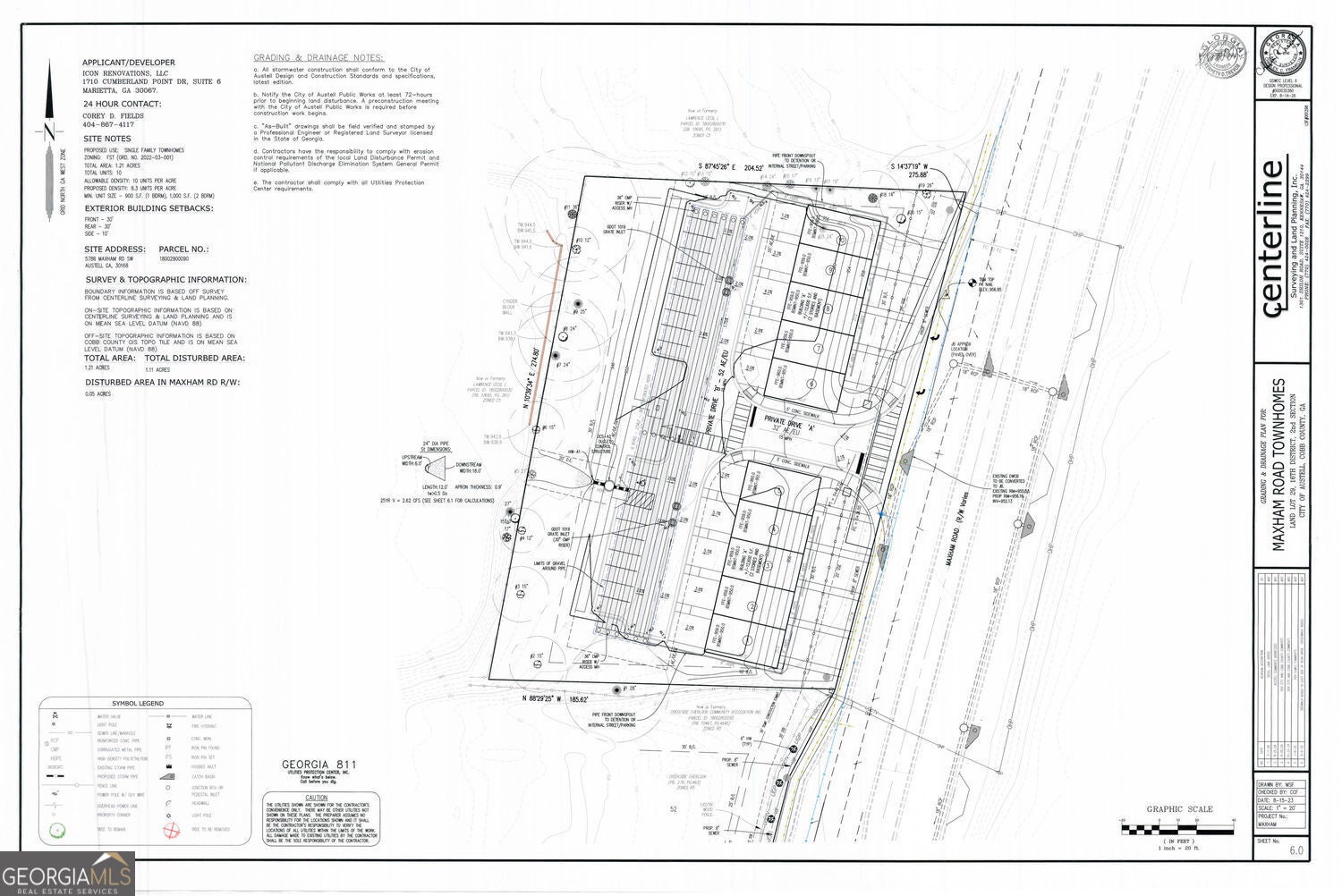
Shovel-ready infill townhome opportunity in Austell (Cobb County) with APPROVED land-disturbance/site development permit. This 1.21-acre tract at 5790 Maxham Rd SW, Austell, GA 30168 (Parcel #18002900090) is engineered for a 10-unit single family townhome development with staged erosion control, full civil plan set, and City approvals already in place-ideal for a small residential developer looking to skip months of upfront entitlement time. The stamped plans reference Cobb County Permit No. SPR-2024-00178 and include City of Austell Public Works approval (7/23/2025) and Zoning approval (7/30/2025). The plan set also documents total disturbed area 1.11 acres, site setbacks (front/rear 30', side 10'), and parking math supporting the 10-unit program (garages + guest spaces). Utilities and infrastructure groundwork are well-defined & sewer easement on file at Cobb County: sanitary sewer & water sheets are included, and a fire hydrant flow test/24-hr test letter for the site is part of the package-helpful documentation for fast-tracking utility coordination and vertical permitting. Bring your product, pricing, and build team-this one is positioned for a clean handoff from dirt to doors! No waiting, start building today!
Essential Information
- MLS® #10696317
- Price$449,900
- Bathrooms0.00
- Acres1.30
- TypeLand
- Sub-TypeResidential Lot
- StatusActive
Amenities
- UtilitiesCable Available, Electricity Available, Natural Gas Available, Sewer Available, Water Available, Underground Utilities
- ViewCity
- WaterfrontNo Dock Or Boathouse
School Information
- ElementaryAustell
- MiddleGarrett
- HighSouth Cobb
Listing Details
- Listing Provided Courtesy Of Dreamhometoday.net
- Office Infomo@dreamhometoday.net
Community Information
- Address5790 Maxham Road
- SubdivisionHOMESITE
- CityAustell
- CountyCobb
- StateGA
- Zip Code30168
Exterior
- Lot DescriptionOther
Additional Information
- Days on Market14
Price Change History for 5790 Maxham Road, Austell, GA (MLS® #10696317)
| Date | Details | Price | Change |
|---|---|---|---|
| Active (from New) | – | – |
The data relating to real estate for sale on this web site comes in part from the Broker Reciprocity Program of Georgia MLS. Real estate listings held by brokerage firms other than Go Realty Of Georgia & Alabam are marked with the Broker Reciprocity logo and detailed information about them includes the name of the listing brokers.
The information being provided is for consumers' personal, non-commercial use and may not be used for any purpose other than to identify prospective properties consumers may be interested in purchasing. Information Deemed Reliable But Not Guaranteed.
The broker providing this data believes it to be correct, but advises interested parties to confirm them before relying on them in a purchase decision.
Copyright 2026 Georgia MLS. All rights reserved.
Listing information last updated on April 1st, 2026 at 12:04pm CDT.





























